Перейти к содержимому
Войти
  • Главная -
  • Услуги -
  • Проектрование систем внутреннего электроснабжение до 1 кВ, внешнего до 10 кВ, любая сложность

Проектрование систем внутреннего электроснабжение до 1 кВ, внешнего до 10 кВ, любая сложность

06 ноября 2025
141
Санкт-петербург
1000 ₽
Пользователь: Александр П Отзывов 0

Я придерживаюсь двух основных принципов в работе:
- Выдавать документацию высокого качества, разделы: силовое внутреннее и внешнее электроснабжение жилых, общественных, промыш. зданий и объектов (РЖД, АЗС, детские сады, школы и др.), наружное освещение, заземление и молниезащита, ДГА (ДГУ), линии ЛЭП до и выше 1 кВ, КТП, БТКП, учет электроэнергии и т. д.
- После завершения работы всегда готов поддержать заказчика и помочь ему решить любые возникающие проблемы, не оставляя его один на один с трудностями.

Коротко о себе.
Профессионально занимаюсь проектированием в сфере электроснабжения с 2003 г. Постоянное место работы в компании Росжелдорпроект (5300 человек, 18 проектных филиалов по РФ, лидер в проектировании зданий, сооружений).
Должность — Ведущий инженер проектировщик по электроснабжению.
Имею среднее техническое образование по специальности техник — электрик (УТЖТ, г. Екатеринбург).
Высшее техническое образование по специальности инженер электромеханик (ПГУПС — ЛИИЖТ, г. Санкт-Петербург).

Коротко, выполняемая мной работа по разделам:
— ЭОМ (силовое электрооборудование и внутреннее освещение);
— ЭН (наружное освещение).
— ЭС 0,4 кВ, ЭС 10 кВ (внешнее электроснабжение);
— ЭГ (заземление и молниезащита);
— ДГА (дизельные электростанции);
— АСКУЭ (учет электроэнергии);
— электрообогрев кровли зданий, водостоков, ендов
— снеготаяния, обогрев площадных объектов, отмостки зданий и др.;
— оцифровка чертежей, схем (однолинейных схем и др.) и рисунков с фото, jpg, pdf и др. в формат AutoCad (dwg);
— Переврд в dwg планировок помещений (планы стен, перегородок, планировочное решение и тд);
— консультирование по всем вопросам (от способа установки розетки до прохождения проекта в Главгосэкспертизе РФ);
— аудит готовых проектов, которые выполнили для Вас другие проектировщики, на предмет ошибок, коллизий и др.
— при необходимости возможен выезд на объект строительства.
— тех. поддержка после выполненной мной работы 24/7. Не оставляю своих заказчиков на едине с проблемой. Отзывы подтверждают, обязательно прочитайте.

Даже если Вы не готовы к сотрудничеству сейчас, то сохраните мои контакты в телефоне

Ниже обо всем подробно.
I. Проектирование устройств электроснабжения для частного сектора:
— проектирование электроустановок квартир;
— проектирование электроустановок частных домов и коттеджей;
— электрообогрев кровли зданий и водосточных труб;
— проект внутреннего электроснабжения и электроосвещение (ЭОМ) для квартир, частных домов и таунхаусов по дизайн-проекту, проекту АР, или зарисовке при выезде на объект;
— проект внутреннего электроснабжения и электроосвещение (ЭОМ) для магазинов и офисов, кафе, ресторанов, островков и фудткортов по дизайн-проекту, проекту АР, или зарисовке при выезде на объект;
— проект внутреннего электроснабжения и электроосвещение (ЭОМ) для промышленных предприятий по дизайн-проекту, проекту АР, или зарисовке при выезде на объект;
— проект электроснабжения (ЭС) для подключения объекта от источника (опора) до частного дома по ТУ;
— проект электроснабжения (ЭС) кабельных и воздушных линий электропередач (0,4/6/10кВ) для технологического присоединения объектов к электросетям по ТУ;
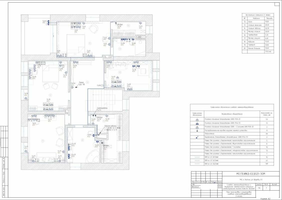
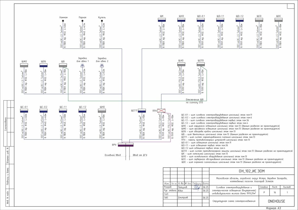
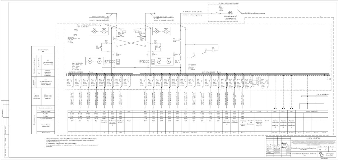
— разработка однолинейной схемы распределительных щитов электроснабжения для любых видов объектов визуализация;
— разработка структурных схем электроснабжения для промышленных и коммерческих помещений;
— разработка проекта молниезащиты и заземления (марка ЭГ);
— расчет + проект внутреннего (марка ЭО) и наружного освещения (марка ЭН) для любых объектов.
— Консультирование, аудит готовых проектов и иные проекты;

II. Выполняю все виды электротехнических и механических расчетов:
— расчет электрических нагрузок,
— расчет освещенности помещений;
— расчет короткого замыкания;
— расчет падения напряжения;
— расчет подбора УДТ (УЗО);
— расчет заземления и молниезащиты;
— расчет выбора трансформатора тока;
— механический расчет опор для контактной сети, линий ВЛ 10/35 кВ;
— выбор способа прохода устройств контактной сети, линий ВЛ 10/35 кВ под искусственными сооружениями (мостами, путепроводами, тоннели и др.);
— подбор электрооборудования и материалов для составления спецификации.

III. Для сети ОАО РЖД:
— составление проектной рабочей документаций документации.
— контактной сети, питающих и отсасывающих линий и линий ВЛ-10 кВ (ВЛ ПЭ, ВЛ СЦБ, ДПР);
— выполнение разделов выноса линий КС, ВЛ при строительстве путепроводов, ИСО;
— линий дистанционного управления разъединителями контактной сети (ДУ);
— воздушных линий 10, 6, 0,4 кВ;
— кабельных линий 10, 6, 0,4 кВ;
— Сопровождение проектирования;
— электрическое освещение промышленных объектов, жилых и общественных зданий, открытых территорий, наружное освещение объектов и площадок, устройств наружного освещения станций и платформ (ЭО, ЭН);
— молниезащиты и заземления зданий, уравнивания потенциалов (ЭГ);
— электроснабжение устройств электрообогрева стрелочных переводов;
— разработка разделов АСКУЭ (на тяговых подстанциях, в зданиях и КТП);
— проектирование резервных электростанций (ДГА, однофазных/трехфазных мощностью от 1 кВт до 500 кВт)
— выполнение разделов по переходу методом ГНБ (горизонтально — направленного бурения);
— электроснабжение устройств электрообогрева стрелочных переводов;
— сбор исходных данных для проектирования;
— обследование существующих линий и устройств электроснабжения (ТП, КТП, тяговые подстанции);
— составление объемов работ для сметчиков;
— опыт составления смет на ПИР;
— участие в комиссиях по авторскому надзору;
— консультирование аудит и иные проекты;
— согласование проектов в службах ОАО РЖД;

Выполненная работа:
— работы по электроснабжению устройств ЖАТ, связи на объектах: Крымского моста, БАМ-2, БАМ-3, МЦК, МЦД, обход Украины и др.
— проектирование переустройств линий ВЛ 0,4−10 кВ, а так же контактной сети (включая проходы под ИСО) при выполнении путевых работ: на главном ходу Санкт- Петербург — Москва, объекты Мурманского направления и др.
— проектирование разделов ЭН, ЭО, ЭМ на объектах: строительство здания дома отдыха локомотивных бригад г. Выборг, строительство комплексов зданий на ст. Тверь и др.
— проектирование наружного освещения: объекты на ст. Фиг-СПб — Выборг.
— проектирование АСКУЭ: в зданиях, ТП, КТП (ст. Тверь, ст. Редкино, Лихославль и др.)

Навыки, знания, умения:
— ПК (AutoCad и приложения, MS Office, Ms Office, MS Word, MS Excel, NANOCad BIM Электро, Visio, DrillSit (программа расчета ГНБ), DIALux, Energy Line, Energy Режим, КОМПАС Электроснабжение)


Сообщить о проблеме
Чтобы написать пользователю, Вам нужно войти или зарегистрироваться
Войти с помощью:

Используя функцию входа через сторонние сервисы, Вы соглашаетесь на обработку персональных данных в соответствии с Политикой конфиденциальности