Автоматизация и контрольно-измерительные приборы (КИПиА) — это комплекс технических и программных решений, направленных на управление технологическими процессами с минимальным участием человека. Она позволяет повышать точность, экономичность и безопасность систем в производстве, инженерной инфраструктуре и гражданском строительстве. Контрольно-измерительные приборы и аппаратура (КИПиА) являются ключевыми компонентами любой автоматизированной системы, обеспечивая сбор, передачу и обработку данных...
Автоматизация и контрольно-измерительные приборы (КИПиА) — это комплекс технических и программных решений, направленных на управление технологическими процессами с минимальным участием человека. Она позволяет повышать точность, экономичность и безопасность систем в производстве, инженерной инфраструктуре и гражданском строительстве. Контрольно-измерительные приборы и аппаратура (КИПиА) являются ключевыми компонентами любой автоматизированной системы, обеспечивая сбор, передачу и обработку данных для корректного функционирования оборудования. В данном разделе каталога собраны чертежи, проекты автоматизации и 3D модели КИПиА, включая как отдельные компоненты, так и целые автоматизированные узлы.
Применение автоматизации и КИПиА:
• Промышленные объекты — автоматизация технологических линий, цехов, упаковки, фасовки, сварки и пр.
• Котельные и тепловые пункты (ИТП) — контроль температуры, давления, автоматическое регулирование подачи теплоносителя.
• Системы водоснабжения и канализации — автоматическое управление насосами, регулировка давления и уровня.
• Очистные сооружения — мониторинг химического состава, автоматическое дозирование реагентов.
• Электроснабжение — диспетчеризация, управление подстанциями, защита и аварийное отключение.
• Здания и сооружения — системы «умный дом», автоматизация вентиляции, освещения, безопасности.
Основные виды приборов КИПиА:
• Датчики температуры, давления, расхода, уровня, вибрации, освещенности и др.
• Преобразователи сигналов (аналоговые/цифровые)
• Контроллеры и логические модули (ПЛК)
• Реле, исполнительные устройства, регуляторы
• Щиты и шкафы автоматизации
• Измерительные приборы — вольтметры, манометры, термометры, тахометры и др.
Классификация КИПиА:
1. По назначению: измерительные, регулирующие, управляющие, исполнительные.
2. По виду измеряемой величины: термические, механические, электрические, химические.
3. По принципу действия: аналоговые, цифровые, пневматические, электромеханические.
Истоки приборов автоматизации уходят в XIX век, когда начали применяться первые механические регуляторы. В XX веке развитие электронной техники дало импульс автоматизации. Сегодня современные интеллектуальные датчики и ПЛК позволяют строить системы промышленного Интернета вещей (IIoT) и киберфизические системы.
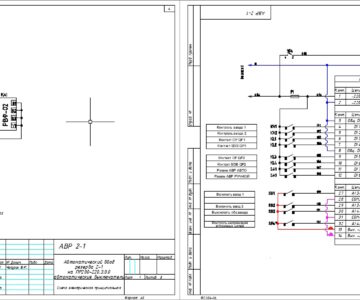
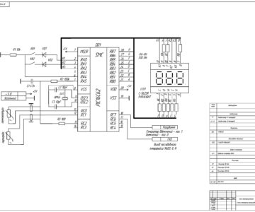
Раздел включает не только компоненты, но и рабочие проекты автоматизации, чертежи технологических узлов, документацию АСУ ТП, примеры компоновки шкафов КИПиА, пояснительные записки, схемы подключения и другие инженерные материалы, полезные в профессиональной и учебной деятельности.