Промышленность строительных материалов — это отрасль, обеспечивающая производство материалов и изделий, необходимых для возведения зданий, сооружений, инженерной и транспортной инфраструктуры. Она является фундаментом развития строительного сектора, обеспечивая надёжность, долговечность и энергоэффективность объектов. В данном разделе каталога представлены чертежи, 3D-модели и проектные решения, охватывающие ключевые производственные линии, заводы, узлы и агрегаты, применяемые в индустрии строит...
Промышленность строительных материалов — это отрасль, обеспечивающая производство материалов и изделий, необходимых для возведения зданий, сооружений, инженерной и транспортной инфраструктуры. Она является фундаментом развития строительного сектора, обеспечивая надёжность, долговечность и энергоэффективность объектов.
В данном разделе каталога представлены чертежи, 3D-модели и проектные решения, охватывающие ключевые производственные линии, заводы, узлы и агрегаты, применяемые в индустрии строительных материалов. Это ценный ресурс для инженеров, проектировщиков, архитекторов, технологов и специалистов по промышленному строительству. В разделе представлены чертежи и 3D-модели для следующих типов предприятий и комплексов:
• Заводы по производству цемента, гипса и извести
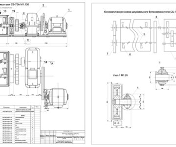
• Бетонные и железобетонные заводы (ЖБИ)
• Кирпичные заводы
• Производство сухих строительных смесей
• Линии по выпуску стекла и стеклопакетов
• Предприятия по выпуску плит (ГКЛ, СМЛ, OSB, ЦСП и др.)
• Заводы по производству утеплителей (минвата, пенополистирол, ППУ)
• Асфальтобетонные установки и щебёночные заводы
• Складские и логистические узлы при заводах
Классификация оборудования и объектов
1. По типу продукции: Минеральные материалы (цемент, гипс, известь, стекло), Органические материалы (битумные, полимерные), Композитные материалы (ЖБИ, панели, утеплители)
2. По стадии производственного цикла: Добыча и переработка сырья, Формование и обработка, Сушка, обжиг, упаковка, Складирование и логистика
Развитие промышленности строительных материалов тесно связано с ростом урбанизации и строительного сектора. Ещё в Древнем Риме использовались прототипы бетона и кирпича. В XIX веке с развитием промышленной революции появились первые цементные и кирпичные заводы, а XX век стал эпохой массового производства ЖБИ и современных утеплителей. Современные предприятия используют цифровое моделирование, BIM-технологии и автоматизированные линии, обеспечивая высокую точность, экологичность и энергоэффективность производства.