Перейти к содержимому
Войти

Уважаемые пользователи! В настоящий момент платежи через ЮKassa временно недоступны в связи с техническими неполадками на стороне сервиса. Функционирует резервный канал оплаты. Если у кого-то из вас не прошёл платёж за 27.04 напишите пожалуйста в контакты.

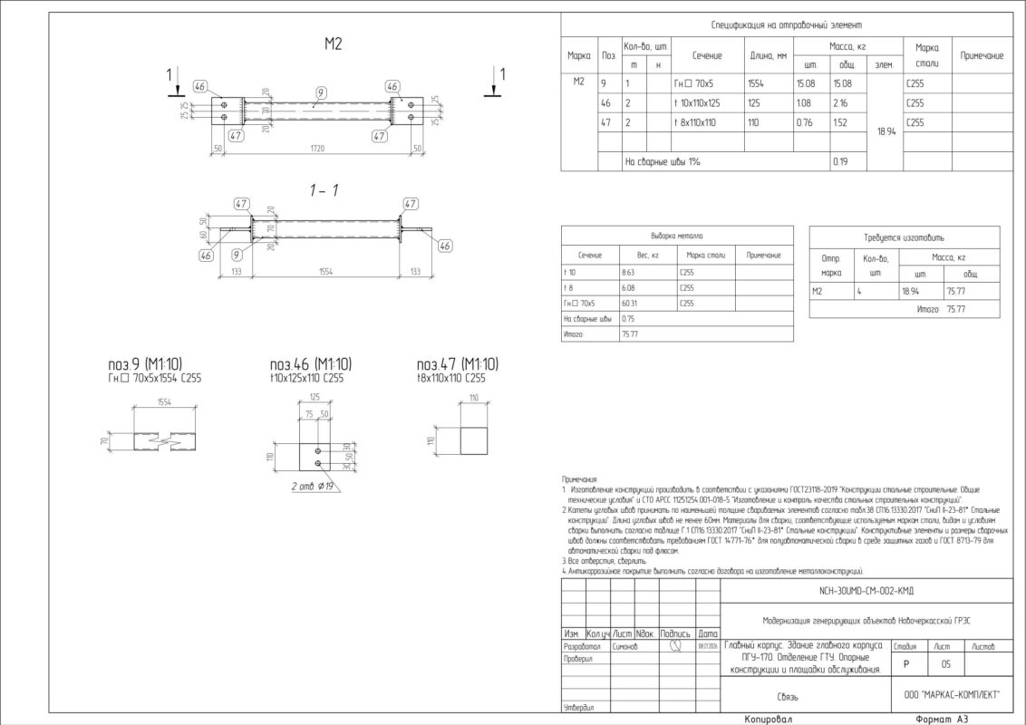
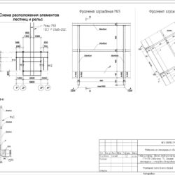
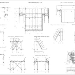
Разработка рабочей документации (кмд)

24 февраля 2026
52
Краснодар
1000 ₽
Пользователь: Дмитрий Симонов Отзывов 0

Предлагаю услуги по разработке чертежей КМД зданий и сооружений.

🔧Большой опыт работы, в том числе на заводе металлоконструкций;
🏘Разрабатываю проекты площадок, лестниц, эстакад, складов, промышленных и гражданских зданий;
👨‍💻Работаю в Advance Steel. Имеется 3D модель - гарантия правильности проекта;
🏗3D модель передаётся вместе с чертежами в форматах .dwg, .ifc, .nwd или других - облегчает изготовление и монтаж;
⚙️Предоставляются файлы .dxf для плазменной или газовой резки;
📝Необходимые ведомости и спецификации предоставляются в формате Exel;
✏️Индивидуальный подход к каждому заказчику;
💼Прямой исполнитель, без посредников;
🗓 Возможна поэтапная выдача документации;
👥При большом объёме проекта возможна групповая работа;
📝Работаю как частное лицо или как самозанятый, при необходимости предоставлю отчетные бухгалтерские документы;
🌎Работаю по всей стране;


Сообщить о проблеме
Чтобы написать пользователю, Вам нужно войти или зарегистрироваться
Войти с помощью:

Используя функцию входа через сторонние сервисы, Вы соглашаетесь на обработку персональных данных в соответствии с Политикой конфиденциальности