Перейти к содержимому
Войти

Печь - буржуйка с конвекторами

0
4
105
2
0
40

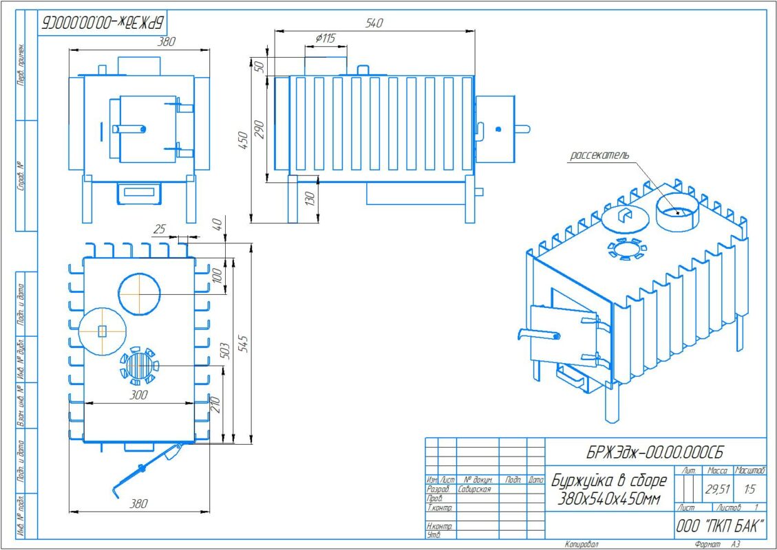
Печь - буржуйка с конвекторами. Предназначена для отопления на даче, в гараже и т.д. Присутствует зольник и рассекатель. Изготовлена из стали, S=3мм. Модель выполнена с подробной деталировкой в КОМПАС-3D V19


Сообщить о проблеме
Дата
13.03.2026
Язык
Русский
Состав
БРЖЭдж - 00.00.000СБ, бак (СБ), колосник (СБ), дверца в сборе (СБ), крышка в сборе (СБ), петля в сборе (СБ), ящик в сборе (СБ). Деталировка: обечайка, уголок, рассекатель, арматура, ящик, ручка, крышка, пластина, передняя стенка, задняя стенка, дно, основание, винт, шайба, гайка, уголок 3х25х25мм
Софт
КОМПАС-3D 19 Как открыть?
Отзывов пока нет
Задать вопрос
Содержимое архива
  • icon-m3d Арматура.m3d
  • icon-m3d БРЖЭ-00.00.005 - Обечайка.m3d
  • icon-m3d БРЖЭ-00.00.006 - Уголок.m3d
  • icon-m3d БРЖЭ-00.00.007 - Пластина.m3d
  • icon-m3d БРЖЭ-00.00.008 - Засов.m3d
  • icon-a3d БРЖЭ-01.00.000СБ - Бак.a3d
  • icon-m3d БРЖЭ-01.00.001 - Основание.m3d
  • icon-m3d БРЖЭ-01.00.002 - Задняя стенка.m3d
  • icon-m3d БРЖЭ-01.00.003 - Передняя стенка.m3d
  • icon-m3d БРЖЭ-01.00.004 - Дно.m3d
  • icon-a3d БРЖЭ-02.00.000СБ - Колосник.a3d
  • icon-a3d БРЖЭ-03.00.000СБ - Петля в сборе.a3d
  • icon-m3d БРЖЭ-03.00.001 - Пластина.m3d
  • icon-a3d БРЖЭ-04.00.000СБ - Ящик в сборе.a3d
  • icon-m3d БРЖЭ-04.00.001 - Ящик.m3d
  • icon-m3d БРЖЭ-04.00.002 - Ручка.m3d
  • icon-a3d БРЖЭ-05.00.000СБ - Дверца в сборе.a3d
  • icon-m3d БРЖЭ-05.00.001 - Крышка.m3d
  • icon-m3d БРЖЭ-05.00.003 - Пластина.m3d
  • icon-a3d БРЖЭ-08.00.000СБ - Крышка в сборе.a3d
  • icon-m3d БРЖЭ-08.00.001 - Крышка.m3d
  • icon-m3d БРЖЭ-08.00.002 - Ручка.m3d
  • icon-a3d БРЖЭдж-00.00.000СБ - Печь буржуйка 380х540х450мм.a3d
  • icon-step БРЖЭдж-00.00.000СБ - Печь буржуйка 380х540х450мм.stp
  • icon-a3d БРЖЭдж-01.00.000СБ - Бак.a3d
  • icon-m3d БРЖЭдж-01.00.007 - Уголок.m3d
  • icon-m3d БРЖЭдж-01.00.008 - Рассекатель.m3d
  • icon-m3d Пруток.m3d
  • icon-m3d Уголок 3х25х25мм.m3d
Чтобы скачать чертеж, 3D модель или проект, Вы должны зарегистрироваться и принять участие в жизни сайта. Посмотрите, как тут скачивать файлы
Отзывов пока нет
Чтобы оставить отзыв, необходимо войти
Войти с помощью:

Используя функцию входа через сторонние сервисы, Вы соглашаетесь на обработку персональных данных в соответствии с Политикой конфиденциальности