Перейти к содержимому
Войти

Диплом: Проектирование городской распределительной подстанции для питания группы жилых и промышленных нагрузок

0
0
94
0
0
200

ПРИАЗОВСЬКИЙ ДЕРЖАВНИЙ ТЕХНІЧНИЙ УНІВЕРСИТЕТ, Електроенергетичні комплекси та системи, Проектування міської розподільної підстанції для живлення групи
житлових і промислових навантажень, 2020 р.

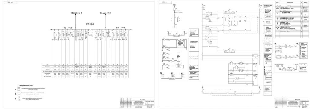
3. Вихідні дані до проекту ТП-1: ТМ-630/10, 2 шт., Кз=0,52, cos=0,76;
ТП-2: ТМ-1000/10, 2 шт., Кз=0,48, cos=0,84; ТП-3: ТМ-630/10, 1 шт., Кз=0,82, cos=0,69;
ТП-4: ТМ-630/10, 1 шт., Кз=0,72, cos=0,82; ТП-5: ТМ-1000/10, 1 шт., Кз=0,85, cos=0,74;
ТП-6: ТМ-400/10, 1 шт., Кз=0,92, cos=0,83; Відстань від проектованого РП до ПГВ -
1,8 км; потужності короткого замикання на шинах 10 кВ в мінімальному і максимальному режимах - Sкз min = 265 МВА, Sкз max = 290 МВА.
максимальному режимах - Sкз min = 265 МВА, Sкз max = 290 МВА.
ЗМІСТ

ВСТУП 7
1 ЗАГАЛЬНА ЧАСТИНА 8
1.1 Коротка характеристика міських споживачів електроенергії. Визначення категорій електроприймачів з точки зору надійності електропостачання 8
1.2 Розрахунок електричних навантажень на шинах РП 9
1.3 Вибір і обгрунтування схеми електропостачання проектованої РП 12
1.4 Вибір перетинів живлячих РП і розподільних кабельних ліній 10 кВ 15
1.4.1 Вибір перерізу кабельних ліній розподільної мережі 15
1.4.2 Вибір перерізу кабельних ліній для введень РП 16
1.4.3 Перевірка кабельних ліній на втрату напруги 17
1.5 Розрахунок струмів короткого замикання 19
1.6 Перевірка кабельних ліній на термічну стійкість до струмів КЗ 20
1.7. Вибір основного електрообладнання: вимикачів, вимірювальних тр-рів струму і напруги, КРУ 29
1.7.1 Вибір осередків КРУ 30
1.7.2 Вибір високовольтних вимикачів 34
1.7.3 Вибір трансформаторів струму 37
1.7.4 Вибір трансформаторів напруги 39
1.8 Вибір захисту від перенапружень 40
1.9 Вибір трансформатора власних потреб 41
1.10 Вибір облаштувань релейного захисту і автоматики 42
2 ОХОРОНА ПРАЦІ І БЕЗПЕКА В НАДЗВИЧАЙНИХ СИТУАЦІЯХ 48
2.1 Аналіз небезпек і шкідливостей на підстанції РП 48
2.2 Вентиляція 50
2.3 Електробезпека 51
2.3.1 Підготовка електротехнічного персоналу 51
2.3.2 Електротехнічні захисні засоби 52
2.4 Захисне заземлення 53
2.5 Пожежо- і вибухобезпечність 55
ПЕРЕЛІК ПОСИЛАНЬ 58


Сообщить о проблеме
Дата
05.05.2021
Язык
Украинский
Состав
Пояснительная записка, Два чертежа графической части
Софт
Microsoft Visio 2003
Отзывов пока нет
Задать вопрос
Содержимое архива
  • icon-visio 1-Однолинейная схема.vsd
  • icon-visio 2-релейка (защита вводов).vsd
  • icon-doc Диплом Гусак 18,06,20.docx
Чтобы скачать чертеж, 3D модель или проект, Вы должны зарегистрироваться и принять участие в жизни сайта. Посмотрите, как тут скачивать файлы
Отзывов пока нет
Чтобы оставить отзыв, необходимо войти
Войти с помощью:

Используя функцию входа через сторонние сервисы, Вы соглашаетесь на обработку персональных данных в соответствии с Политикой конфиденциальности