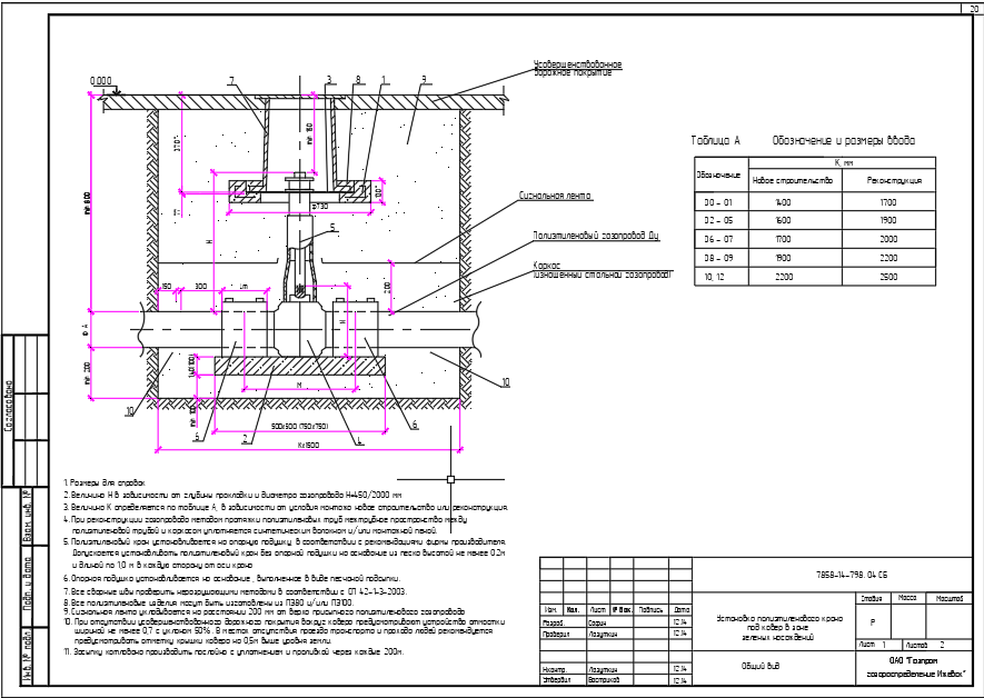
Установка полиэтиленового крана под ковер в зоне зеленых насаждений, в данном разделе предоставлен общий чертеж со спецификацией всех типовым кранов от 32 до 200 с размерами и обозначениями
- Главная -
- Чертежи -
- Инженерные системы -
- Установка полиэтиленового крана под ковер в зоне зеленых насаждений
Установка полиэтиленового крана под ковер в зоне зеленых насаждений
0
0
33
2
0
Бесплатно
Сообщить о проблеме
Автор
Дата
17.04.2026
Язык
Русский
Состав
АР
Софт
AutoCAD 19
Как открыть?
Отзывов пока нет
Содержимое архива
-
Установка полиэтиленового крана под ковер в зоне зеленых насаждений.dwg
Чтобы скачать чертеж, 3D модель или проект, Вы должны зарегистрироваться
и принять участие в жизни сайта. Посмотрите, как тут скачивать
файлы
Отзывов пока нет
Чтобы оставить отзыв, необходимо войти
Войти с помощью:
Используя функцию входа через сторонние сервисы, Вы соглашаетесь на обработку персональных данных в соответствии с Политикой конфиденциальности
Используя функцию входа через сторонние сервисы, Вы соглашаетесь на обработку персональных данных в соответствии с Политикой конфиденциальности