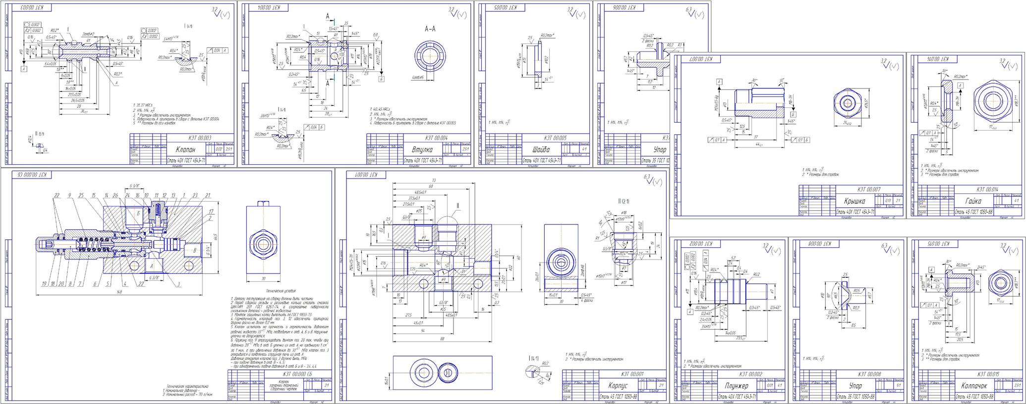
Клапан запорный тормозной предназначен для использования в гидроприводах грузоподъемных машин с целью поддержания заданных скоростей перемещения, а так же для защиты гидроприводов от перегрузок и обеспечения фиксации грузов в требуемом положении.
- Главная -
- Чертежи -
- Машиностроение и механика -
- Гидравлика и пневматика -
- Клапан запорный тормозной
Клапан запорный тормозной
0
109
630
2
0
100

Сообщить о проблеме
Автор
Дата
28.01.2017
Язык
Русский
Состав
Сборочный чертеж (СБ), деталировка, спецификация
Софт
КОМПАС-3D 11
Как открыть?
Отзывов пока нет
Содержимое архива
Чтобы скачать чертеж, 3D модель или проект, Вы должны зарегистрироваться
и принять участие в жизни сайта. Посмотрите, как тут скачивать
файлы
Отзывов пока нет
Чтобы задать вопрос, необходимо войти
Войти с помощью:
Ссылка на логин через google
Ссылка на логин через vk
Ссылка на логин через yandex