Перейти к содержимому
Войти

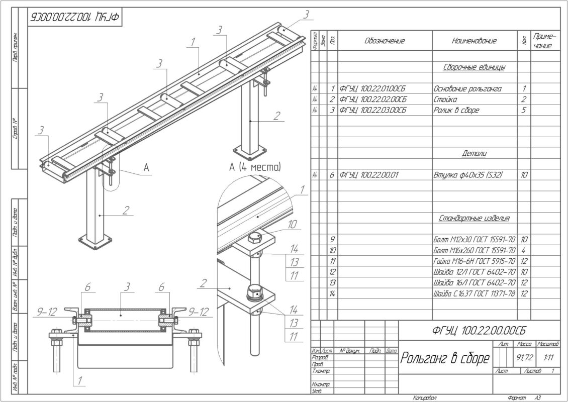
Рольганг для ленточной пилы

1
2
45
0
0
70

Рольганг для ленточной пилы длиной 2750, шириной 244; имеет лоток для слива СОЖ. В модели использованы стандартный прокат и подшипники. Возможность изготовить в небольшой мастерской (токарный станок обязателен)


Сообщить о проблеме
Дата
27.03.2026
Язык
Русский
Состав
Модель (каждая деталь отдельно и отдельно сборки) чертежи (сборочные чертежи, деталировка, +чертеж лотка и основания CAD для ЧПУ ), спецификация, файлы IPG чертежей
Софт
КОМПАС-3D 19 Как открыть?
Отзывов пока нет
Задать вопрос
Содержимое архива
  • icon-m3d Втулка S17х50 (М8х25).m3d
  • icon-cdw Втулка ф40х35 (S32) _ ФГУЦ 100.22.00.01.cdw
  • icon-jpg Втулка ф40х35 (S32) _ ФГУЦ 100.22.00.01.jpg
  • icon-m3d Втулка ф60х40 (ф16,2).m3d
  • icon-cdw Косынка 130х65х12 _ ФГУЦ 100.22.02.03.cdw
  • icon-jpg Косынка 130х65х12 _ ФГУЦ 100.22.02.03.jpg
  • icon-m3d Косынка 130х65х12.m3d
  • icon-m3d Лоток 2750х458х1,5.m3d
  • icon-cdw Лоток 2752х458х1,5 _ ФГУЦ 100.22.01.03.cdw
  • icon-jpg Лоток 2752х458х1,5 _ ФГУЦ 100.22.01.03.jpg
  • icon-dxf Лоток 2752х458х1,5.dxf
  • icon-frw Лоток 2752х458х1,5.frw
  • icon-a3d Лоток рольганга.a3d
  • icon-dxf Основание 200х200х10,0 (4ф18).dxf
  • icon-frw Основание 200х200х10,0 (4ф18).frw
  • icon-m3d Основание 200х200х10,0 (4ф18).m3d
  • icon-cdw Основание 200х200х10,0 (4ф18) _ ФГУЦ 100.22.02.01.cdw
  • icon-jpg Основание 200х200х10,0 (4ф18) _ ФГУЦ 100.22.02.01.jpg
  • icon-cdw Основание рольганга _ ФГУЦ 100.22.01.00СБ.cdw
  • icon-jpg Основание рольганга _ ФГУЦ 100.22.01.00СБ.jpg
  • icon-spw Основание рольганга _ ФГУЦ 100.22.01.00СБ.spw
  • icon-m3d Полоса 12х65х244.m3d
  • icon-m3d Поперечная 12х65х396 (2ф18).m3d
  • icon-cdw Поперечная 12х65х396 (2ф18) _ ФГУЦ 100.22.02.02.cdw
  • icon-jpg Поперечная 12х65х396 (2ф18) _ ФГУЦ 100.22.02.02.jpg
  • icon-a3d Ролик в сборе.a3d
  • icon-cdw Ролик в сборе _ ФГУЦ 100.22.03.00СБ.cdw
  • icon-jpg Ролик в сборе _ ФГУЦ 100.22.03.00СБ.jpg
  • icon-spw Ролик в сборе _ ФГУЦ 100.22.03.00СБ.spw
  • icon-a3d Рольганг в сборе.a3d
  • icon-jpg Рольганг в сборе.jpg
  • icon-step Рольганг в сборе.stp
  • icon-cdw Рольганг в сборе _ ФГУЦ 100.22.00.00СБ.cdw
  • icon-jpg Рольганг в сборе _ ФГУЦ 100.22.00.00СБ.jpg
  • icon-spw Рольганг в сборе _ ФГУЦ 100.22.00.00СБ.spw
  • icon-a3d Стойка.a3d
  • icon-cdw Стойка _ ФГУЦ 100.22.02.00СБ.cdw
  • icon-jpg Стойка _ ФГУЦ 100.22.02.00СБ.jpg
  • icon-spw Стойка _ ФГУЦ 100.22.02.00СБ.spw
  • icon-m3d Труба 100х100х3,0х700.m3d
  • icon-m3d Труба ф60х3,5х204.m3d
  • icon-cdw Труба ф60х3,5х210 _ ФГУЦ 100.22.03.01.cdw
  • icon-jpg Труба ф60х3,5х210 _ ФГУЦ 100.22.03.01.jpg
  • icon-m3d Ухо 12х65х76 (ф18).m3d
  • icon-cdw Ухо 12х65х76 (ф18) _ ФГУЦ 100.22.01.02.cdw
  • icon-jpg Ухо 12х65х76 (ф18) _ ФГУЦ 100.22.01.02.jpg
  • icon-m3d Ш6,5Ух2750 (5ф12,2).m3d
  • icon-cdw Ш6,5Ух2750 (5ф12,2) _ ФГУЦ 100.22.01.01.cdw
  • icon-jpg Ш6,5Ух2750 (5ф12,2) _ ФГУЦ 100.22.01.01.jpg
  • icon-m3d Шайба ф54х3,0 (ф12,2).m3d
Чтобы скачать чертеж, 3D модель или проект, Вы должны зарегистрироваться и принять участие в жизни сайта. Посмотрите, как тут скачивать файлы
Отзывов пока нет
Чтобы оставить отзыв, необходимо войти
Войти с помощью:

Используя функцию входа через сторонние сервисы, Вы соглашаетесь на обработку персональных данных в соответствии с Политикой конфиденциальности