Перейти к содержимому
Войти

Разработать технологический процесс ремонта кольцевой рамы башенного крана КБ-408

0
2
307
4
0
50

Белорусский национальный технический университет
Кафедра Строительные и дорожные машины
Дисциплина Технология ремонта машин
Тема "Разработать технологический процесс ремонта кольцевой рамы башенного крана КБ-408"
год 2014

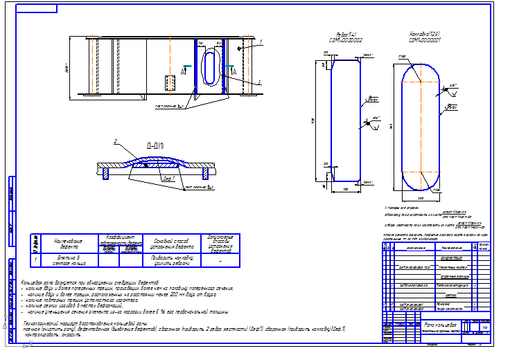
Обьект исследования – кольцевая рама башенного крана КБ-408.
Предмет исследования – методы ремонта и восстановления кольцевой рамы башенного крана КБ-408.
Цель работы: углубление и расширение познаний в области технологий производства и ремонта подъёмно-транспортных машин, изучение методик и рекомендаций по выявлению, анализу и устранению дефектов кольцевой рамы башенного крана КБ-408. Приобретение умения принимать правильные инженерные решения, обоснованные расчётами и путем исследования дефекта, а также помощь в изучении соответствующей научно-технической литературы. Выработка навыков в составлении расчётно-пояснительной записки и подготовка студента к выполнению дипломного проекта с элементами курса “Технология производства и ремонта машин”.

Важный элемент башенного крана - ходовая рама для передачи действующих нагрузок на крановые пути. У кранов с неповоротными башнями ходовые рамы выполнены в виде закрытого шатрового или открытого П-образного портала. У большинства кранов, имеющих неповоротную башню, ходовая рама - шатровая, выполненная в форме усеченной пирамиды. В кранах с поворотными башнями действующие на кран нагрузки передаются на ходовую раму через опорно-поворотное устройство, размещенное в верхней части рамы, и с нее - на крановые пути. Через опорно-поворотное устройство у мобильных кранов башня соединена с ходовой рамой. Само по себе опорно-поворотное устройство необходимо для обеспечения вращения поворотной части башенного крана относительно неповоротной части и для передачи нагрузок с поворотной части на неповоротную. Это устройство расположено на поворотной платформе крана [2].
Дефекты и повреждения металлических конструкций кранов являются следствием совокупности причин:
• низкого качества металла и несоответствия его свойств техническим требованиям;
• неудовлетворительного конструктивного решения;
• неудовлетворительного качества изготовления и монтажа отдельных элементов;
• эксплуатации кра¬пов в непредусмот¬ренном режиме, а также плохого ухо¬да и ремонта.

В процессе работы ходовая рама испытывает нагрузки вследствие сил инерции, возникающих от веса металлоконструкции крана и груза, при разгоне крана и при его торможении.
В нашем случае после обследования выявлены следующие дефекты:

• Вмятина в секторе кольца (Деф.1);

Ходовая рама башенного крана КБ-408 выполнена сварной из проката стали марки Ст. 3 ГОСТ 380 [12].


Сообщить о проблеме
Дата
30.11.2018
Язык
Русский
Состав
Приспособление установочное(СБ), Маршрутная карта, Ремонтный чертеж, ПЗ
Софт
КОМПАС-3D 14 Как открыть?
Отзывов пока нет
Задать вопрос
Содержимое архива
  • icon-cdw prisposoblenie_ustanovochnoe.cdw
  • icon-doc REFERAT.docx
  • icon-cdw Spetsifikatsia_-prisposoblenie_ustanovovchnoe.cdw
  • icon-doc Titulny_list.doc
  • icon-cdw Маршрутная карта.cdw
  • icon-doc ПЗ.doc
  • icon-doc Приложения.docx
  • icon-cdw Ремонтный чертеж.cdw
  • icon-doc СВАРОЧНАЯ1 (1) - копия.doc
  • icon-doc СВАРОЧНАЯ1 (1).doc
  • icon-doc СВАРОЧНАЯ1.doc
  • icon-doc ТЕХПРОЦЕСС.DOC
Чтобы скачать чертеж, 3D модель или проект, Вы должны зарегистрироваться и принять участие в жизни сайта. Посмотрите, как тут скачивать файлы
Отзывов пока нет
Чтобы оставить отзыв, необходимо войти
Войти с помощью:

Используя функцию входа через сторонние сервисы, Вы соглашаетесь на обработку персональных данных в соответствии с Политикой конфиденциальности