Перейти к содержимому
Войти

Проектирование электрического лифта ГП 450кг

0
0
75
1
0
50

МГСУ
Кафедра механизации, автоматизации и роботизации строительства
Курсовой проект по дисциплине "Лифты и подъемники"
На тему: Проектирование электрического лифта
Москва 2025

Размеры брались произвольно, по эмпирическим данным, часто проектируемых шахт.
Лифт ГП 450кг

ОГЛАВЛЕНИЕ
ВВЕДЕНИЕ 4
1. Статический расчет 5
2. Динамический расчёт 21
3. Расчетное обоснование параметров канавки обода КВШ 39
ЗАКЛЮЧЕНИЕ 42
БИБЛИОГРАФИЧЕСКИЙ СПИСОК 43


Сообщить о проблеме
Автор
user-avatar karnaval98
Дата
19.03.2026
Язык
Русский
Состав
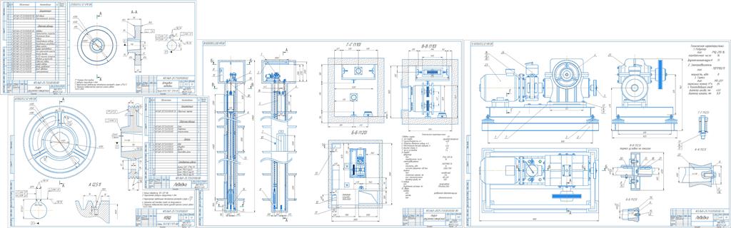
Лифт (ВО), Лебедка (СБ), Деталировка (КВШ, Штурвал), ПЗ, Спецификация
Софт
КОМПАС-3D 23 учебная версия Как открыть?
Отзывов пока нет
Задать вопрос
Содержимое архива
    • icon-cdw КВШ.cdw
    • icon-pdf КВШ.pdf
    • icon-cdw Лебедка_СБ.cdw
    • icon-pdf Лебедка_СБ.pdf
    • icon-cdw Лифт_ВО.cdw
    • icon-pdf Лифт_ВО.pdf
    • icon-doc ПЗ.docx
    • icon-pdf ПЗ.pdf
    • icon-pdf Спецификация_Лебедка.pdf
    • icon-spw Спецификация_Лебедка.spw
    • icon-pdf Спецификация_Лифт.pdf
    • icon-spw Спецификация_Лифт.spw
    • icon-cdw Штурвал.cdw
    • icon-pdf Штурвал.pdf
Чтобы скачать чертеж, 3D модель или проект, Вы должны зарегистрироваться и принять участие в жизни сайта. Посмотрите, как тут скачивать файлы
Отзывов пока нет
Чтобы оставить отзыв, необходимо войти
Войти с помощью:

Используя функцию входа через сторонние сервисы, Вы соглашаетесь на обработку персональных данных в соответствии с Политикой конфиденциальности