Перейти к содержимому
Войти

Обработка детали Втулка материал: сталь 45 ГОСТ 1051-73

0
29
1827
7
0
40

Воронежский государственный технический университет
Кафедра автоматизированного оборудования машиностроительного производства
Курсовая работа по дисциплине «Процессы и операции формообразования»
На тему: Обработка детали "Втулка" , материал: сталь 45 ГОСТ 1051-73
Воронеж 2017

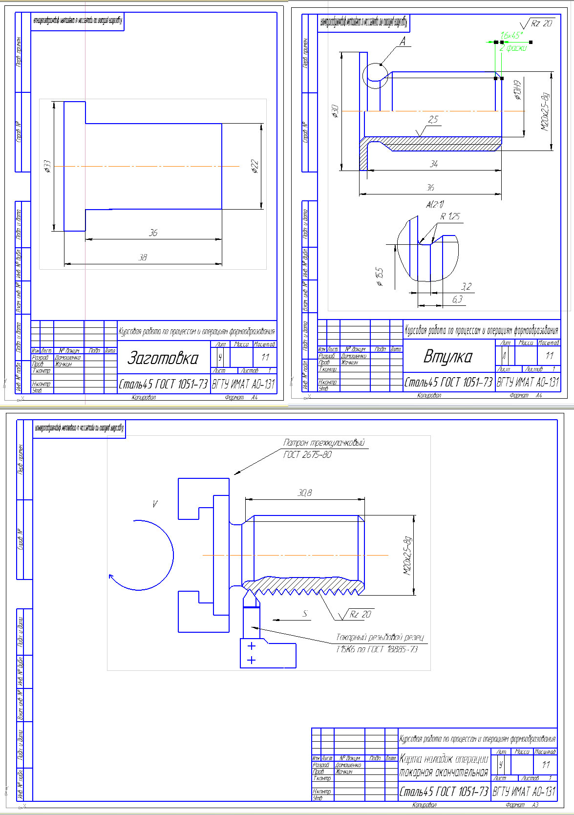
Деталь втулка представляет собой полое тело вращения типа «втулка с буртом». Габаритные размеры детали 30х36 мм. Из конструктивных особенностей можно отметить наличие: сквозного центрального отверстия Ø13мм, наружной резьбы М20-8g, проточки для сбега резца шириной 3.2 мм.
Наиболее точной поверхностью является внутренняя цилиндрическая поверхность Ø13H9(+0.043) с шероховатостью Rz=2.5 мкм. Остальные размеры выполнены по 12-му квалитету с шероховатостью Rz=20 мкм.
Оглавление
Задание на курсовой проект
Замечания руководителя
Введение
Описание назначения детали и условия ее работы……………………………..7
Описание типа производства и формы организации работ...…………………..8
Выбор заготовки и ее конструирование………………………………………...10
Обозначение маршрута обработки элементарных поверхностей и маршрутной технологии………………………………………………………………………..11
Расчет режимов резания и техническое нормирование……………………….13
Заключение……………………………………………………………………….19
Список используемой литературы………………………………………………20
Приложения

Для данной курсовой работы выбран серийный тип производства. В результате выполнения курсовой работы для закрепления знаний по предмету «Процессы и операции формообразования» был проведен расчёт режущего инструмента. Вследствие чего был разработана карта наладки на токарную обработку и чертеж токарного резца. Выполняя работу, был освоен всесторонне-объективный подход к поставленной задаче и более чёткое привлечение требуемой литературы.


Сообщить о проблеме
Дата
02.06.2017
Язык
Русский
Состав
Втулка, Карта наладки, Режущий инструмент, Заготовка, ПЗ
Софт
КОМПАС-3D 12 Как открыть?
Отзывов пока нет
Задать вопрос
Содержимое архива
  • icon-cdw
    Втулка.cdw
  • icon-cdw
    Заготовка.cdw
  • icon-cdw
    Карта наладки.cdw
  • icon-doc
    Курсач v2.0.docx
  • icon-cdw
    Резец Резьбовой .cdw
Чтобы скачать чертеж, 3D модель или проект, Вы должны зарегистрироваться и принять участие в жизни сайта. Посмотрите, как тут скачивать файлы
Отзывов пока нет
Чтобы оставить отзыв, необходимо войти
Войти с помощью:

Используя функцию входа через сторонние сервисы, Вы соглашаетесь на обработку персональных данных в соответствии с Политикой конфиденциальности