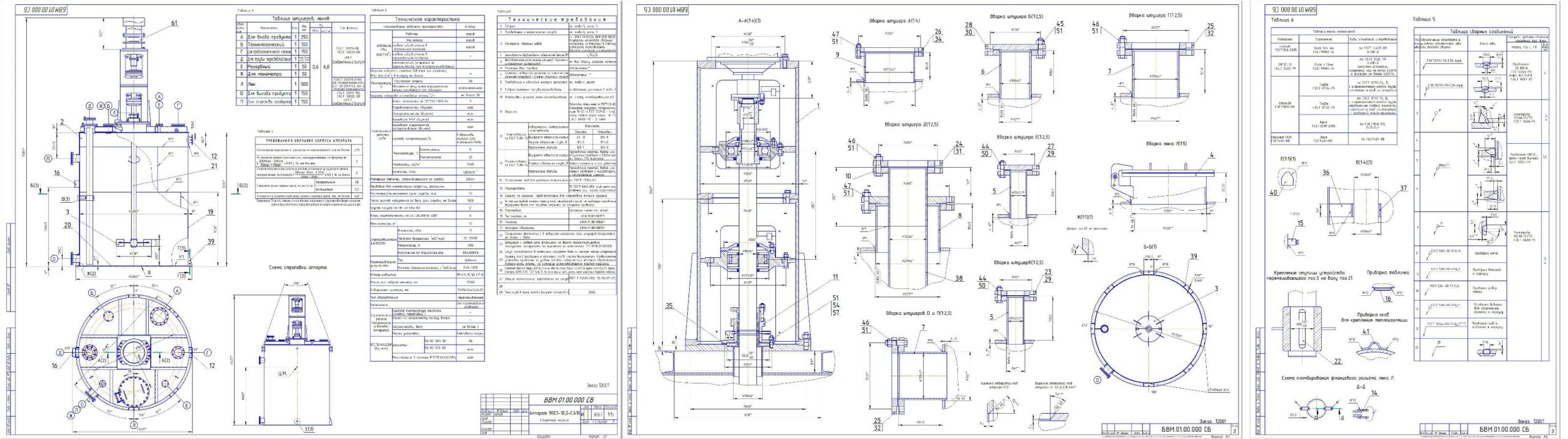
Аппарат предназначен для ведения химического процесса с перемешиванием среды под атмосферным давлении.
На аппарате установлен мотор-редуктор и турбинная мешалка. Объм аппарата 10 метр. куб.
- Главная -
- Чертежи -
- Промышленность -
- Химическая промышленность (ПАХТ и ПАПП) -
- Аппарат 9003-10,0-СА10. мешалка с плоской крышкой и днищем
Аппарат 9003-10,0-СА10. мешалка с плоской крышкой и днищем
0
94
941
11
0
50
Сообщить о проблеме
Автор
Дата
08.12.2016
Язык
Русский
Состав
Сборочный чертеж (общего вида на 3 листах) и спецификация
Софт
КОМПАС-3D 14 SP1
Как открыть?
Отзывов пока нет
Содержимое архива
-
-
Аппарат 9003-10,0-СА10 для маштаба.cdw
-
Специикация 12001 для масштаба.spw
-
Чтобы скачать чертеж, 3D модель или проект, Вы должны зарегистрироваться
и принять участие в жизни сайта. Посмотрите, как тут скачивать
файлы
Отзывов пока нет
Чтобы оставить отзыв, необходимо войти
Войти с помощью:
Используя функцию входа через сторонние сервисы, Вы соглашаетесь на обработку персональных данных в соответствии с Политикой конфиденциальности
Используя функцию входа через сторонние сервисы, Вы соглашаетесь на обработку персональных данных в соответствии с Политикой конфиденциальности