Перейти к содержимому
Войти

Проектирование аппарата с мешалкой V=2м3

0
48
3072
16
0
80

Санкт-Петербургский государственный Технологический институт 2016
Кафедра механики
Курсовой проект по дисциплине "Прикладная механика"
На тему: "Проектирование аппарата с мешалкой"
Санкт-Петербург 2016

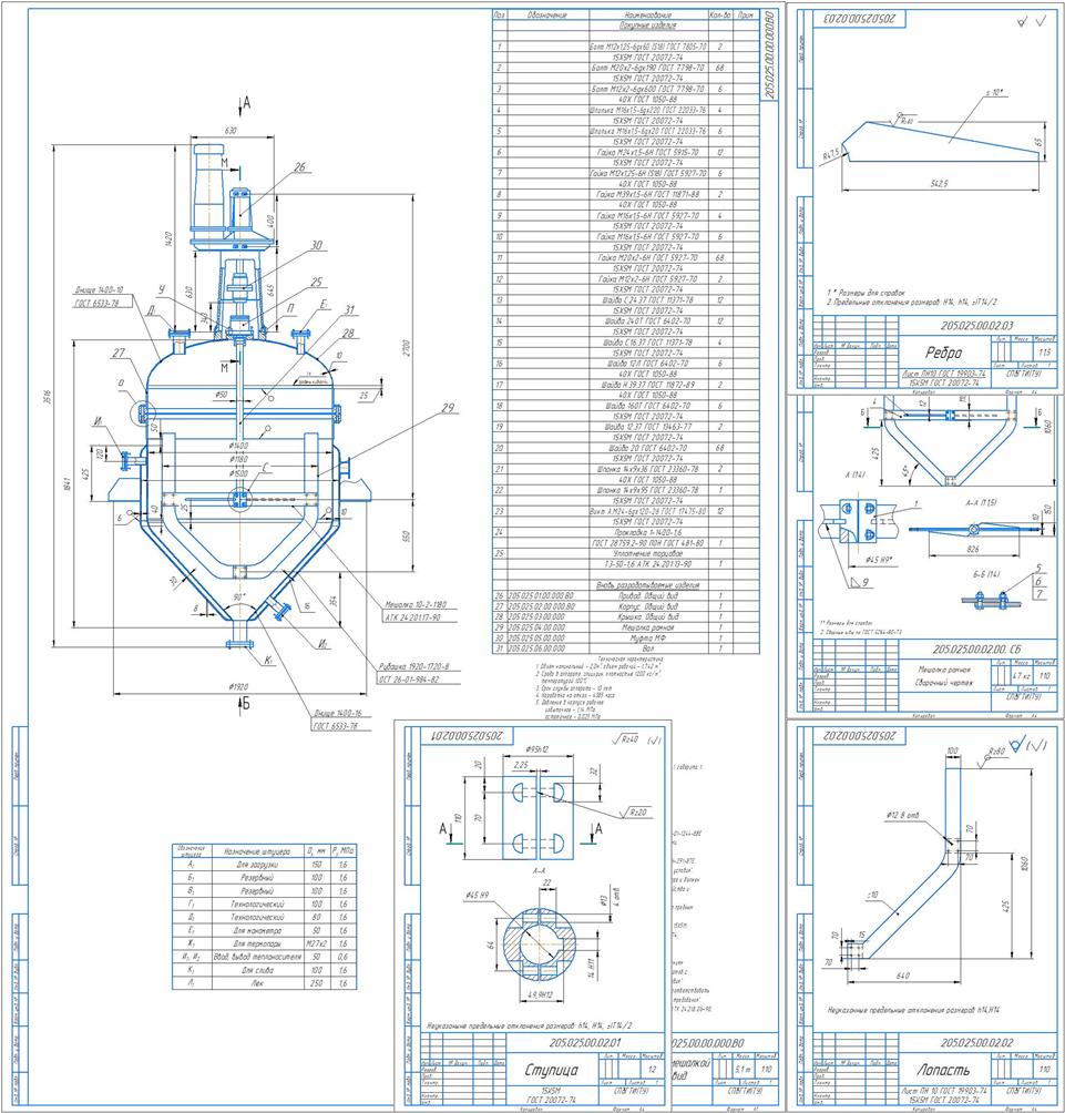
Исходные данные аппарата: D=1400мм, V=2м3, рамная мешалка с диаметром 1180 мм, частотой вращение 63 об/мин. Среда: глицерин, плотность 1200кг/м3.
Графическая часть содержит общие виды аппарата, а также чертежи деталей аппарата.
Пояснительная записка включает в себя:

СОДЕРЖАНИЕ
Введение 5
1.Цели и задачи проекта 6
2. Эскизный проект 7
2.1 Выбор конструкционных материалов 7
2.2 Расчетная температура 7
2.3 Выбор допускаемых напряжений 7
2.4 Определение рабочего, расчётного, пробного и условного давлений 9
2.5 Выбор комплектующих элементов 11
2.6 Оценка надежности выбранного варианта компоновки аппарата 12
3 Технический проект 14
3.1 Расчет элементов корпуса аппарата 14
3.1.1 Определение коэффициентов прочности сварных швов и прибавки для компенсации коррозии 14
3.1.2 Предварительный расчет толщины стенок оболочек из условия прочности 14
3.1.3 Предварительный расчет толщин стенок оболочек из условия устойчивости 15
3.1.4 Определение исполнительной толщины стенок оболочек 17
3.1.5 Определение допускаемых давлений 18
3.1.6 Укрепление отверстий 22
3.1.7 Фланцевые соединения 24
3.1.8 Расчет опор и монтажных цапф аппарата 27
3.2 Расчет элементов механического перемешивающего устройства 31
3.2.1 Валы мешалок 31
3.2.2 Уточненный расчет нагрузок на подшипники вала мешалки 38
3.2.3 Мешалка 42
3.2.4 Шпоночное соединение ступицы мешалки с валом 44
3.2.5 Муфты 46
Заключение 47
СПИСОК ИСПОЛЬЗОВАННЫХ ИСТОЧНИКОВ: 50


Сообщить о проблеме
Автор
user-avatar cold_cell
Дата
13.06.2017
Язык
Русский
Состав
Пояснительная записка, общий вид (2л), ступица, ребро, мешалка рамная, лопасть, спецификация
Софт
КОМПАС-3D 16 Как открыть?
Отзывов пока нет
Задать вопрос
Содержимое архива
  • icon-doc Пояснительная записка.docx
  • icon-cdw Ребро.cdw
  • icon-cdw аппатар с мешалкой.cdw
  • icon-cdw лопасть.cdw
  • icon-cdw мешалка рамная.cdw
  • icon-cdw спецификация.cdw
  • icon-cdw ступица.cdw
Чтобы скачать чертеж, 3D модель или проект, Вы должны зарегистрироваться и принять участие в жизни сайта. Посмотрите, как тут скачивать файлы
Отзывов пока нет
Чтобы оставить отзыв, необходимо войти
Войти с помощью:

Используя функцию входа через сторонние сервисы, Вы соглашаетесь на обработку персональных данных в соответствии с Политикой конфиденциальности