Перейти к содержимому
Войти

Пропановоз NG 42

0
1
135
1
0
20

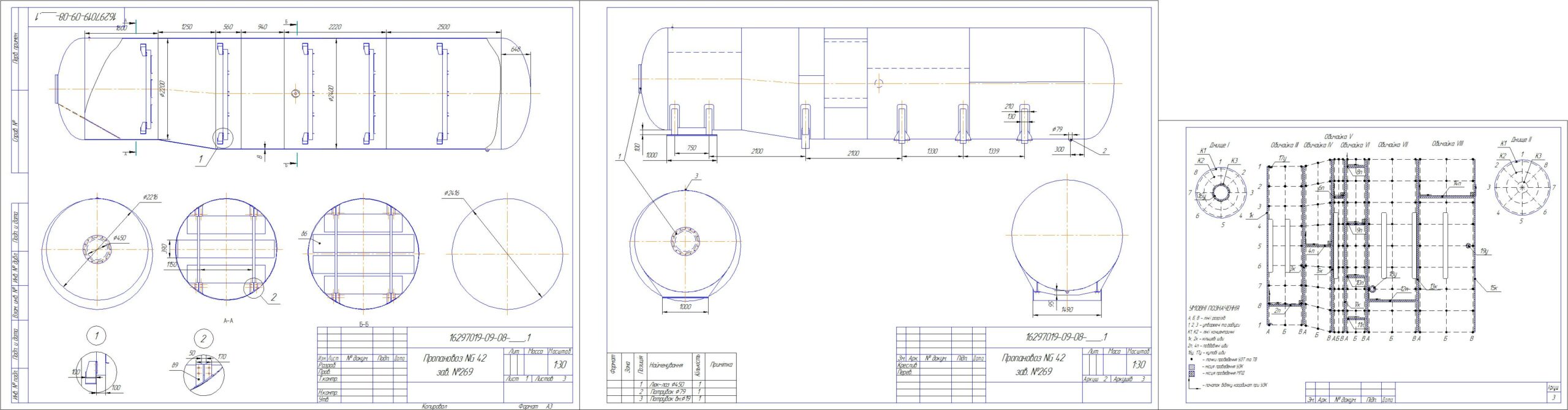
Пропановоз NG 42.
Полуприцеп-цистерны:

• объем: 42м3;
• транспортная версия;
• газораздаточная версия со счётчиком MA-7 / MicroMotion.
Полупрцеп-цистерна LPG – 42 м3 – 11 800 кг


Сообщить о проблеме
Дата
22.05.2018
Язык
Русский
Состав
Технологическая схема
Софт
КОМПАС-3D 14 Как открыть?
Отзывов пока нет
Задать вопрос
Содержимое архива
  • icon-cdw 42 м3.cdw
Чтобы скачать чертеж, 3D модель или проект, Вы должны зарегистрироваться и принять участие в жизни сайта. Посмотрите, как тут скачивать файлы
Отзывов пока нет
Чтобы оставить отзыв, необходимо войти
Войти с помощью:

Используя функцию входа через сторонние сервисы, Вы соглашаетесь на обработку персональных данных в соответствии с Политикой конфиденциальности