Перейти к содержимому
Войти

Сборочный чертеж "Кабеленаматыватель на пневмоходу"

0
0
332
6
1
30

Альметьевский государственный нефтяной институт
Кафедра нефтегазового оборудования
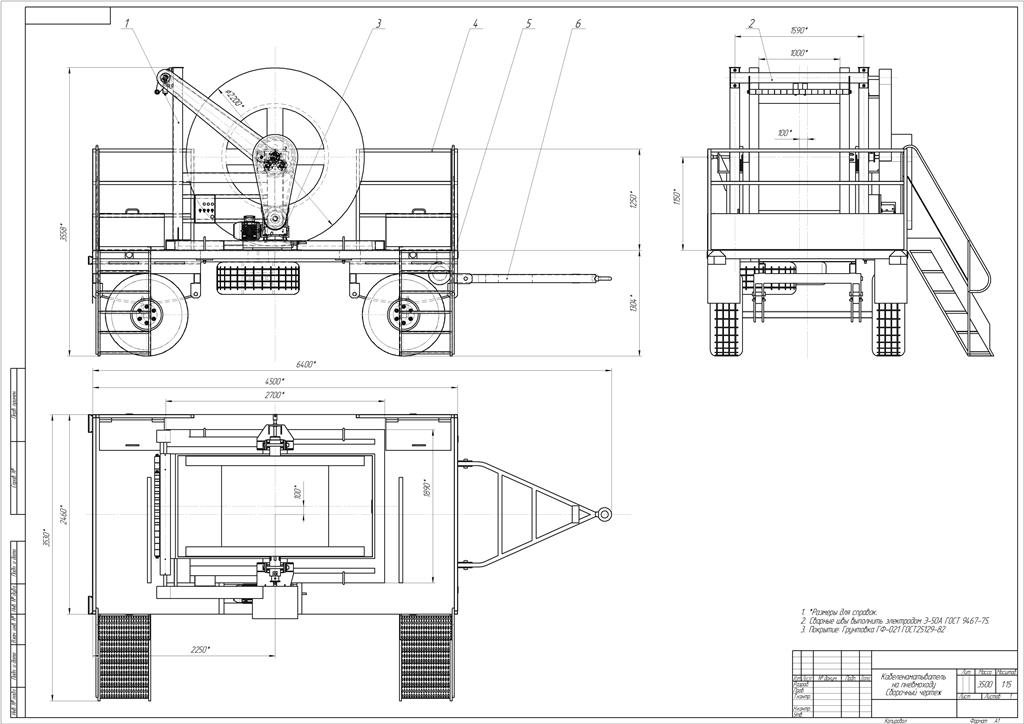
Сборочный чертеж "Кабеленаматыватель на пневмоходу"
Альметьевск 2008

Кабеленаматыватель на шасси предназначен для механизированной перемотки кабеля при проведении спуско-подъемных операций на скважинах с погружными центробежными насосами в нефтяной и газовой промышленности. Диаметр барабана кабеленаматывателя от 1700 до 2200 мм.


Сообщить о проблеме
Автор
user-avatar Alex8andr
Дата
20.03.2020
Язык
Русский
Состав
Кабеленаматыватель на пневмоходу (СБ), Спецификация
Софт
КОМПАС-3D 15 Как открыть?
Отзывов пока нет
Задать вопрос
Содержимое архива
    • icon-cdw Кабеленаматыватель на пневмоходу СБ.cdw
    • icon-spw Кабеленаматыватель на пневмоходу спецификация.spw
Чтобы скачать чертеж, 3D модель или проект, Вы должны зарегистрироваться и принять участие в жизни сайта. Посмотрите, как тут скачивать файлы
Отзывов пока нет
Чтобы оставить отзыв, необходимо войти
Войти с помощью:

Используя функцию входа через сторонние сервисы, Вы соглашаетесь на обработку персональных данных в соответствии с Политикой конфиденциальности