Перейти к содержимому
Войти

Земляные работы: рекультивация земель (р-н г. Краснодар)

0
0
71
3
0
50

МИНОБРНАУКИ РОССИИ

РГУ НЕФТИ И ГАЗА (НИУ) ИМЕНИ И.М. ГУБКИНА

Факуль-тет Проектирования, сооружения и эксплуатации систем трубо-проводного транспорта
Кафедра Сооружения и ремонта газонефтепроводов и хранилищ

КУРСОВАЯ РАБОТА

по дисциплине Сооружение газонефтепроводов и газохранилищ

на тему Земляные работы: рекультивация земель

Содержание
Введение 5
ГЛАВА 1. ОСНОВНЫЕ СВЕДЕНИЯ О ЗЕМЛЯНЫХ РАБОТАХ ПРИ СООРУЖЕНИИ МАГИСТРАЛЬНЫХ ТРУБОПРОВОДОВ 6
1.1. Цель, состав и значение земляных работ в цикле строительства МТ 6
1.2. Классификация земляных работ 8
1.3. Особенности производства земляных работ на трассе магистрального газопровода (на примере исходных данных) 10
1.4. Конструкция траншеи для магистрального газопровода: параметры и нормативные требования 13
1.5. Характеристики грунтов Краснодарского края и их влияние на технологию работ 15
1.6. Организация работ: захватки, поток, совмещение операций 17
ГЛАВА 2. МАШИНЫ, МЕХАНИЗМЫ И ЛЮДСКИЕ РЕСУРСЫ, ПРИМЕНЯЕМЫЕ ПРИ СВАРОЧНО-МОНТАЖНЫХ РАБОТАХ. 20
2.1. Основные типы землеройной техники 20
2.2. Техника для обратной засыпки и планировки 22
2.3. Транспортные средства для перемещения грунта 25
2.4. Организация труда. Состав и функции комплексной бригады 27
ГЛАВА 3. РЕКУЛЬТИВАЦИЯ ЗЕМЕЛЬ ПРИ СООРУЖЕНИИ МАГИСТРАЛЬНОГО ТРУБОПРОВОДА 31
3.1. Понятие, цели и правовые основы рекультивации 31
3.2. Два основных этапа рекультивации: технический и биологический 33
3.3. Особенности рекультивации в различных условиях трассы 37
3.4. Контроль качества рекультивационных работ 39
3.5. Экономическое и экологическое значение рекультивации 42
ГЛАВЕ 4: РАСЧЁТНАЯ ЧАСТЬ: РАСЧЁТ МАШИН И МЕХАНИЗМОВ. 45
4.1. Исходные данные для расчёта: 45
4.2. Расчёт объёмов работ. 45
4.3. Расчёт производительности и количества ведущих машин. 46
4.4. Расчёт потребности во вспомогательной технике. 48
4.5. Сводная потребность в основных машинах. 49
Заключение 51
Список использованных источников 52

 

Исходные данные для выполнения работы:
1. Транспортируемый продукт: газ
2. Рабочее давление: 7,9 МПа
3. Диаметр трубопровода: 820 мм
4. Протяженность участка: 115 км
5. Регион строительства: р-н г. Краснодар
6. Сезон строительства: всесезонное
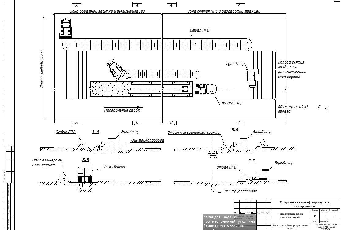
1. Технологическая схема производства работ


Сообщить о проблеме
Автор
user-avatar user-6281473
Дата
09.12.2025
Язык
Русский
Состав
Пояснительная записка Чертеж
Софт
Отзывов пока нет
Задать вопрос
Содержимое архива
  • icon-doc Курсовая работа.docx
  • icon-dwg Курсовая работа.dwg
Чтобы скачать чертеж, 3D модель или проект, Вы должны зарегистрироваться и принять участие в жизни сайта. Посмотрите, как тут скачивать файлы
Отзывов пока нет
Чтобы оставить отзыв, необходимо войти
Войти с помощью:

Используя функцию входа через сторонние сервисы, Вы соглашаетесь на обработку персональных данных в соответствии с Политикой конфиденциальности