Перейти к содержимому
Войти

Производство стеклянной ваты

0
1
28
0
0
40

Министерство науки и высшего образования РФ
Казанский государственный архитектурно-строительный университет
Кафедра технологии строительных материалов,изделий и конструкций
КУРСОВАЯ РАБОТА
По дисциплине: «Технология теплоизоляционных и акустических материалов»
На тему: «Производство стеклянной ваты»

Производство стеклянной ваты (стекловаты) применяется в качестве теплоизоляционного материала. В зависимости от сырья подразделяется на несколько видов. Соответственно размеры и вид материала могут быть различные как и в виде плит, так и в виде ковра. Размеры и описание материала берется согласно, ГОСТ 19710-2001

Содержание
Введение 3
1. Характеристика стеклянной ваты 4
2. Классификация минеральной ваты 6
3. Технология производства стеклянной ваты 10
3.1 Способы получения стекловолокна 11
4. Сырьевые материалы для производства стеклянной ваты 12
5. Основные свойства и области применения изделий из стекловолокна 16
6. Технологического оборудование 18
7. Область применения 19
8. Контроль производства минеральной ваты и изделий 22
9. Техника безопасности и охрана труда 23
Список использованной литературы 26
Графическая часть:
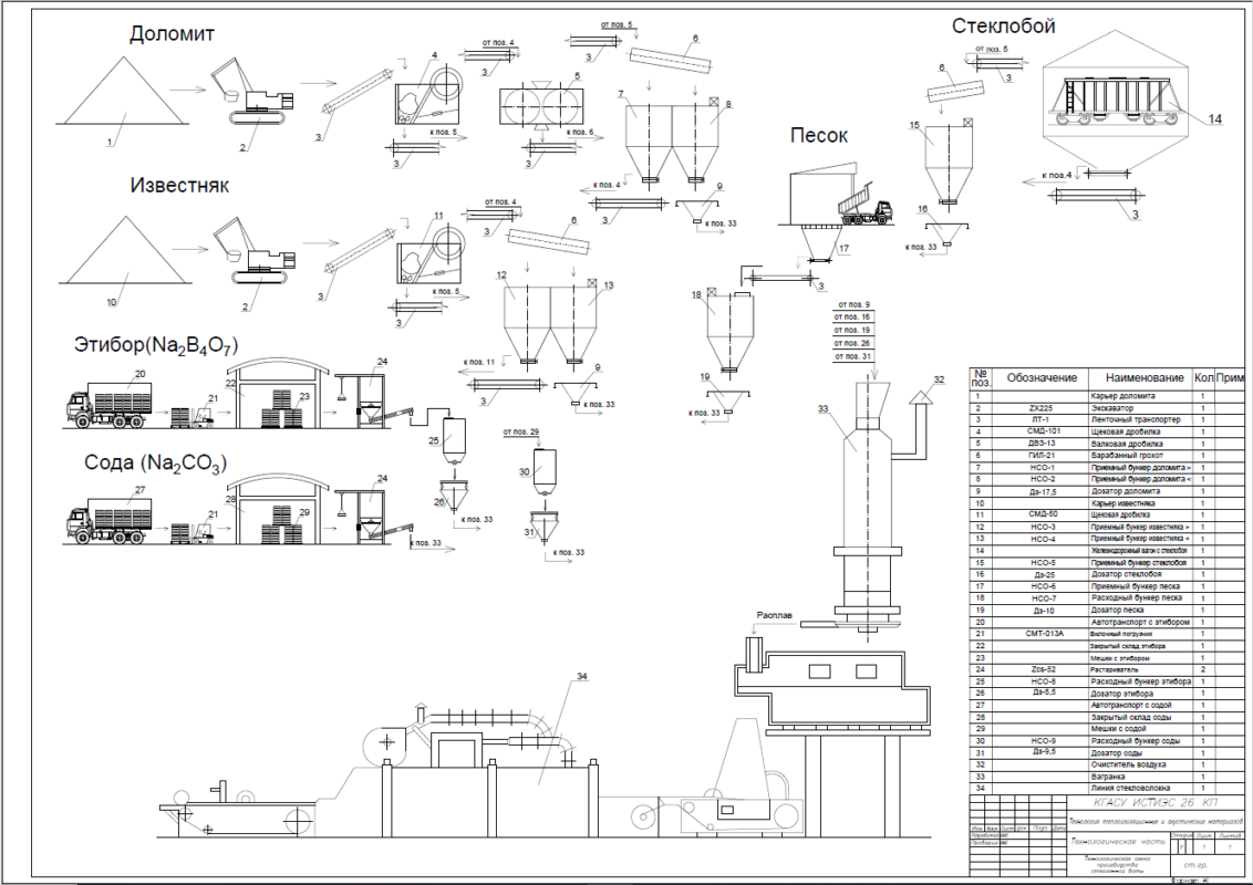
Лист 1 - Технологическая схема производства

Внимание в работе нет расчетов!


Сообщить о проблеме
Дата
11.02.2026
Язык
Русский
Состав
чертеж, ПЗ
Софт
AutoCAD 2026 Как открыть?
Отзывов пока нет
Задать вопрос
Содержимое архива
    • icon-doc Введение и далее.docx
    • icon-dwg Технологическая схема.dwg
    • icon-doc Титульник и Содержание.docx
    • icon-pdf схема.pdf
Чтобы скачать чертеж, 3D модель или проект, Вы должны зарегистрироваться и принять участие в жизни сайта. Посмотрите, как тут скачивать файлы
Отзывов пока нет
Чтобы оставить отзыв, необходимо войти
Войти с помощью:

Используя функцию входа через сторонние сервисы, Вы соглашаетесь на обработку персональных данных в соответствии с Политикой конфиденциальности