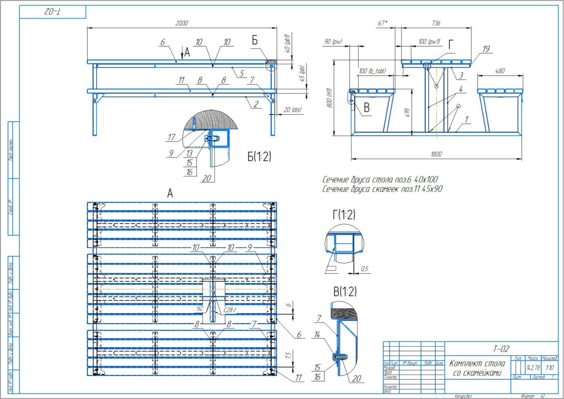
Параметрическая 3D Модель комплекта стола со скамейками.
Размеры комплекта можно менять в длину 1-2 метра, все остальные размеры можно менять в пределах разумного.
Вся работа исполнена мной, как и прошлая моя работа «Навес-пергола», в одном файле сборки. Компонентами сборки является, кроме стандартных изделий, только деталь боковины, остальные детали – это тела, и в детали они не преобразовывались. Боковина комплекта скамеек сгибается из цельной трубы. В файле «Труба боковины» имеется ассоциативная развёртка этой трубы, разумеется, параметры габаритов боковины менять нужно исходя из длины самой трубы (max 6м.). Всё остальное также, как и в прошлой моей работе «Навес-пергола».
- Главная -
- Чертежи -
- Строительство -
- Интерьер и мебель -
- Параметрическая 3D Модель комплекта стола со скамейками.
Параметрическая 3D Модель комплекта стола со скамейками.
0
3
83
0
0
200



Сообщить о проблеме
Автор
Дата
22.02.2025
Язык
Русский
Состав
Параметрические 3D Модели, чертёж общий, чертёж трубы боковины с развёрткой, чертежи развёрток листовых деталей на лазерную резку, спецификация.
Софт
КОМПАС-3D 22
Как открыть?
Отзывов пока нет
Содержимое архива
Чтобы скачать чертеж, 3D модель или проект, Вы должны зарегистрироваться
и принять участие в жизни сайта. Посмотрите, как тут скачивать
файлы
Отзывов пока нет
Чтобы задать вопрос, необходимо войти
Войти с помощью:
Ссылка на логин через google
Ссылка на логин через vk
Ссылка на логин через yandex