Перейти к содержимому
Войти

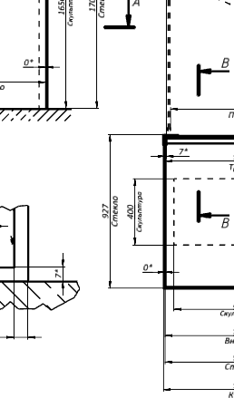
Стеклянный купол для скульптуры 927х927х1710 мм.

0
0
17
0
0
50

Стеклянный купол для скульптуры с петлями под УФ склейку. Габариты 927х927х1710 мм.


Сообщить о проблеме
Автор
user-avatar Danil Rosser
Дата
22.01.2026
Язык
Русский
Состав
Прорисовка, сборка, чертеж сборки и чертежи стекол.
Софт
Отзывов пока нет
Задать вопрос
Содержимое архива
      • icon-idw МС-23-177 (1.2).0071.idw
      • icon-iam МС-23-177 (1.2).0287.iam
        • icon-ipt SM-05050113 (1).0068.ipt
        • icon-ipt SM-05050113 (2).0040.ipt
        • icon-iam SM-05050113.0076.iam
      • icon-ipt SM-05050113 (1).ipt
      • icon-ipt SM-05050113 (2).ipt
      • icon-iam SM-05050113.iam
        • icon-iam Frame 1705924090556.iam
        • icon-ipt Skeleton 1705924090557.ipt
        • icon-ipt ГОСТ 8645-65 Труба 30x10x1,5 ГОСТ 8645-68 1705924091794.ipt
    • icon-lck lockfile.lck
    • icon-ipt POM МС-23-177 (1.2).ipt
    • icon-png Screenshot_1.png
    • icon-png Screenshot_2.png
    • icon-iam МС-23-177 (1.2).iam
    • icon-idw МС-23-177 (1.2).idw
    • icon-pdf МС-23-177 (1.2)2.pdf
    • icon-png МС-23-177 (1.bmp
    • icon-ipt Пол МС-23-177 (1.2).ipt
    • icon-xls Размерный лист.xlsm
    • icon-ipt С1.1 МС-23-177 (1.2).ipt
    • icon-ipt С1.2 МС-23-177 (1.2.ipt
    • icon-ipt С1.3МС-23-177 (1.2.ipt
    • icon-ipt С1.4 МС-23-177 (1.2.ipt
    • icon-ipt С1.5 МС-23-177 (1.2.ipt
    • icon-idw Чертежи стекла МС-23-177 (1.2).idw
    • icon-ipt Эск МС-23-177 (1.2).ipt
Чтобы скачать чертеж, 3D модель или проект, Вы должны зарегистрироваться и принять участие в жизни сайта. Посмотрите, как тут скачивать файлы
Отзывов пока нет
Чтобы оставить отзыв, необходимо войти
Войти с помощью:

Используя функцию входа через сторонние сервисы, Вы соглашаетесь на обработку персональных данных в соответствии с Политикой конфиденциальности