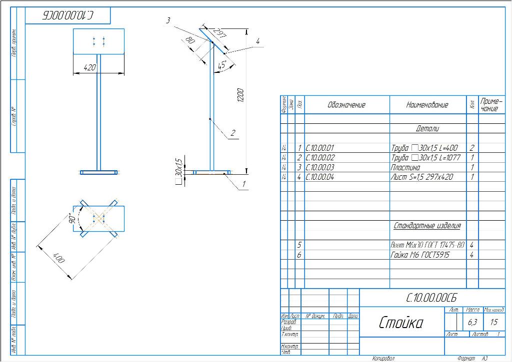
Стойка информационная А3 на болтах переносная из труб 30х30 мм
- Главная -
- Чертежи -
- Строительство -
- Интерьер и мебель -
- Стойка информационная высотой 1200 мм
Стойка информационная высотой 1200 мм
1
0
12
0
0
30


Сообщить о проблеме
Автор
Дата
13.10.2025
Язык
Русский
Состав
3D Сборка (в дереве предупреждения)
Софт
КОМПАС-3D 21
Как открыть?
Отзывов пока нет
Содержимое архива
Чтобы скачать чертеж, 3D модель или проект, Вы должны зарегистрироваться
и принять участие в жизни сайта. Посмотрите, как тут скачивать
файлы
Отзывов пока нет
Чтобы задать вопрос, необходимо войти
Войти с помощью:
Ссылка на логин через google
Ссылка на логин через vk
Ссылка на логин через yandex