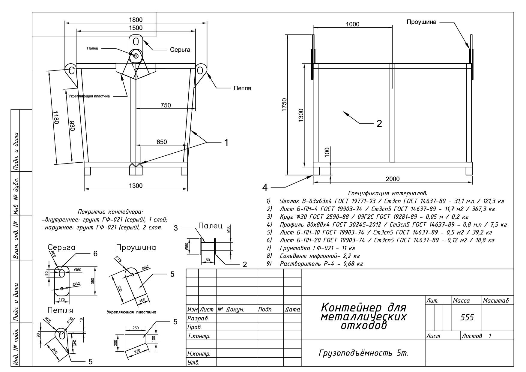
Используется для сбора и перевозки отходов металла с предприятия в спец. машины.
Предусмотрены строповочные петли для подъёма контейнера краном.
Для удобства выгрузки контейнер сделан распашным.
Грузоподъёмность контейнера 5 тн.
- Главная -
- Чертежи -
- Строительство -
- Металлоконструкции -
- Контейнер для металлоотходов распашного типа
Контейнер для металлоотходов распашного типа
0
97
3518
26
1
20

Сообщить о проблеме
Автор
Дата
27.05.2016
Язык
Русский
Состав
Сборочный чертёж (СБ), Деталировка (серьга, проушина, палец, петля, укрепляющая пластина)
Софт
AutoCAD 2013
Как открыть?
Отзывов пока нет
Содержимое архива
Чтобы скачать чертеж, 3D модель или проект, Вы должны зарегистрироваться
и принять участие в жизни сайта. Посмотрите, как тут скачивать
файлы
Задания с фриланса
Отзывов пока нет
Чтобы задать вопрос, необходимо войти
Войти с помощью:
Ссылка на логин через google
Ссылка на логин через vk
Ссылка на логин через yandex