Перейти к содержимому
Войти

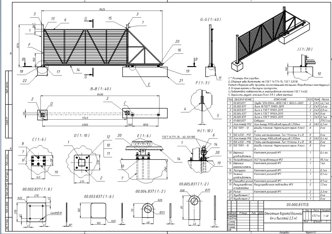
Откатные ворота 6м

0
0
34
0
0
100

Откатные ворота длинной 6м и высотой 2,5 м. Ролики указаны для наглядности.


Сообщить о проблеме
Автор
user-avatar user-9874525
Дата
15.01.2026
Язык
Русский
Состав
3д модель и чертежи деталей
Софт
Отзывов пока нет
Задать вопрос
Содержимое архива
          • icon-iam
            Frame 1766554874526.0011.iam
          • icon-iam
            Frame 1766554874526.0012.iam
          • icon-iam
            Frame 1766554874526.0013.iam
          • icon-iam
            Frame 1766554874526.0014.iam
          • icon-iam
            Frame 1766554874526.0015.iam
          • icon-ipt
            Skeleton 1766554874527.0008.ipt
          • icon-ipt
            Skeleton 1766554874527.0009.ipt
          • icon-ipt
            Skeleton 1766554874527.0010.ipt
          • icon-ipt
            Skeleton 1766554874527.0011.ipt
          • icon-ipt
            Skeleton 1766554874527.0012.ipt
        • icon-iam
          Frame 1766554874526.iam
        • icon-ipt
          Skeleton 1766554874527.ipt
        • icon-ipt
          ГОСТ 30245-2003 Труба 60x60x4 ГОСТ 30245-2003 1766554875642.ipt
        • icon-ipt
          ГОСТ 30245-2003 Труба 60x60x4 ГОСТ 30245-2003 1766554875680.ipt
        • icon-ipt
          ГОСТ 30245-2003 Труба 60x60x4 ГОСТ 30245-2003 1766554875719.ipt
        • icon-ipt
          ГОСТ 30245-2003 Труба 60x60x4 ГОСТ 30245-2003 1766554875758.ipt
        • icon-ipt
          ГОСТ 30245-2003 Труба 60x60x4 ГОСТ 30245-2003 1766554939596.ipt
        • icon-ipt
          ГОСТ 30245-2003 Труба 60x60x4 ГОСТ 30245-2003 1766554939636.ipt
        • icon-ipt
          ГОСТ 30245-2003 Труба 60x60x4 ГОСТ 30245-2003 1766554939677.ipt
        • icon-ipt
          ГОСТ 30245-2003 Труба 60x60x4 ГОСТ 30245-2003 1766554939716.ipt
        • icon-ipt
          ГОСТ 30245-2003 Труба 60x60x4 ГОСТ 30245-2003 1766554939756.ipt
        • icon-ipt
          ГОСТ 30245-2003 Труба 60x60x4 ГОСТ 30245-2003 1766554939795.ipt
        • icon-ipt
          ГОСТ 30245-2003 Труба 60x60x4 ГОСТ 30245-2003 1766554939834.ipt
        • icon-ipt
          ГОСТ 30245-2003 Труба 60x60x4 ГОСТ 30245-2003 1766554939873.ipt
        • icon-ipt
          ГОСТ 30245-2003 Труба 60x60x4 ГОСТ 30245-2003 1766554939915.ipt
        • icon-ipt
          ГОСТ 30245-2003 Труба 60x60x4 ГОСТ 30245-2003 1766554939953.ipt
        • icon-ipt
          ГОСТ 30245-2003 Труба 60x60x4 ГОСТ 30245-2003 1766557842351.ipt
          • icon-ipt
            Plate Скругленные углы (мм) 1766993707056.0001.ipt
          • icon-ipt
            Plate Скругленные углы (мм) 1766993707056.0002.ipt
          • icon-ipt
            ГОСТ 30245-2003 Труба 50x50x4 ГОСТ 30245-2003 1766572049290.0002.ipt
          • icon-ipt
            ГОСТ 30245-2003 Труба 50x50x4 ГОСТ 30245-2003 1766572049290.0003.ipt
          • icon-ipt
            ГОСТ 30245-2003 Труба 50x50x4 ГОСТ 30245-2003 1766572049290.0004.ipt
          • icon-ipt
            ГОСТ 30245-2003 Труба 50x50x4 ГОСТ 30245-2003 1766572049290.0005.ipt
          • icon-ipt
            ГОСТ 30245-2003 Труба 50x50x4 ГОСТ 30245-2003 1766572049290.0006.ipt
          • icon-ipt
            ГОСТ 30245-2003 Труба 50x50x4 ГОСТ 30245-2003 1766572049335.0001.ipt
          • icon-ipt
            ГОСТ 30245-2003 Труба 50x50x4 ГОСТ 30245-2003 1766572049335.0002.ipt
          • icon-ipt
            ГОСТ 30245-2003 Труба 50x50x4 ГОСТ 30245-2003 1766572049335.0003.ipt
          • icon-ipt
            ГОСТ 30245-2003 Труба 50x50x4 ГОСТ 30245-2003 1766572049335.0004.ipt
          • icon-ipt
            ГОСТ 30245-2003 Труба 50x50x4 ГОСТ 30245-2003 1766572049335.0005.ipt
          • icon-ipt
            ГОСТ 30245-2003 Труба 50x50x4 ГОСТ 30245-2003 1766572049380.0001.ipt
          • icon-ipt
            ГОСТ 30245-2003 Труба 50x50x4 ГОСТ 30245-2003 1766572049380.0002.ipt
          • icon-ipt
            ГОСТ 30245-2003 Труба 50x50x4 ГОСТ 30245-2003 1766572049380.0003.ipt
          • icon-ipt
            ГОСТ 30245-2003 Труба 50x50x4 ГОСТ 30245-2003 1766572049380.0004.ipt
          • icon-ipt
            ГОСТ 30245-2003 Труба 50x50x4 ГОСТ 30245-2003 1766572049380.0005.ipt
          • icon-ipt
            ГОСТ 30245-2003 Труба 50x50x4 ГОСТ 30245-2003 1766572049424.0004.ipt
          • icon-ipt
            ГОСТ 30245-2003 Труба 50x50x4 ГОСТ 30245-2003 1766572049424.0005.ipt
          • icon-ipt
            ГОСТ 30245-2003 Труба 50x50x4 ГОСТ 30245-2003 1766572049424.0006.ipt
          • icon-ipt
            ГОСТ 30245-2003 Труба 50x50x4 ГОСТ 30245-2003 1766572049424.0007.ipt
          • icon-ipt
            ГОСТ 30245-2003 Труба 50x50x4 ГОСТ 30245-2003 1766572049424.0008.ipt
          • icon-ipt
            ГОСТ 30245-2003 Труба 50x50x4 ГОСТ 30245-2003 1766572049470.0002.ipt
          • icon-ipt
            ГОСТ 30245-2003 Труба 50x50x4 ГОСТ 30245-2003 1766572049470.0003.ipt
          • icon-ipt
            ГОСТ 30245-2003 Труба 50x50x4 ГОСТ 30245-2003 1766572049470.0004.ipt
          • icon-ipt
            ГОСТ 30245-2003 Труба 50x50x4 ГОСТ 30245-2003 1766572049470.0005.ipt
          • icon-ipt
            ГОСТ 30245-2003 Труба 50x50x4 ГОСТ 30245-2003 1766572049470.0006.ipt
          • icon-ipt
            ГОСТ 30245-2003 Труба 50x50x4 ГОСТ 30245-2003 1766572049518.0004.ipt
          • icon-ipt
            ГОСТ 30245-2003 Труба 50x50x4 ГОСТ 30245-2003 1766572049518.0005.ipt
          • icon-ipt
            ГОСТ 30245-2003 Труба 50x50x4 ГОСТ 30245-2003 1766572049518.0006.ipt
          • icon-ipt
            ГОСТ 30245-2003 Труба 50x50x4 ГОСТ 30245-2003 1766572049518.0007.ipt
          • icon-ipt
            ГОСТ 30245-2003 Труба 50x50x4 ГОСТ 30245-2003 1766572049518.0008.ipt
          • icon-ipt
            ГОСТ 30245-2003 Труба 50x50x4 ГОСТ 30245-2003 1766572049562.0002.ipt
          • icon-ipt
            ГОСТ 30245-2003 Труба 50x50x4 ГОСТ 30245-2003 1766572049562.0003.ipt
          • icon-ipt
            ГОСТ 30245-2003 Труба 50x50x4 ГОСТ 30245-2003 1766572049562.0004.ipt
          • icon-ipt
            ГОСТ 30245-2003 Труба 50x50x4 ГОСТ 30245-2003 1766572049562.0005.ipt
          • icon-ipt
            ГОСТ 30245-2003 Труба 50x50x4 ГОСТ 30245-2003 1766572049562.0006.ipt
          • icon-ipt
            ГОСТ 30245-2003 Труба 50x50x4 ГОСТ 30245-2003 1766572049605.0004.ipt
          • icon-ipt
            ГОСТ 30245-2003 Труба 50x50x4 ГОСТ 30245-2003 1766572049605.0005.ipt
          • icon-ipt
            ГОСТ 30245-2003 Труба 50x50x4 ГОСТ 30245-2003 1766572049605.0006.ipt
          • icon-ipt
            ГОСТ 30245-2003 Труба 50x50x4 ГОСТ 30245-2003 1766572049605.0007.ipt
          • icon-ipt
            ГОСТ 30245-2003 Труба 50x50x4 ГОСТ 30245-2003 1766572049605.0008.ipt
          • icon-ipt
            ГОСТ 30245-2003 Труба 50x50x4 ГОСТ 30245-2003 1766572049647.0002.ipt
          • icon-ipt
            ГОСТ 30245-2003 Труба 50x50x4 ГОСТ 30245-2003 1766572049647.0003.ipt
          • icon-ipt
            ГОСТ 30245-2003 Труба 50x50x4 ГОСТ 30245-2003 1766572049647.0004.ipt
          • icon-ipt
            ГОСТ 30245-2003 Труба 50x50x4 ГОСТ 30245-2003 1766572049647.0005.ipt
          • icon-ipt
            ГОСТ 30245-2003 Труба 50x50x4 ГОСТ 30245-2003 1766572049647.0006.ipt
          • icon-ipt
            ГОСТ 30245-2003 Труба 50x50x4 ГОСТ 30245-2003 1766572049689.0005.ipt
          • icon-ipt
            ГОСТ 30245-2003 Труба 50x50x4 ГОСТ 30245-2003 1766572049689.0006.ipt
          • icon-ipt
            ГОСТ 30245-2003 Труба 50x50x4 ГОСТ 30245-2003 1766572049689.0007.ipt
          • icon-ipt
            ГОСТ 30245-2003 Труба 50x50x4 ГОСТ 30245-2003 1766572049689.0008.ipt
          • icon-ipt
            ГОСТ 30245-2003 Труба 50x50x4 ГОСТ 30245-2003 1766572049689.0009.ipt
          • icon-ipt
            ГОСТ 30245-2003 Труба 50x50x4 ГОСТ 30245-2003 1766572049733.0003.ipt
          • icon-ipt
            ГОСТ 30245-2003 Труба 50x50x4 ГОСТ 30245-2003 1766572049733.0004.ipt
          • icon-ipt
            ГОСТ 30245-2003 Труба 50x50x4 ГОСТ 30245-2003 1766572049733.0005.ipt
          • icon-ipt
            ГОСТ 30245-2003 Труба 50x50x4 ГОСТ 30245-2003 1766572049733.0006.ipt
          • icon-ipt
            ГОСТ 30245-2003 Труба 50x50x4 ГОСТ 30245-2003 1766572049733.0007.ipt
          • icon-ipt
            ГОСТ 30245-2003 Труба 50x50x4 ГОСТ 30245-2003 1766572049776.0004.ipt
          • icon-ipt
            ГОСТ 30245-2003 Труба 50x50x4 ГОСТ 30245-2003 1766572049776.0005.ipt
          • icon-ipt
            ГОСТ 30245-2003 Труба 50x50x4 ГОСТ 30245-2003 1766572049776.0006.ipt
          • icon-ipt
            ГОСТ 30245-2003 Труба 50x50x4 ГОСТ 30245-2003 1766572049776.0007.ipt
          • icon-ipt
            ГОСТ 30245-2003 Труба 50x50x4 ГОСТ 30245-2003 1766572049776.0008.ipt
          • icon-ipt
            ГОСТ 30245-2003 Труба 50x50x4 ГОСТ 30245-2003 1766572049818.0003.ipt
          • icon-ipt
            ГОСТ 30245-2003 Труба 50x50x4 ГОСТ 30245-2003 1766572049818.0004.ipt
          • icon-ipt
            ГОСТ 30245-2003 Труба 50x50x4 ГОСТ 30245-2003 1766572049818.0005.ipt
          • icon-ipt
            ГОСТ 30245-2003 Труба 50x50x4 ГОСТ 30245-2003 1766572049818.0006.ipt
          • icon-ipt
            ГОСТ 30245-2003 Труба 50x50x4 ГОСТ 30245-2003 1766572049818.0007.ipt
          • icon-ipt
            ГОСТ 30245-2003 Труба 50x50x4 ГОСТ 30245-2003 1766572049860.0005.ipt
          • icon-ipt
            ГОСТ 30245-2003 Труба 50x50x4 ГОСТ 30245-2003 1766572049860.0006.ipt
          • icon-ipt
            ГОСТ 30245-2003 Труба 50x50x4 ГОСТ 30245-2003 1766572049860.0007.ipt
          • icon-ipt
            ГОСТ 30245-2003 Труба 50x50x4 ГОСТ 30245-2003 1766572049860.0008.ipt
          • icon-ipt
            ГОСТ 30245-2003 Труба 50x50x4 ГОСТ 30245-2003 1766572049860.0009.ipt
          • icon-ipt
            ГОСТ 30245-2003 Труба 50x50x4 ГОСТ 30245-2003 1766572049904.0004.ipt
          • icon-ipt
            ГОСТ 30245-2003 Труба 50x50x4 ГОСТ 30245-2003 1766572049904.0005.ipt
          • icon-ipt
            ГОСТ 30245-2003 Труба 50x50x4 ГОСТ 30245-2003 1766572049904.0006.ipt
          • icon-ipt
            ГОСТ 30245-2003 Труба 50x50x4 ГОСТ 30245-2003 1766572049904.0007.ipt
          • icon-ipt
            ГОСТ 30245-2003 Труба 50x50x4 ГОСТ 30245-2003 1766572049904.0008.ipt
        • icon-ipt
          Plate Скругленные углы (мм) 1766993707056.ipt
        • icon-ipt
          ГОСТ 30245-2003 Труба 50x50x4 ГОСТ 30245-2003 1766572049290.ipt
        • icon-ipt
          ГОСТ 30245-2003 Труба 50x50x4 ГОСТ 30245-2003 1766572049335.ipt
        • icon-ipt
          ГОСТ 30245-2003 Труба 50x50x4 ГОСТ 30245-2003 1766572049380.ipt
        • icon-ipt
          ГОСТ 30245-2003 Труба 50x50x4 ГОСТ 30245-2003 1766572049424.ipt
        • icon-ipt
          ГОСТ 30245-2003 Труба 50x50x4 ГОСТ 30245-2003 1766572049470.ipt
        • icon-ipt
          ГОСТ 30245-2003 Труба 50x50x4 ГОСТ 30245-2003 1766572049518.ipt
        • icon-ipt
          ГОСТ 30245-2003 Труба 50x50x4 ГОСТ 30245-2003 1766572049562.ipt
        • icon-ipt
          ГОСТ 30245-2003 Труба 50x50x4 ГОСТ 30245-2003 1766572049605.ipt
        • icon-ipt
          ГОСТ 30245-2003 Труба 50x50x4 ГОСТ 30245-2003 1766572049647.ipt
        • icon-ipt
          ГОСТ 30245-2003 Труба 50x50x4 ГОСТ 30245-2003 1766572049689.ipt
        • icon-ipt
          ГОСТ 30245-2003 Труба 50x50x4 ГОСТ 30245-2003 1766572049733.ipt
        • icon-ipt
          ГОСТ 30245-2003 Труба 50x50x4 ГОСТ 30245-2003 1766572049776.ipt
        • icon-ipt
          ГОСТ 30245-2003 Труба 50x50x4 ГОСТ 30245-2003 1766572049818.ipt
        • icon-ipt
          ГОСТ 30245-2003 Труба 50x50x4 ГОСТ 30245-2003 1766572049860.ipt
        • icon-ipt
          ГОСТ 30245-2003 Труба 50x50x4 ГОСТ 30245-2003 1766572049904.ipt
          • icon-iam
            Frame 1766560116417.0003.iam
          • icon-iam
            Frame 1766560116417.0004.iam
          • icon-iam
            Frame 1766560116417.0005.iam
          • icon-iam
            Frame 1766560116417.0006.iam
          • icon-iam
            Frame 1766560116417.0007.iam
          • icon-ipt
            Plate Скругленные углы (мм) 1766560148904.0003.ipt
          • icon-ipt
            Plate Скругленные углы (мм) 1766560148904.0004.ipt
          • icon-ipt
            Plate Скругленные углы (мм) 1766560148904.0005.ipt
          • icon-ipt
            Plate Скругленные углы (мм) 1766560148904.0006.ipt
          • icon-ipt
            Plate Скругленные углы (мм) 1766560148904.0007.ipt
          • icon-ipt
            Plate Скругленные углы (мм) 1766572542761.0001.ipt
          • icon-ipt
            Plate Скругленные углы (мм) 1766572542761.0002.ipt
          • icon-ipt
            Skeleton 1766560116418.0002.ipt
          • icon-ipt
            Skeleton 1766560116418.0003.ipt
          • icon-ipt
            Skeleton 1766560116418.0004.ipt
          • icon-ipt
            Skeleton 1766560116418.0005.ipt
          • icon-ipt
            Skeleton 1766560116418.0006.ipt
          • icon-ipt
            ГОСТ 30245-2003 Труба 120x120x4 ГОСТ 30245-2003 1766560117564.0001.ipt
          • icon-ipt
            ГОСТ 30245-2003 Труба 120x120x4 ГОСТ 30245-2003 1766560117605.0001.ipt
        • icon-iam
          Frame 1766560116417.iam
        • icon-ipt
          Plate Скругленные углы (мм) 1766560148904.ipt
        • icon-ipt
          Plate Скругленные углы (мм) 1766572542761.ipt
        • icon-ipt
          Skeleton 1766560116418.ipt
        • icon-ipt
          ГОСТ 30245-2003 Труба 120x120x4 ГОСТ 30245-2003 1766560117564.ipt
        • icon-ipt
          ГОСТ 30245-2003 Труба 120x120x4 ГОСТ 30245-2003 1766560117605.ipt
      • icon-idw
        00.000.837 ТЗ.0001.idw
      • icon-idw
        00.000.837 ТЗ.0002.idw
      • icon-idw
        00.000.837 ТЗ.0003.idw
      • icon-idw
        00.000.837 ТЗ.0004.idw
      • icon-idw
        00.000.837 ТЗ.0005.idw
      • icon-iam
        00.000.837.0001.iam
      • icon-iam
        00.000.837.0002.iam
      • icon-idw
        00.000.837.0013.idw
      • icon-idw
        00.000.837.0014.idw
      • icon-idw
        00.000.837.0015.idw
      • icon-idw
        00.000.837.0016.idw
      • icon-idw
        00.000.837.0017.idw
      • icon-iam
        00.000.8375.0020.iam
      • icon-iam
        00.000.8375.0021.iam
      • icon-iam
        00.000.8375.0022.iam
      • icon-iam
        00.000.8375.0023.iam
      • icon-iam
        00.000.8375.0024.iam
      • icon-iam
        00.001.837.0019.iam
      • icon-iam
        00.001.837.0020.iam
      • icon-iam
        00.001.837.0021.iam
      • icon-iam
        00.001.837.0022.iam
      • icon-iam
        00.001.837.0023.iam
      • icon-iam
        00.002.837.0004.iam
      • icon-iam
        00.002.837.0005.iam
      • icon-iam
        00.002.837.0006.iam
      • icon-iam
        00.002.837.0007.iam
      • icon-iam
        00.002.837.0008.iam
      • icon-ipt
        ISO 7089 - 16 - 140 HV(1).0001.ipt
      • icon-ipt
        ISO 7089 - 16 - 140 HV(2).0001.ipt
      • icon-ipt
        ISO 7089 - 16 - 140 HV(3).0001.ipt
      • icon-ipt
        ISO 7089 - 16 - 140 HV(3).0002.ipt
      • icon-ipt
        Анкер 12.0001.ipt
      • icon-iam
        Верхний ограничитель.0001.iam
      • icon-iam
        Верхний ограничитель.0002.iam
      • icon-iam
        Верхний ограничитель.0003.iam
      • icon-iam
        Верхний ограничитель.0004.iam
      • icon-iam
        Верхний ограничитель.0005.iam
      • icon-ipt
        Верхний ограничитель 1.0001.ipt
      • icon-ipt
        Верхний ограничитель 2.0001.ipt
      • icon-ipt
        Верхний улавливатель.0002.ipt
      • icon-ipt
        Верхний улавливатель.0003.ipt
      • icon-ipt
        Верхний улавливатель.0004.ipt
      • icon-ipt
        Верхний улавливатель.0005.ipt
      • icon-ipt
        Верхний улавливатель.0006.ipt
      • icon-ipt
        Двутавр 25Б1 24000мм СТО АСЧМ 20-93.0001.ipt
      • icon-ipt
        Двутавр 25Б1 24000мм СТО АСЧМ 20-93.0002.ipt
      • icon-ipt
        Двутавр 25Б1 24000мм СТО АСЧМ 20-93.0003.ipt
      • icon-ipt
        Двутавр 25Б1 24000мм СТО АСЧМ 20-93.0004.ipt
      • icon-ipt
        Заглушка.0001.ipt
      • icon-ipt
        Заглушка.0002.ipt
      • icon-ipt
        Заглушка.0003.ipt
      • icon-ipt
        Замок 1.0001.ipt
      • icon-ipt
        Замок 1.0002.ipt
      • icon-ipt
        Замок 1.0003.ipt
      • icon-ipt
        Замок 1.0004.ipt
      • icon-ipt
        Замок 2.0001.ipt
      • icon-ipt
        Замок 2.0002.ipt
      • icon-ipt
        Замок 2.0003.ipt
      • icon-iam
        Концевой ролик.0002.iam
      • icon-iam
        Концевой ролик.0003.iam
      • icon-iam
        Концевой ролик.0004.iam
      • icon-iam
        Концевой ролик.0005.iam
      • icon-iam
        Концевой ролик.0006.iam
      • icon-ipt
        Концевой ролик 1.0001.ipt
      • icon-ipt
        Концевой ролик 1.0002.ipt
      • icon-ipt
        Круг 6.0001.ipt
      • icon-ipt
        Круг 6.0002.ipt
      • icon-ipt
        Круг 6.0003.ipt
      • icon-ipt
        Круг 6.0004.ipt
      • icon-ipt
        Направляющая.0003.ipt
      • icon-ipt
        Направляющая.0004.ipt
      • icon-ipt
        Направляющая.0005.ipt
      • icon-ipt
        Направляющая.0006.ipt
      • icon-ipt
        Направляющая.0007.ipt
      • icon-ipt
        Нижний улавливатель.0001.ipt
      • icon-ipt
        Нижний улавливатель.0002.ipt
      • icon-ipt
        Нижний улавливатель.0003.ipt
      • icon-ipt
        Нижний улавливатель.0004.ipt
      • icon-ipt
        Нижний улавливатель.0005.ipt
      • icon-ipt
        Профлист.0001.ipt
      • icon-ipt
        Профлист.0002.ipt
      • icon-iam
        Регулировочная подставка.0002.iam
      • icon-iam
        Регулировочная подставка.0003.iam
      • icon-iam
        Регулировочная подставка.0004.iam
      • icon-iam
        Регулировочная подставка.0005.iam
      • icon-iam
        Регулировочная подставка.0006.iam
      • icon-ipt
        Скелет 00.000.837.0001.ipt
      • icon-ipt
        Скелет 00.000.837.0002.ipt
      • icon-ipt
        Скелет 00.001.837.0007.ipt
      • icon-ipt
        Скелет 00.001.837.0008.ipt
      • icon-ipt
        Скелет 00.001.837.0009.ipt
      • icon-ipt
        Скелет 00.001.837.0010.ipt
      • icon-ipt
        Скелет 00.001.837.0011.ipt
      • icon-ipt
        Скелет 00.002.837.0001.ipt
      • icon-ipt
        Скелет 00.002.837.0002.ipt
      • icon-ipt
        Труба 60x60x4-8800 ГОСТ 30245-2003.0001.ipt
      • icon-ipt
        Труба 60x60x4-8800 ГОСТ 30245-2003.0002.ipt
      • icon-ipt
        Фундамент 1.0001.ipt
      • icon-ipt
        Фундамент 1.0002.ipt
      • icon-ipt
        Фундамент 1.0003.ipt
      • icon-ipt
        Фундамент 2.0001.ipt
      • icon-ipt
        Хим.Анкер М16.0001.ipt
      • icon-ipt
        Хим.Анкер М16.0002.ipt
      • icon-ipt
        Хим.Анкер М16.0003.ipt
      • icon-ipt
        Хим.Анкер М16.0004.ipt
      • icon-ipt
        Хим.Анкер М16.0005.ipt
      • icon-ipt
        Шпилька рег.0001.ipt
      • icon-ipt
        рег пласт.0001.ipt
      • icon-ipt
        рег пласт.0002.ipt
      • icon-ipt
        рег пласт.0003.ipt
      • icon-dxf
        ЛИСТ 4 x1 (6000x1500).dxf
      • icon-dxf
        ЛИСТ 4 x1 (6000x1500) x1 (6000x1500).dxf
      • icon-pdf
        ЛИСТ 4.pdf
      • icon-dxf
        ЛИСТ 10 x1 (6000x1500).dxf
      • icon-pdf
        ЛИСТ 10.pdf
      • icon-dxf
        Лист 4 00.003.837 2 шт.dxf
      • icon-dxf
        Лист 4 00.004.837 1 шт.dxf
      • icon-dxf
        Лист 4 00.005.837 1 шт.dxf
      • icon-dxf
        Лист 4 00.010.837 3 шт.dxf
      • icon-dxf
        Лист 10 00.002.837 2 шт.dxf
        • icon-ipt
          Деталь1.0001.ipt
        • icon-ipt
          Деталь1.0002.ipt
        • icon-ipt
          Деталь1.0003.ipt
        • icon-ipt
          Деталь1.0004.ipt
        • icon-ipt
          Деталь1.0005.ipt
        • icon-ipt
          Деталь2.0001.ipt
        • icon-ipt
          Деталь3.0001.ipt
        • icon-ipt
          Деталь3.0002.ipt
        • icon-ipt
          Деталь4.0001.ipt
        • icon-ipt
          Деталь4.0002.ipt
        • icon-iam
          Ролик.0004.iam
        • icon-iam
          Ролик.0005.iam
        • icon-iam
          Ролик.0006.iam
        • icon-iam
          Ролик.0007.iam
        • icon-iam
          Ролик.0008.iam
      • icon-ipt
        Деталь1.ipt
      • icon-ipt
        Деталь2.ipt
      • icon-ipt
        Деталь3.ipt
      • icon-ipt
        Деталь4.ipt
      • icon-iam
        Ролик.iam
    • icon-idw
      00.000.837.idw
    • icon-iam
      00.000.8375.iam
    • icon-iam
      00.001.837.iam
    • icon-iam
      00.002.837.iam
    • icon-ipt
      DIN EN ISO 4032 - M16.ipt
    • icon-ipt
      ISO 7089 - 16 - 140 HV(1).ipt
    • icon-ipt
      ISO 7089 - 16 - 140 HV(2).ipt
    • icon-ipt
      ISO 7089 - 16 - 140 HV(3).ipt
    • icon-ipt
      Анкер 12.ipt
    • icon-iam
      Верхний ограничитель.iam
    • icon-ipt
      Верхний ограничитель 1.ipt
    • icon-ipt
      Верхний ограничитель 2.ipt
    • icon-ipt
      Верхний улавливатель.ipt
    • icon-ipt
      Двутавр 25Б1 24000мм СТО АСЧМ 20-93.ipt
    • icon-ipt
      Заглушка.ipt
    • icon-ipt
      Замок 1.ipt
    • icon-ipt
      Замок 2.ipt
    • icon-iam
      Концевой ролик.iam
    • icon-ipt
      Концевой ролик 1.ipt
    • icon-ipt
      Круг 6.ipt
    • icon-ipt
      Направляющая.ipt
    • icon-ipt
      Нижний улавливатель.ipt
    • icon-ipt
      Профлист.ipt
    • icon-ipt
      Профлист 2.ipt
    • icon-ipt
      Профлист 3.ipt
    • icon-iam
      Регулировочная подставка.iam
    • icon-ipt
      Скелет 00.001.837.ipt
    • icon-ipt
      Скелет 00.002.837.ipt
    • icon-ipt
      Труба 50x50x4-8800 ГОСТ 30245-2003.ipt
    • icon-ipt
      Труба 60x60x4-8800 ГОСТ 30245-2003.ipt
    • icon-ipt
      Фундамент 1.ipt
    • icon-ipt
      Фундамент 2.ipt
    • icon-ipt
      Хим.Анкер М16.ipt
    • icon-ipt
      Шпилька рег.ipt
    • icon-ipt
      рег пласт.ipt
Чтобы скачать чертеж, 3D модель или проект, Вы должны зарегистрироваться и принять участие в жизни сайта. Посмотрите, как тут скачивать файлы
Отзывов пока нет
Чтобы оставить отзыв, необходимо войти
Войти с помощью:

Используя функцию входа через сторонние сервисы, Вы соглашаетесь на обработку персональных данных в соответствии с Политикой конфиденциальности