Перейти к содержимому
Войти

Разборная площадка обслуживания

0
3
172
0
0
100

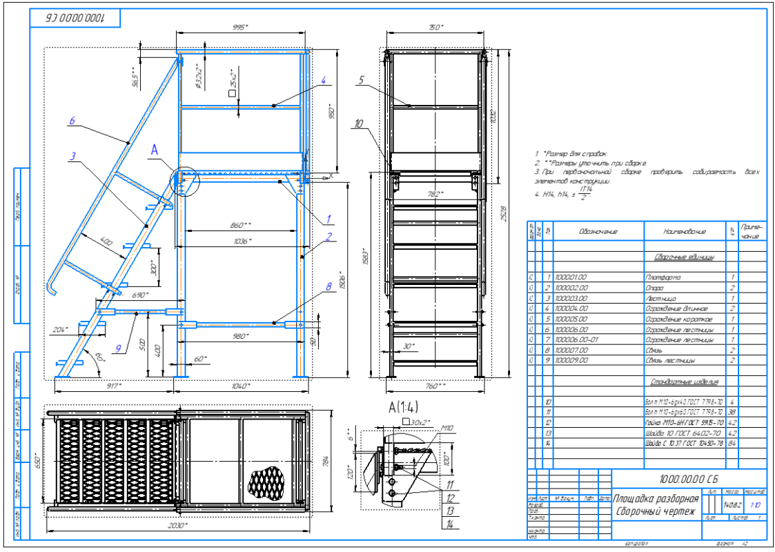
Площадка разборная с платформой 1000х700 мм, высотой 1580 мм. Габариты ДхШхВ - 2030х800х2530. Общая масса конструкции - 140 кг. Основной профиль рамы - 60х30х3. Настил - ПВЛ 506. Может использоваться в качестве временной быстровозводимой площадки обслуживания в труднодоступных местах.


Сообщить о проблеме
Автор
user-avatar Roxhad
Дата
20.02.2026
Язык
Русский
Состав
3D модель, СБ, деталировка
Софт
КОМПАС-3D 18.1 Как открыть?
Отзывов пока нет
Задать вопрос
Содержимое архива
  • icon-cdw 1000.00.00 СБ Площадка разборная.cdw
  • icon-a3d 1000.00.00 ЭСБ Площадка разборная.a3d
  • icon-step 1000.00.00 ЭСБ Площадка разборная.stp
  • icon-cdw 1000.01.00 СБ Платформа.cdw
  • icon-a3d 1000.01.00 ЭСБ Платформа.a3d
  • icon-m3d 1000.01.01 МД Продольная балка.m3d
  • icon-m3d 1000.01.02 МД Поперечная балка.m3d
  • icon-cdw 1000.01.03 Крепление наружное.cdw
  • icon-m3d 1000.01.03 МД Крепление наружное.m3d
  • icon-cdw 1000.01.04 Крепление внутреннее.cdw
  • icon-m3d 1000.01.04 МД Крепление внутреннее.m3d
  • icon-m3d 1000.01.05 МД Держатель.m3d
  • icon-m3d 1000.01.06 МД Пластина.m3d
  • icon-m3d 1000.01.07 МД Настил платформы.m3d
  • icon-m3d 1000.01.08 МД Ограничитель.m3d
  • icon-cdw 1000.02.00 СБ Опора.cdw
  • icon-a3d 1000.02.00 ЭСБ Опора.a3d
  • icon-m3d 1000.02.01 МД Стойка.m3d
  • icon-m3d 1000.02.02 МД Перекладина.m3d
  • icon-m3d 1000.02.03 МД Пластина опорная.m3d
  • icon-cdw 1000.03.00 СБ Лестница.cdw
  • icon-a3d 1000.03.00 ЭСБ Лестница.a3d
  • icon-a3d 1000.03.00 ЭСБ Лестница.a3d.bak.a3d
  • icon-m3d 1000.03.01 МД Тетива.m3d
  • icon-cdw 1000.03.01 Тетива.cdw
  • icon-m3d 1000.03.02 МД Пластина.m3d
  • icon-m3d 1000.03.03 МД Держатель.m3d
  • icon-cdw 1000.04.00 СБ Ограждение длинное.cdw
  • icon-a3d 1000.04.00 ЭСБ Ограждение длинное.a3d
  • icon-m3d 1000.04.01 МД Стойка.m3d
  • icon-m3d 1000.04.02 МД Поручень.m3d
  • icon-m3d 1000.04.03 МД Промежуточный поручень.m3d
  • icon-m3d 1000.04.04 МД Бортовой элемент.m3d
  • icon-cdw 1000.05.00 СБ Ограждение короткое.cdw
  • icon-a3d 1000.05.00 ЭСБ Ограждение короткое.a3d
  • icon-m3d 1000.05.01 МД Стойка.m3d
  • icon-m3d 1000.05.02 МД Поручень.m3d
  • icon-m3d 1000.05.03 МД Промежуточный поручень.m3d
  • icon-m3d 1000.05.04 МД Бортовой элемент.m3d
  • icon-cdw 1000.06.00 СБ Ограждение лестницы.cdw
  • icon-a3d 1000.06.00 ЭСБ Ограждение лестницы.a3d
  • icon-m3d 1000.06.01 МД Стойка.m3d
  • icon-m3d 1000.06.02 МД Поручень.m3d
  • icon-cdw 1000.06.02 Поручень.cdw
  • icon-m3d 1000.06.03 МД Крепление.m3d
  • icon-cdw 1000.07.00 СБ Связь.cdw
  • icon-a3d 1000.07.00 ЭСБ Связь.a3d
  • icon-m3d 1000.07.01 МД Балка.m3d
  • icon-m3d 1000.07.02 МД Пластина.m3d
  • icon-cdw 1000.08.00 СБ Ступень.cdw
  • icon-a3d 1000.08.00 ЭСБ Ступень.a3d
  • icon-m3d 1000.08.01 МД Уголок боковой.m3d
  • icon-m3d 1000.08.02 МД Уголок задний.m3d
  • icon-m3d 1000.08.03 МД Уголок передний.m3d
  • icon-m3d 1000.08.04 МД Настил ступени.m3d
  • icon-cdw 1000.09.00 СБ Связь лестницы.cdw
  • icon-a3d 1000.09.00 ЭСБ Связь лестницы.a3d
  • icon-m3d 1000.09.01 МД Балка.m3d
  • icon-m3d 1000.09.02 МД Пластина.m3d
  • icon-a3d пв506 К11.a3d
  • icon-m3d пв506(1) в11.m3d
  • icon-m3d пв506(2) в11.m3d
Чтобы скачать чертеж, 3D модель или проект, Вы должны зарегистрироваться и принять участие в жизни сайта. Посмотрите, как тут скачивать файлы
Отзывов пока нет
Чтобы оставить отзыв, необходимо войти
Войти с помощью:

Используя функцию входа через сторонние сервисы, Вы соглашаетесь на обработку персональных данных в соответствии с Политикой конфиденциальности