Перейти к содержимому
Войти

Роликовая опора для подвесных ворот с приварным кронштейном

0
2
22
0
0
150

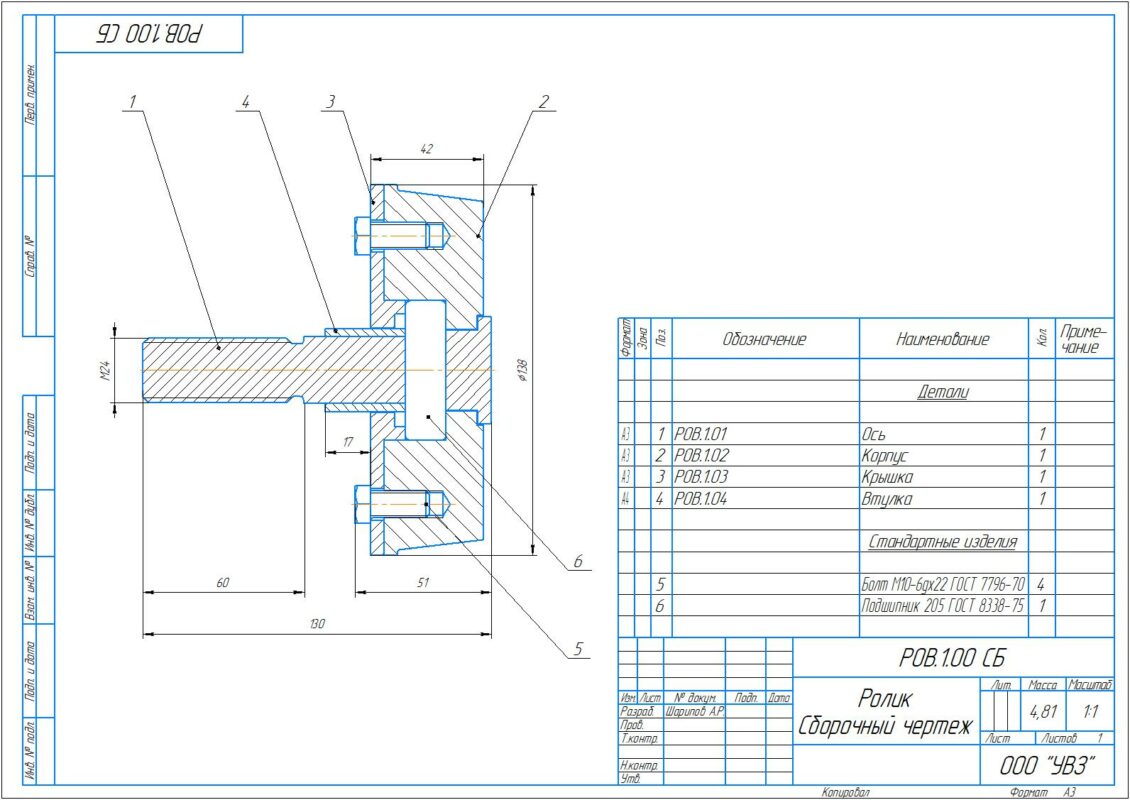
Роликовая опора для подвесных ворот металлический, используется для тяжёлых металлических ворот, например при въезде на территорию предприятия. Ходят по двутавру с обеих сторон. На одни ворота необходимы 4 шт. Так же имеются дополнительные ролики (только модель) для упора в стенку двутавра. Имеются все сборочные чертежи и чертежи для токарных работ и файлы для резки металла на ЧПУ станке. Использовалась для ремонта существующих ворот.


Сообщить о проблеме
Дата
11.11.2025
Язык
Русский
Состав
3D Сборка
Софт
КОМПАС-3D 20 Как открыть?
Отзывов пока нет
Задать вопрос
Содержимое архива
        • icon-frw
          КРОВ.frw
        • icon-dxf
          Косынка_8мм_4шт.dxf
        • icon-frw
          Косынка_8мм_4шт.frw
        • icon-dxf
          Кронштейн дополнительный_4мм_1шт.dxf
        • icon-dxf
          Перемычка_8мм_2шт.dxf
        • icon-frw
          Перемычка_8мм_2шт.frw
        • icon-dxf
          Плита_8мм_1шт.dxf
        • icon-frw
          Плита_8мм_1шт.frw
        • icon-dxf
          Связь_8мм_2шт.dxf
        • icon-frw
          Связь_8мм_2шт.frw
        • icon-dxf
          Щека_8мм_2шт.dxf
        • icon-frw
          Щека_8мм_2шт.frw
      • icon-cdw
        Кронштейн роликов _ КРОВ.2.00 СБ.cdw
      • icon-a3d
        Кронштейн роликов _ КРОВ.2.00.a3d
      • icon-cdw
        Втулка _ РОВ.1.04.cdw
      • icon-m3d
        Втулка _ РОВ.1.04.m3d
      • icon-cdw
        Корпус _ РОВ.1.01.cdw
      • icon-m3d
        Корпус _ РОВ.1.02.m3d
      • icon-cdw
        Крышка _ РОВ.1.03.cdw
      • icon-m3d
        Крышка _ РОВ.1.03.m3d
      • icon-cdw
        Ось _ РОВ.1.01.cdw
      • icon-m3d
        Ось _ РОВ.1.01.m3d
      • icon-a3d
        Ролик _ РОВ.1.00.a3d
      • icon-cdw
        Ролик Сборочный чертеж _ РОВ.1.00 СБ.cdw
      • icon-jpg
        Ролик Сборочный чертеж _ РОВ.1.00 СБ.jpg
    • icon-txt
      desktop.ini
    • icon-a3d
      Кронштейн дополнительный _ РОВ.2.00.a3d
    • icon-a3d
      Опора роликовая _ ОРОВ.00.00.a3d
    • icon-jpg
      Опора роликовая _ ОРОВ.00.00.jpg
    • icon-step
      Опора роликовая _ ОРОВ.00.00.stp
    • icon-a3d
      Ролик дополнительный _ ОРОВ.03.00.a3d
Чтобы скачать чертеж, 3D модель или проект, Вы должны зарегистрироваться и принять участие в жизни сайта. Посмотрите, как тут скачивать файлы
Отзывов пока нет
Чтобы оставить отзыв, необходимо войти
Войти с помощью:

Используя функцию входа через сторонние сервисы, Вы соглашаетесь на обработку персональных данных в соответствии с Политикой конфиденциальности