Перейти к содержимому
Войти

Усиление конструкций рабочей площадки производственного здания с помощью современных программных комплексов

0
0
143
0
0
40

Киевский национальный университет строительства и архитектуры
Кафедра Металлических и деревянных конструкций
Курсовой проект по дисциплине"Обследование и усиление конструкций"
На тему:"Підсилення конструкцій робочої площадки виробничої будівлі за допомогою сучасних програмних комплексів"
Киев 2020

Исходные данные
Усилить стальную балку настила длиной 4,5 м с двутавра №22 на 25% путем увеличения сечения. Предварительно было отобрано 12 стальных образцов, при испытании которых получены следующие значения предела текучести стали: Ryni = 228; 231; 226; 235; 227; 230; 233; 229; 227; 234; 222 МПа. Для упрощения расчетов, соотношение между границами текучести и временного сопротивления стали разрешается принять на уровне: Run0 = 1.45 Ryn0.
Год постройки здания: 1965 Среда эксплуатации среднеагрессивной. Класс последствий (ответственности) здания - СС2.
содержание

Зміст

1. Розрахунок балки настилу Б-1 2
1.1. Вихідні дані 2
1.2. Визначення розрахункового опору сталі. 2
1.4. Визначення фактичної несучої здатності. 3
1.5. Визначення необхідної несучої здатності. 3
1.6. Визначення довжини елементів підсилення. 6
1.7. Розрахунок зварних швів. 7
1.8. Перевірка міцності i жорсткості підсиленої балки. 8
2. Розрахунок балки настилу Б-2 12
2.1. Вихідні дані 12
2.2. Визначення розрахункового опору сталі. 12
2.3. Визначення фактичної несучої здатності. 13
2.4. Визначення необхідної несучої здатності. 13
2.5. Визначення довжини елементів підсилення. 16
2.6. Розрахунок зварних швів. 16
2.7. Перевірка міцності i жорсткості підсиленої балки. 18
3. Список використаної літератури: 22


Сообщить о проблеме
Автор
user-avatar Yurrys
Дата
15.10.2020
Язык
Украинский
Состав
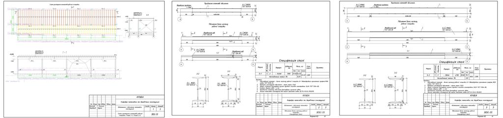
Балка Б-1, Спецификация, Разрезы, Схема "Присоединения элементов усиления", Балка Б-2, Спецификация, Разрезы, Схема "Присоединения элементов усиления", ПЗ
Софт
AutoCAD 2013 Как открыть?
Отзывов пока нет
Задать вопрос
Содержимое архива
  • icon-doc Курсовая работа ПЗ.docx
  • icon-dwg Риський.dwg
Чтобы скачать чертеж, 3D модель или проект, Вы должны зарегистрироваться и принять участие в жизни сайта. Посмотрите, как тут скачивать файлы
Отзывов пока нет
Чтобы оставить отзыв, необходимо войти
Войти с помощью:

Используя функцию входа через сторонние сервисы, Вы соглашаетесь на обработку персональных данных в соответствии с Политикой конфиденциальности