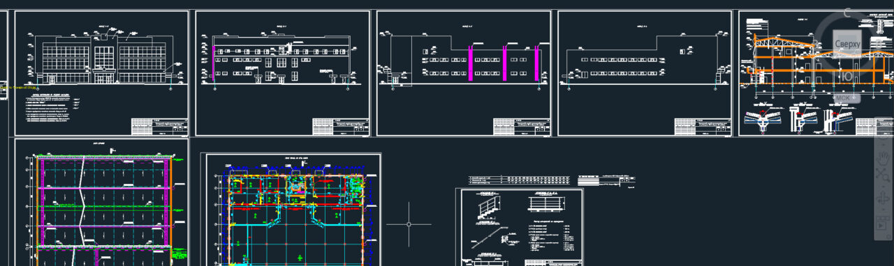
Торгово-офисное здание площадью 3000,0 кв.м. Архитектурные решения стадии "РП". Этажность переменная - 2, 3 этажа. Конструктивная схема - каркасная. Заполнение - пенобетонный блок толщ. 200 мм. Покрытие - металлические фермы. Перегородки - гипсокартонные.
- Главная -
- Чертежи -
- Строительство -
- Проект торгово-офисного здания
Проект торгово-офисного здания
0
90
2462
11
0
50

Сообщить о проблеме
Автор
Дата
22.05.2016
Язык
Русский
Состав
Архитектурные решения (АР). Общие данные. Фасады. Планы. Разрезы. Ведомости полов и отделки. Ведомости заполнения дверных и оконных проемов. Ведомости перегородок.
Софт
AutoCAD 2009
Как открыть?
Отзывов пока нет
Содержимое архива
Чтобы скачать чертеж, 3D модель или проект, Вы должны зарегистрироваться
и принять участие в жизни сайта. Посмотрите, как тут скачивать
файлы
Вопросы по теме
Отзывов пока нет
Чтобы задать вопрос, необходимо войти
Войти с помощью:
Ссылка на логин через google
Ссылка на логин через vk
Ссылка на логин через yandex