Перейти к содержимому
Войти

Проектирование несущих конструкций многоэтажного каркасного здания

1
2
49
0
0
70

НИУ МГСУ ИДО
Кафедра: Железобетонных и каменных конструкций
курсовой проект по дисциплине «Железобетонные и каменные конструкции»
на тему: Проектирование несущих конструкций многоэтажного каркасного здания

Москва 2024

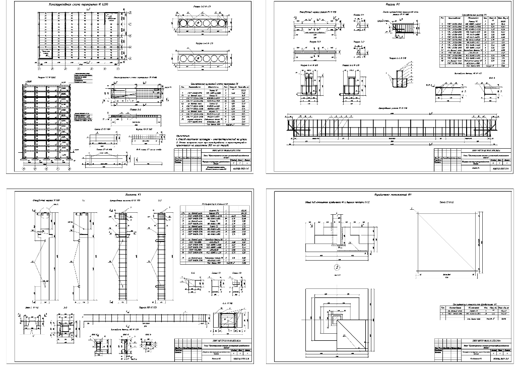
строчка 25 тип пола 1. Размер здания 21,2х30,6 м; кол-во этажей - 12; высота этажей надземного – 3,0 м, подземного – 4,2 м; расстояние от пола 1-го этажа до планировочной отметки – 0,6 м; тип грунта - песок, условное расчетное давление грунта - 0,30 МПа; район строительства г. Волгоград; полное значение временной нагрузки на перекрытие – 3,5 кПа; длительная часть временной нагрузки на перекрытие – 1,225 кПа.

Содержание

1 Компоновка конструктивной схемы сборного перекрытия 4
2 Расчет и конструирование железобетонной многопустотной предварительно напряженной плиты перекрытия 7
2.1 Исходные данные 7
2.2 Расчет плиты по предельным состояниям первой группы 8
2.3 Расчет плиты по предельным состояниям второй группы 14
3 Расчет и конструирование однопролетного ригеля 21
3.1 Исходные данные 21
3.2 Определение усилий в ригеле 23
3.3 Расчет ригеля по прочности нормальных сечений при действии изгибающего момента 23
3.4 Расчёт ригеля по прочности при действии поперечных сил 25
3.5 Построение эпюры материалов 32
4 Расчет и конструирование колонны 37
4.1 Исходные данные 37
4.2 Определение усилий в колонне 38
4.3 Расчет колонны по прочности 40
5 Расчет и конструирование фундамента под колонну 42
5.1 Исходные данные 42
5.2 Определение размера стороны подошвы фундамента 42
5.3 Определение высоты фундамента 42
5.4 Расчет на продавливание 44
5.5 Определение площади арматуры подошвы фундамента 47
БИБЛИОГРАФИЧЕСКИЙ СПИСОК


Сообщить о проблеме
Дата
04.12.2025
Язык
Русский
Состав
чертежи, ПЗ
Софт
AutoCAD 2010 Как открыть?
Отзывов пока нет
Задать вопрос
Содержимое архива
  • icon-doc ПЗ.docx
  • icon-dwg Чертежи.dwg
Чтобы скачать чертеж, 3D модель или проект, Вы должны зарегистрироваться и принять участие в жизни сайта. Посмотрите, как тут скачивать файлы
Отзывов пока нет
Чтобы оставить отзыв, необходимо войти
Войти с помощью:

Используя функцию входа через сторонние сервисы, Вы соглашаетесь на обработку персональных данных в соответствии с Политикой конфиденциальности