Перейти к содержимому
Войти

Курсовой проект на тему: "Проект жилого дома с эркером в п.Федотовка".

1
1
135
3
0
50

Новороссийский колледж строительства и экономики.
08.02.01 - Строительство и эксплуатация зданий и сооружений.
Курсовой проект по дисциплине МДК 0101.
На тему: "Проект жилого дома с эркером в п.Федотовка".

Проект жилого дома с эркером в п.Федотовка.
Участок под строительство расположен в городе Новороссийске поселок Федотовка.
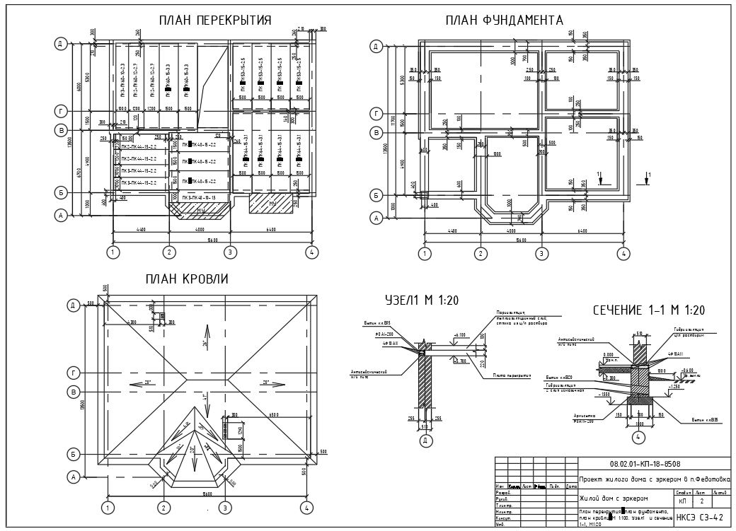
Здание – двухэтажное размером в плане в осях 13,5×15,6 м, имеет один вход. Высота этажа 2,7 м, общая высота здания – десять метров.
Здание кирпичное бескаркасное с продольными и с поперечными несущими стенами.
Фундаменты ленточные монолитные.
Наружные несущие стены толщиной 510 мм.
Внутренние несущие стены толщиной 380 мм.
Перегородки толщиной 120 мм.
Лестница деревянная с одной лестничной площадкой.
Перекрытия из сборных железобетонных плит.
Крыша двускатная стропильная с покрытием из металлочерепицы.

Содержание

Техническое задание на курсовой проект 2
Введение 4
1 Характеристика района строительства 6
2 Генеральный план с благоустройством 9
2.1 Экспликация генплана 10
2.2 ТЭП генплана 10
3 Объемно-планировочное решение 11
3.1 Экспликация помещений 11
3.2 Технико-экономические показатели 12
4 Конструктивное решение 13
4.1 Теплотехнический расчет ограждающей конструкции 15
4.2 Спецификации оконных и дверных заполнений 17
4.3 Спецификация железобетонных элементов 17
4.4 Экспликация полов 18
4.5 Ведомость отделки помещений 19
5 Расчет конструкции 20
6 Антисейсмические мероприятия 41
7 Экология строительства 43
Заключение 44
Список используемых источников 45
Ведомость чертежей 46


Сообщить о проблеме
Дата
08.12.2025
Язык
Русский
Состав
Фасад 1-4, разрез 1-1, план первого и второго этажа, М 1:100. Генплан М 1:200 План перекрытия, план фундамента, план кровли, М:100. Узел1 и сечение 1-1, М1:20 Расчет плиты перекрытия, ПЗ
Софт
AutoCAD 2023 Как открыть?
Отзывов пока нет
Задать вопрос
Содержимое архива
  • icon-dwg КУРСОВИКПроект жилого дома с эркером.dwg
  • icon-doc ПЗнаКПнаКУРСОВИК.docx
Чтобы скачать чертеж, 3D модель или проект, Вы должны зарегистрироваться и принять участие в жизни сайта. Посмотрите, как тут скачивать файлы
Отзывов пока нет
Чтобы оставить отзыв, необходимо войти
Войти с помощью:

Используя функцию входа через сторонние сервисы, Вы соглашаетесь на обработку персональных данных в соответствии с Политикой конфиденциальности