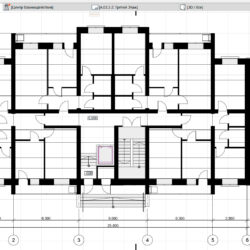
3D модель 9-ти этижного многоквартирного жилого дома Липецк 2017 год
- Главная -
- Чертежи -
- Строительство -
- Проекты домов -
- Многоэтажные жилые дома -
- Девятиэтажный жилой дом в ArchiCAD
Девятиэтажный жилой дом в ArchiCAD
1
18
6754
34
0
20

Сообщить о проблеме
Автор
Дата
13.11.2017
Язык
Русский
Состав
3D модель
Софт
ArchiCAD 12
Отзывов пока нет
Содержимое архива
Чтобы скачать чертеж, 3D модель или проект, Вы должны зарегистрироваться
и принять участие в жизни сайта. Посмотрите, как тут скачивать
файлы
Отзывов пока нет
Чтобы задать вопрос, необходимо войти
Войти с помощью:
Ссылка на логин через google
Ссылка на логин через vk
Ссылка на логин через yandex