Перейти к содержимому
Войти

Ремонт и утилизация подъемно-транспортных, строительных, дорожных средств и оборудования.

0
128
1454
8
0
40

«Ростовский государственный университет путей сообщения»
(РГУПС)
Кафедра «Эксплуатация и ремонт машин»

ПЛАНИРОВАНИЕ, ОРГАНИЗАЦИЯ ТЕХНИЧЕСКОГО ОБСЛУЖИВАНИЯ И РЕМОНТА ПОДЪЕМНО-ТРАНСПОРТНЫХ И СТРОИТЕЛЬНЫХ МАШИН.
к курсовому проекту по дисциплине
«Ремонт и утилизация подъемно-транспортных, строительных, дорожных средств и оборудования»
2015

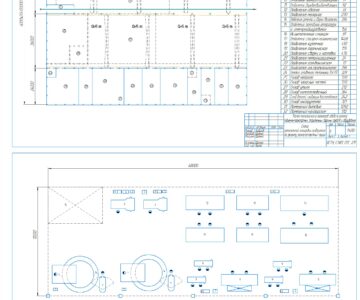
В ходе выполнения курсового проекта мною был спроектирован производственный корпус авторемонтного предприятия и агрегатный участок. Подобрано необходимое оборудование для корректного выполнения технологических процессов работ по обслуживанию и ремонту агрегатов автомобилей. Произведен расчет объемов ТО и ТР автомобилей и объем работ на участках.
КАМАЗ 5410
ЗИЛ-431410


Сообщить о проблеме
Дата
18.01.2016
Язык
Русский
Состав
Пояснительная записка, Чертеж автотранспортного предприятия и экспликация.
Софт
КОМПАС-3D 16 Как открыть?
Отзывов пока нет
Задать вопрос
Содержимое архива
  • icon-doc 1.docx
  • icon-cdw Чертеж .cdw
Чтобы скачать чертеж, 3D модель или проект, Вы должны зарегистрироваться и принять участие в жизни сайта. Посмотрите, как тут скачивать файлы
Отзывов пока нет
Чтобы оставить отзыв, необходимо войти
Войти с помощью:

Используя функцию входа через сторонние сервисы, Вы соглашаетесь на обработку персональных данных в соответствии с Политикой конфиденциальности