Перейти к содержимому
Войти

АР раздел 3 этажного бизнес центра

2
3
338
6
0
50

Все разделы АР 3 этажного бизнес центра проект после экспертизы, формат DWG

Общие указания
Основание для проектирования:

- Задание на проектирование от 29.08.2022 г.
- Архитектурно-планировочное задание АПЗ №KZ000000 от 00.00.2024 г.
Климатический район строительства -III-В (СП РК 2.04-01-2017)
Расчетная зимняя температура наружного воздуха - (-20.1)°С (СП РК 2.04-01-2017)
Снеговой район -II, снеговая нагрузка -1.2 кПа (НТП РК 01-01-3.1 (4.1)-2017)
Ветровой район - II, давление ветра - 0,39 кПа (НТП РК 01-01-3.1 (4.1)-2017)
Сейсмичность - 9 (девять) баллов (согласно СП РК 2.03-30-2017, Приложение Б, г. Алматы);
Уровень ответственности здания - II (нормальный), технологически не сложный
Степень огнестойкости здания - II (СП РК 2.02-101-2014)
Класс конструктивной пожарной опасности - С0
Класс функциональной пожарной опасности здания - центр обслуживания населения - Ф3.1; офисные помещения - Ф4.3;
пространство паркинга - Ф5.2
Рабочие чертежи разработаны в соответствии с действующими нормами и стандартами
Республики Казахстан:
СП РК 2.02-101-2014 "Пожарная безопасность зданий с сооружений",
СП РК 3.02-107-2014 "Общественные здания и сооружения" (с изменениями дополнениями по состоянию на 24.10.2023 г.);
СП РК 3.06-101-2012 «Проектирование зданий и сооружений с учетом доступности для маломобильных групп населения. Общие положения» (с изменениями и дополнениями по состоянию на 27.11.2019 г.)
СП РК 2.03-30-2017 «Строительство в сейсмических зонах» (с изменениями и дополнениями по состоянию на 08.04.2024 г.);
Альбом II «Ненесущие стены из газобетонных блоков в каркасных зданиях» (утвержден приказом Председателя Комитета по делам строительства и жилищно-коммунального хозяйства Министерства индустрии и торговли Республики Казахстан от 5 июля 2005 года № 193);
Альбом IV «Ненесущие и самонесущие стены из пустотелых бетонных камней» (утвержден приказом Председателя Комитета по делам строительства и жилищно-коммунального хозяйства Министерства индустрии и торговли Республики Казахстан от 5 июля 2005 года № 193);
СП РК 3.02-136-2012 «Полы»;
СП РК 3.02-137-2013 «Крыши и кровли» (с изменениями и дополнениями по состоянию на 19.06.2024 г.);
СП РК 2.01-101-2013 «Защита строительных конструкций от коррозии» (с изменениями от 01.08.2018 г.)
СП РК 3.01-01-2013 "Градостроительство. Планировка и застройка городов и сельских населенных пунктов",
РДС РК 3.01-05-2001 "Градостроительство. Планировка и застройка населенных мест с учетом потребностей инвалидов и других маломобильных групп"
МСН 2.02-05-2000 "Стоянки автомобилей"
СП РК 2.04-01-2017 "Строительная климатология" (с изменениями от 01.04.2019 г.);
Технический регламент "Общие требование к пожарной безопасности".
Специальные технические условия отражающие специфику противопожарной защиты объекта
Объемно-планировочное решение
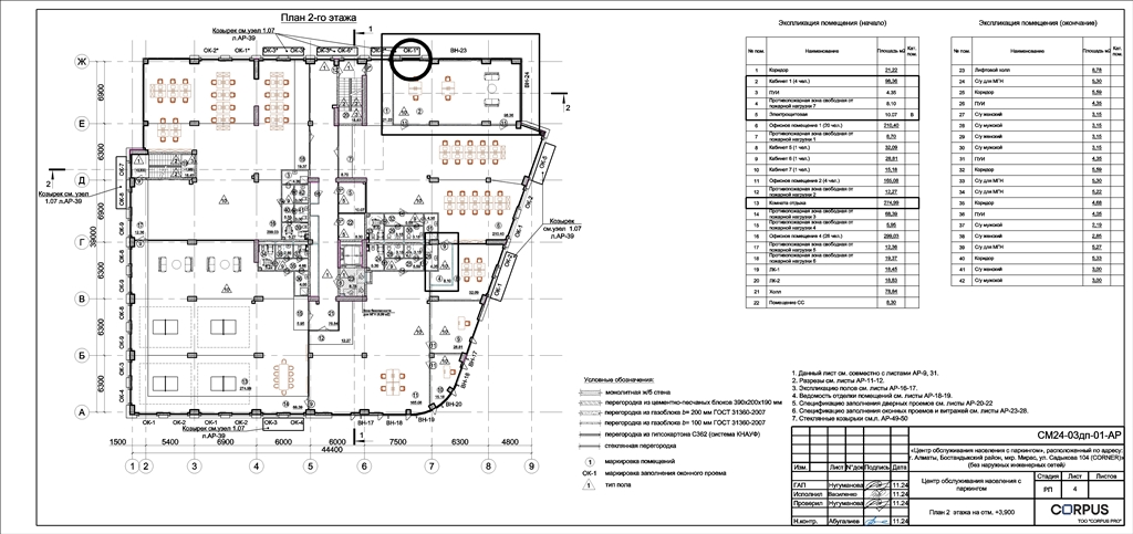
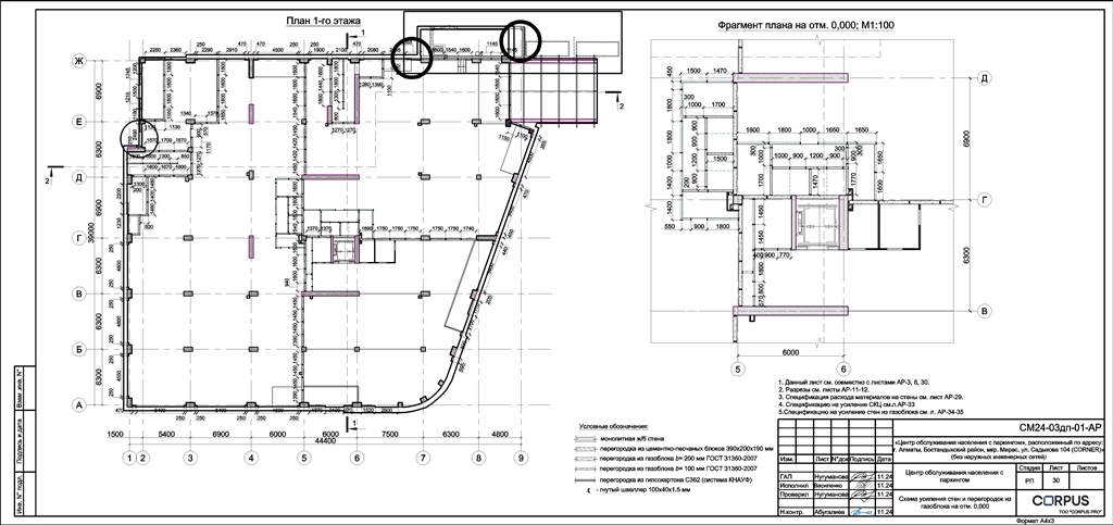
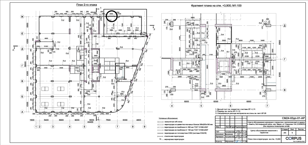
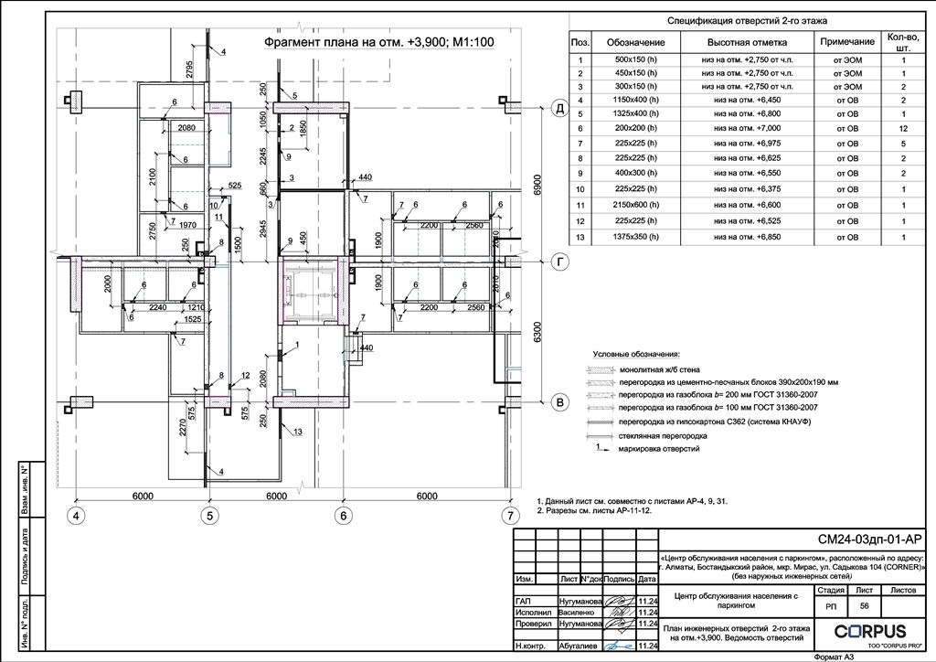
Проектом предусматривается размещение на участке здание Центра обслуживания населения с паркингом, состоящего из одного 3-х этажного блока. Размеры в осях 44.4х39.0 м. Высота подвального и первого этажей 3.6 м, высота второго и третьего этажей - 3.3 м.
Участок расположен по адресу: г. Алматы, Бостандыкский район, мкр. Мирас, ул. Садыкова, 104.
В подвальном этаже размещается паркинг на 30 м/м, включая 3 м/м для маломобильных групп населения, технические помещения (венткамера, насосная АПТ, трансформаторные, электрощитовая и т.д).
На первом этаж размещаются два торговых зала единовременной вместимостью 120 человек, фойе и помещения для персонала. Каждый торговый зал имеет два выхода через тепловой тамбур. На втором и третьем этажах размещены офисные помещения на 60 человек на каждом этаже. Эвакуация с офисных помещений происходит по лестнице Л1 через тепловой тамбур непосредственно наружу.
В здании размещаются две лестничные клетки, являющиеся путем эвакуации . Выход из паркинга имеет отдельный выход непосредственно на улицу и огражден противопожарной перегородкой с пределом не менее EI45. Так же в здании предусмотрен один лиф.
За отм. 0.000 принят уровень чистого пола первого этажа, что соответствует абсолютной отметке 1010.25 по генплану.
Обеспечение маломобильных групп населения
Мероприятия по обеспечению доступности для маломобильных групп населения запроектированы в соответствии с требованиями нормативных документов:
- предусмотрена безбарьерная среда перед входными крыльцами (перепад между крыльцом и уровнем земли не более 20 мм);
- входы и выходы здания запроектированы защищенными от атмосферных осадков;


Сообщить о проблеме
Автор
user-avatar user-5282935
Дата
08.12.2025
Язык
Русский
Состав
АР
Софт
Отзывов пока нет
Задать вопрос
Содержимое архива
  • icon-dwg СМ24-03дп-01-АР_1_Общие данные.dwg
  • icon-dwg СМ24-03дп-01-АР_2-12_30-32_54-57_Планы_Разрезы_16.12.2024.dwg
  • icon-dwg СМ24-03дп-01-АР_2-12_30-32_54-57_Планы_Разрезы_26.12.2024.dwg
  • icon-dwg СМ24-03дп-01-АР_13-15_49-50_Фасады_Козырьки_14.11.2024.dwg
  • icon-dwg СМ24-03дп-01-АР_13-15_49-50_Фасады_Козырьки_24.12.2024.dwg
  • icon-dwg СМ24-03дп-01-АР_16-17_Полы_26.11.2024.dwg
  • icon-dwg СМ24-03дп-01-АР_18-19_Отделка помещений_26.11.2024.dwg
  • icon-dwg СМ24-03дп-01-АР_20-22_Двери.dwg
  • icon-dwg СМ24-03дп-01-АР_23-28_Окна_витражи_04.12.2024.dwg
  • icon-dwg СМ24-03дп-01-АР_29_Перегородки.dwg
  • icon-dwg СМ24-03дп-01-АР_33_Усиление_СКЦ.dwg
  • icon-dwg СМ24-03дп-01-АР_34-35_Усиление_газоблока.dwg
  • icon-dwg СМ24-03дп-01-АР_36-42_Узлы по фасаду_13.12.2024.dwg
  • icon-dwg СМ24-03дп-01-АР_43.1-Узел парапета.dwg
  • icon-dwg СМ24-03дп-01-АР_43_Узлы по цоколю.dwg
  • icon-dwg СМ24-03дп-01-АР_44-45_Узлы по кровле.dwg
  • icon-dwg СМ24-03дп-01-АР_46-47_Ограждение по лестнице.dwg
  • icon-dwg СМ24-03дп-01-АР_48.1_Стремянка-2.dwg
  • icon-dwg СМ24-03дп-01-АР_48_Стремянка.dwg
  • icon-dwg СМ24-03дп-01-АР_51_Опросный лист на лифт_20.11.2024.dwg
  • icon-dwg СМ24-03дп-01-АР_51_Опросный лист на лифт_24.12.2024.dwg
  • icon-dwg СМ24-03дп-01-АР_52-53_Сигнальная_разметка.dwg
  • icon-dwg СМ24-03дп-01-АР_58_Жалюзийная_решетка.dwg
  • icon-dwg СМ24-03дп-01-АР_59-63_Вентшахты.dwg
Чтобы скачать чертеж, 3D модель или проект, Вы должны зарегистрироваться и принять участие в жизни сайта. Посмотрите, как тут скачивать файлы
Отзывов пока нет
Чтобы оставить отзыв, необходимо войти
Войти с помощью:

Используя функцию входа через сторонние сервисы, Вы соглашаетесь на обработку персональных данных в соответствии с Политикой конфиденциальности