Перейти к содержимому
Войти

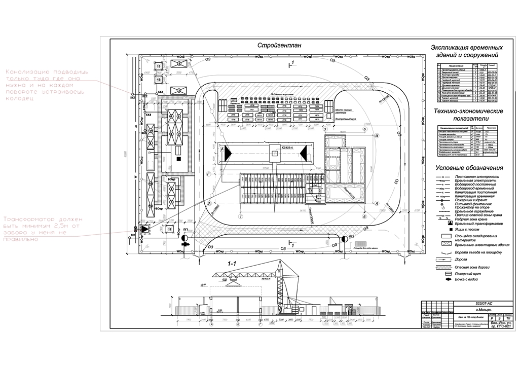
Банк на 125 сотрудников

0
238
2063
5
1
200

УО КГПАТК
Промышленное гражданское строительство
2012

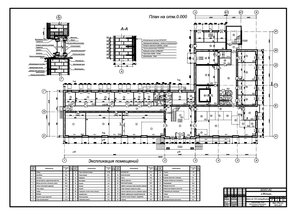
Строительство здания банка на 125 сотрудников осуществляется на участке площадью в 1064 м2 в г. Мозыре по улице Ленина. Здание имеет размер в осях 56,7х30,9м, по высоте здание имеет 3-4 этажа.
Банки относятся к учреждениям массового обслуживания. Они должны располагаться в центре жилого района и в непосредственной близости от остановок общественного транспорта для обеспечения легкой досягаемости населения. Для обеспечения нормального функционирования банк необходимо оборудовать удобный подъезд и стоянку легкового транспорта.
Данное здание должно стать дополнением к ансамблю уже существующих учреждений по обеспечению услуг населению, кроме того, оно должно быть архитектурно удобным, практичным и красивым зданием, украшающим район города.

Содержание 4
Аннотация 7
Введение 8
1 Архитектурно-строительный раздел 9
1.1Исходные данные 9
1.2 Генеральный план 10
1.2.2 Подсчет черных отметок 10
1.2.3 Подсчет красных отметок 11
1.3 Объемно-планировочное решение 12
1.3.1 Общее положение 12
1.3.2 ТЭП объемно-планировочного решения 13
1.3.3 Противопожарные мероприятия 13
1.4 Конструктивные решения 13
1.5 Санитарно-техническое и инженерное оборудование 24
1.6 Теплотехнический расчет ограждающей конструкции 25
2 Расчетно-конструктивный раздел 29
2.1 Расчет сборной железобетонной многопустотной панели перекрыти перекрытия перекрытия 29
2.1.1 Определение нагрузок и усилий 29
2.1.2 Определение расчетного пролета панели 31
2.1.3 Усилия от расчетных и нормативных нагрузок 31
2.1.4 Установление размеров поперечного сечения плиты 33
2.1.5 Характеристики прочности бетона и арматуры 34
2.1.6 Определение начальных напряжений в арматуре 35
2.1.7 Расчет прочности плиты по сечению, нормальному к продольной оси
2.1.8 Расчет прочности плиты по сечению, наклонному к продольной оси
2.1.9 Определение геометрических характеристик приведенного сечения для расчета плиты по предельным состояниям второй группы сечения для расчета плиты по предельным состояниям второй группы
2.1.10 Потери предварительного напряжения арматуры
2.1.11 Расчет по образованию трещин, нормальных к продольной оси 43
2.1.12 Расчет прогиба плиты 43
2.1.13 Проверка панели на монтажные усилия 6
2.1.14 Расчет монтажных петель 48
2.2 Расчет фундаментной подушки
2.2.1 Исходные данные
2.2.2 Подсчет нагрузок
2.2.3 Определение ширины фундаментной подушки
2.2.4 Расчет тела фундамента


Сообщить о проблеме
Дата
30.05.2014
Язык
Русский
Состав
ПЗ, архетектура, ЖБК, организация, охрана труда, технология, экономика
Софт
Отзывов пока нет
Задать вопрос
Содержимое архива
        • icon-doc АрхитектураФролова.doc
        • icon-dwg АрхитектураФролова.dwg
        • icon-doc ЖБКФролова.doc
        • icon-dwg ЖБКФролова.dwg
        • icon-doc ЖБККати.doc
        • icon-dwg ЖБККати.dwg
        • icon-dwg ГентланФроловой.dwg
        • icon-doc ОрганизацияФролова.doc
        • icon-dwg СетевойФролова.dwg
        • icon-doc ФроловаОхранвТруда.doc
        • icon-doc ТехнологияФролова.doc
        • icon-dwg ТехнологияФролова.dwg
        • icon-doc ФроловаЭк.doc
        • icon-xls ФроловаЭк.xls
      • icon-doc Заключение.doc
      • icon-doc Рецензия.doc
      • icon-doc Речь.doc
      • icon-doc Содержание.doc
      • icon-doc Содержание Продолжение.doc
      • icon-dwg ТемаДиплома.dwg
      • icon-doc Титульный.doc
      • icon-doc анотация бел.doc
      • icon-doc литература.doc
Чтобы скачать чертеж, 3D модель или проект, Вы должны зарегистрироваться и принять участие в жизни сайта. Посмотрите, как тут скачивать файлы
Отзывов пока нет
Чтобы оставить отзыв, необходимо войти
Войти с помощью:

Используя функцию входа через сторонние сервисы, Вы соглашаетесь на обработку персональных данных в соответствии с Политикой конфиденциальности