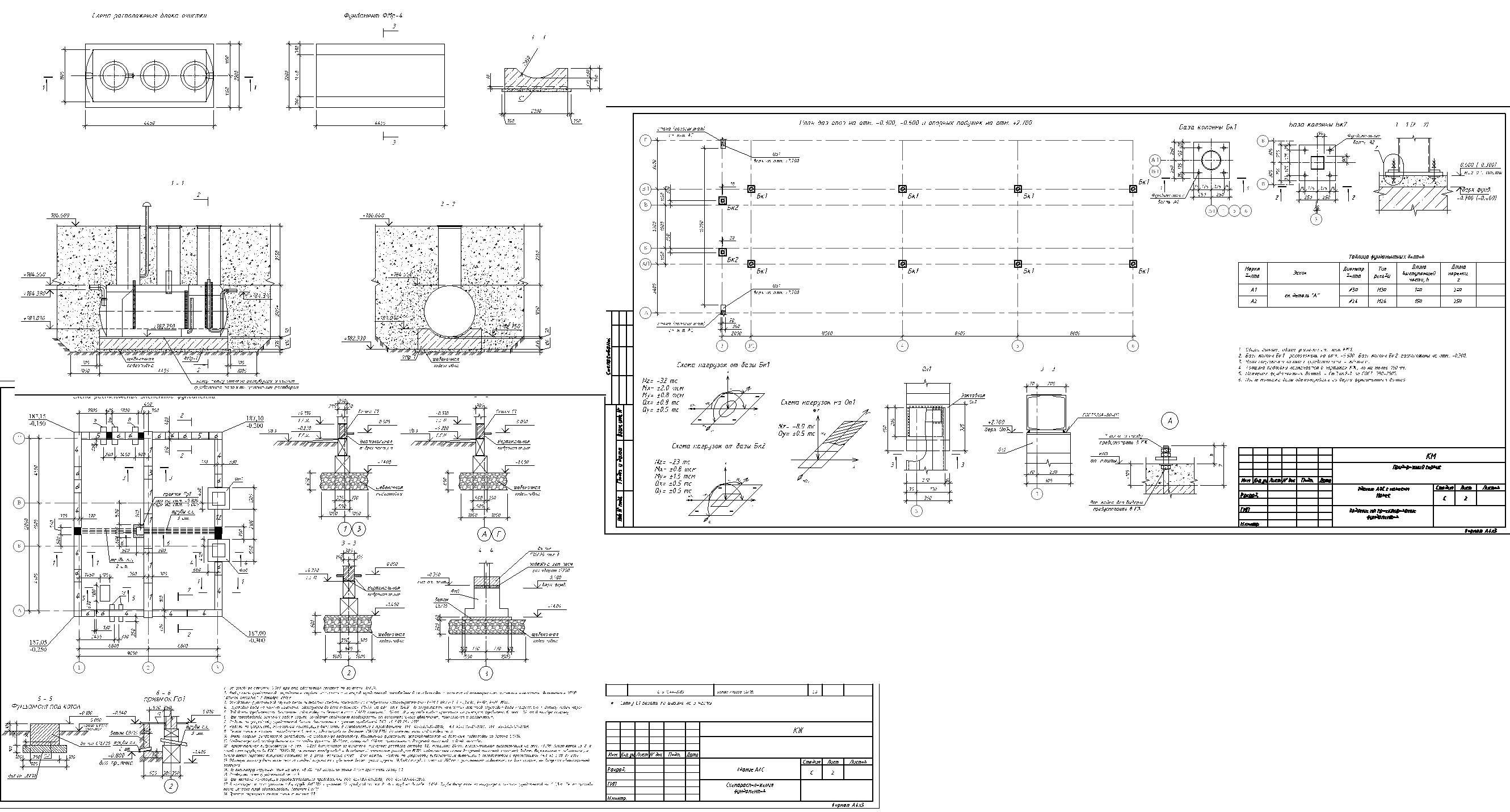
Здание автозаправки 9.6х12м одноэтажное (КЖ), навес над заправкой металлический 5,2х26,5 (КМ и КЖ), фундаменты подземных резервуаров хранения топлива (КЖ), общеплощадочные объекты - площадка для сбора мусора (КЖ)
- Главная -
- Чертежи -
- Строительство -
- Проекты домов -
- Здания социально-бытового назначения -
- Разделы КЖ и КМ здания и навеса АЗС
Разделы КЖ и КМ здания и навеса АЗС
0
2
519
8
0
50

Сообщить о проблеме
Автор
Дата
04.06.2020
Язык
Русский
Состав
Разделы КМ и КЖ здания АЗС и навеса
Софт
AutoCAD 2007
Как открыть?
Отзывов пока нет
Содержимое архива
Чтобы скачать чертеж, 3D модель или проект, Вы должны зарегистрироваться
и принять участие в жизни сайта. Посмотрите, как тут скачивать
файлы
Вопросы по теме
Отзывов пока нет
Чтобы задать вопрос, необходимо войти
Войти с помощью:
Ссылка на логин через google
Ссылка на логин через vk
Ссылка на логин через yandex