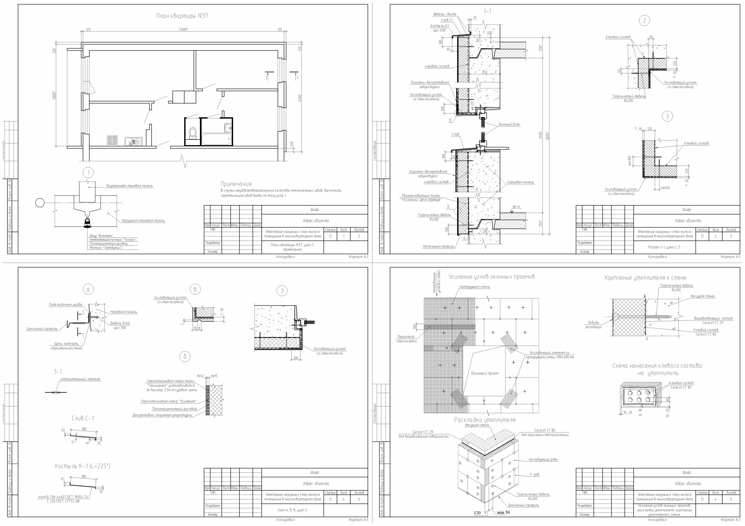
В качестве утеплителя приняты плиты "ТЕХНОФАС ДВУХСЛОЙНЫЙ" из минеральной ваты на основе горных пород базальтовой группы производства корпорации "ТехноНИКОЛЬ", толщиной 120 мм. Плиты имеют комбинированную структуру и состоят из жесткого верхнего (наружного) и более легкого нижнего (внутреннего) слоев.
В качестве отделочного слоя принята тонкослойная декоративная штукатурка, общая толщина отделочного слоя колеблется от 7 до 10мм. Запрещается применять акриловые декоративные штукатурки, т.к. они имеют низкую паропроницаемость.
- Главная -
- Чертежи -
- Строительство -
- Утепление наружных стен жилого помещения в многоквартирном доме
Утепление наружных стен жилого помещения в многоквартирном доме
0
216
1844
1
0
100

Сообщить о проблеме
Автор
Дата
29.06.2015
Язык
Русский
Состав
План помещения, узлы утепления, краткая поясниительная записка
Софт
AutoCAD 2007
Как открыть?
Отзывов пока нет
Содержимое архива
Чтобы скачать чертеж, 3D модель или проект, Вы должны зарегистрироваться
и принять участие в жизни сайта. Посмотрите, как тут скачивать
файлы
Отзывов пока нет
Чтобы задать вопрос, необходимо войти
Войти с помощью:
Ссылка на логин через google
Ссылка на логин через vk
Ссылка на логин через yandex