Перейти к содержимому
Войти

Прицеп легковой до 750 кг

2
14
1466
5
0
200

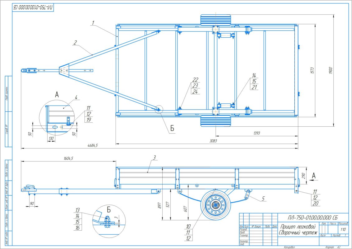
прицеп легковой одноосный, до 750 кг. Колеса R13, ось из проф. трубы 50*50*4, Ступица ВАЗ. Не указаны защелки на борта, фонари, крылья, пол фанера 9мм. Сборки 3D нет, только частичная деталировка некоторых узлов


Сообщить о проблеме
Дата
16.01.2026
Язык
Русский
Состав
СБ, деталировка, спецификация (согласно списка файлов)
Софт
КОМПАС-3D 18,2 Как открыть?
Отзывов пока нет
Задать вопрос
Содержимое архива
      • icon-a3d Сборка.a3d
      • icon-m3d перемычка.m3d
      • icon-m3d скоба.m3d
      • icon-m3d скоба рессоры.m3d
        • icon-m3d Борт.m3d
        • icon-m3d Планка.m3d
        • icon-a3d Сборка.a3d
      • icon-cdw Борт.cdw
      • icon-cdw Борт боковой СБ.cdw
      • icon-cdw Планка 1.cdw
      • icon-cdw Планка 2.cdw
      • icon-cdw Борт.cdw
      • icon-cdw Борт задний СБ.cdw
      • icon-cdw Заглушка.cdw
      • icon-cdw Пластина.cdw
      • icon-cdw Проушина.cdw
      • icon-m3d проушина.m3d
        • icon-m3d Косынка.m3d
        • icon-m3d Перемычка.m3d
        • icon-m3d Пластина.m3d
        • icon-m3d Промежуточное дышло.m3d
        • icon-a3d Сборка.a3d
        • icon-a3d Сборка2.a3d
        • icon-m3d Сцепное устройство AK7 VE VKT60 PLUS.m3d
        • icon-m3d Труба 1750.m3d
      • icon-cdw Дышло СБ.cdw
      • icon-cdw Перемычка.cdw
      • icon-cdw Пластина.cdw
      • icon-cdw Промежуточное дышло.cdw
      • icon-cdw Спецификация.cdw
      • icon-cdw косынка.cdw
      • icon-cdw Пластина верхняя.cdw
      • icon-cdw Пластина нижняя.cdw
      • icon-cdw Пластина подвижная.cdw
      • icon-cdw Подвеска СБ.cdw
      • icon-cdw Спецификация.cdw
        • icon-m3d Труба промежуточная.m3d
        • icon-m3d Труба промежуточная 2.m3d
        • icon-m3d передний бампер.m3d
        • icon-cdw Гнутый швеллер.cdw
        • icon-cdw Задний бампер СБ.cdw
        • icon-cdw Пластина торцевая.cdw
        • icon-cdw Проушина.cdw
        • icon-cdw Корпус.cdw
        • icon-cdw Корпус сайленблока СБ.cdw
      • icon-cdw Боковая труба.cdw
      • icon-cdw Передний бампер.cdw
      • icon-cdw Промежуточная труба 1.cdw
      • icon-cdw Промежуточная труба 2.cdw
      • icon-cdw Проставка.cdw
      • icon-cdw Проушина передняя.cdw
      • icon-cdw Рама СБ.cdw
      • icon-cdw Скоба.cdw
      • icon-cdw Скоба рессоры.cdw
      • icon-cdw Спецификация.cdw
      • icon-cdw Стакан 1.cdw
      • icon-cdw Стакан 2.cdw
      • icon-cdw проушина.cdw
    • icon-cdw Прицеп легковой СБ.cdw
    • icon-jpg Прицеп легковой СБ.jpg
    • icon-cdw Спецификация.cdw
Чтобы скачать чертеж, 3D модель или проект, Вы должны зарегистрироваться и принять участие в жизни сайта. Посмотрите, как тут скачивать файлы
Отзывов пока нет
Чтобы оставить отзыв, необходимо войти
Войти с помощью:

Используя функцию входа через сторонние сервисы, Вы соглашаетесь на обработку персональных данных в соответствии с Политикой конфиденциальности