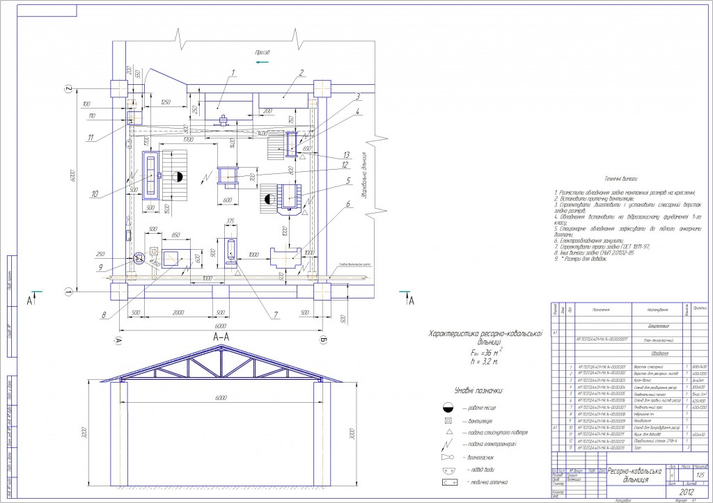
Кузнечно-рессорный участок предназначен для ремонта и изготовления деталей с применением нагрева, а также для термической и химико-термической обработки деталей, изготовленных механическим участком.В идеальном случае участок занимается ремонтом рессор и изготовлением кованых деталей.
- Главная -
- Чертежи -
- Транспорт -
- Автосервис и автомобильное хозяйство -
- Рессорно-кузнечный участок
Рессорно-кузнечный участок
0
293
16365
26
0
20

Сообщить о проблеме
Автор
Дата
31.01.2013
Язык
Украинский
Состав
Технологическая схема
Софт
Компас v12, CDW
Отзывов пока нет
Содержимое архива
Чтобы скачать чертеж, 3D модель или проект, Вы должны зарегистрироваться
и принять участие в жизни сайта. Посмотрите, как тут скачивать
файлы
Отзывов пока нет
Чтобы задать вопрос, необходимо войти
Войти с помощью:
Ссылка на логин через google
Ссылка на логин через vk
Ссылка на логин через yandex