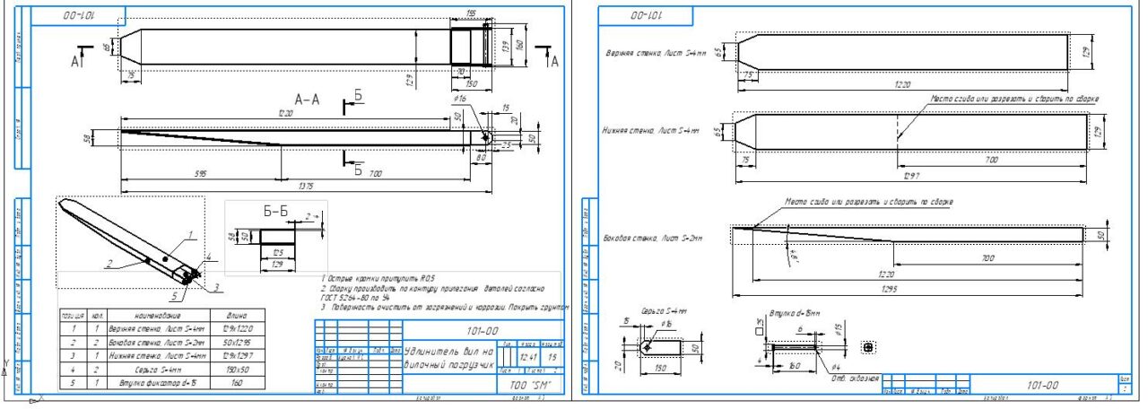
Удлинитель вил предназначен для увеличения длины стандартных вил вилочного погрузчика с целью транспортировки длинномерных и крупногабаритных грузов (поддоны нестандартных размеров, листовой материал, трубы и др.).
- Главная -
- Чертежи -
- Транспорт -
- Строительные, специальные и дорожные машины -
- Удлинитель вил погрузчика
Удлинитель вил погрузчика
0
1
74
0
0
30
Сообщить о проблеме
Автор
Дата
31.03.2026
Язык
Русский
Состав
3d модель, чертеж
Софт
КОМПАС-3D 24
Как открыть?
Отзывов пока нет
Содержимое архива
-
Боковая стенка 2 _ 101-01-01.m3d
-
Боковые стенки _ 101-01-00.m3d
-
Боковые стенки _ 101-01.m3d
-
Верхняя стенка _ 101-02.m3d
-
Втулка _ 101-05.m3d
-
Нижняя стенка _ 101-03.m3d
-
Нижняя стенка _ 101-04-00.m3d
-
Нижняя стенка _ 101-04.m3d
-
Серьга.m3d
-
Удлинитель вил на вилочный погрузчик _ 101-00.a3d
-
Удлинитель вил на вилочный погрузчик _ 101-00.cdw
-
Удлинитель вил на вилочный погрузчик _ 101-00.stp
-
Шпилька фиксатор _ 101-06.m3d
Чтобы скачать чертеж, 3D модель или проект, Вы должны зарегистрироваться
и принять участие в жизни сайта. Посмотрите, как тут скачивать
файлы
Отзывов пока нет
Чтобы оставить отзыв, необходимо войти
Войти с помощью:
Используя функцию входа через сторонние сервисы, Вы соглашаетесь на обработку персональных данных в соответствии с Политикой конфиденциальности
Используя функцию входа через сторонние сервисы, Вы соглашаетесь на обработку персональных данных в соответствии с Политикой конфиденциальности