Перейти к содержимому
Войти

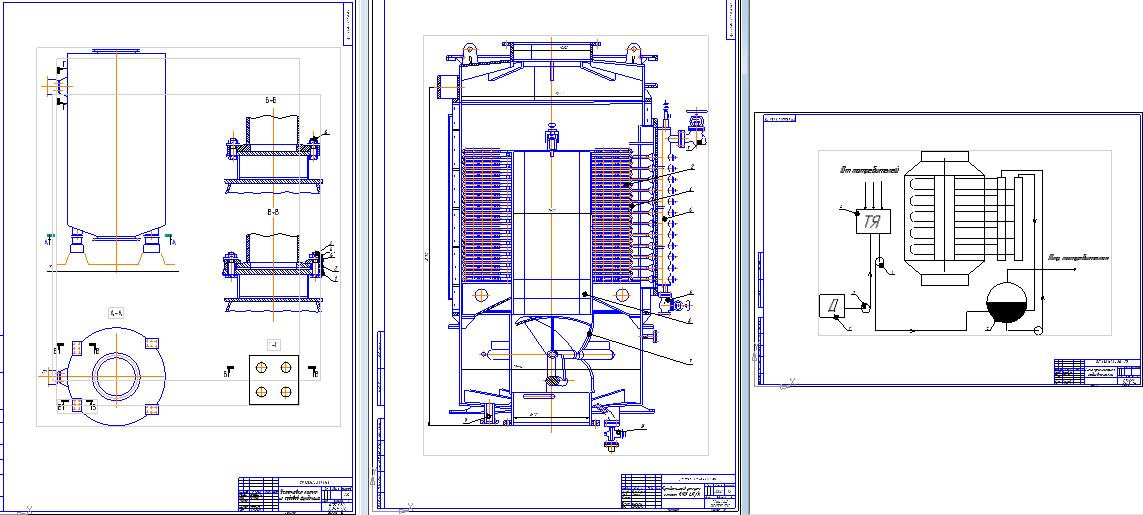
Котел утилизатор КУП 40/6 сухогруза типа «Сергей Боткин»

0
80
1731
29
0
100

ФГБОУ ВО КГМТУ
Монтаж и экспулатация судовых устройств и механизмов
Дипломная работа
Керчь 2016

исходные данные котел утилизатор КУП 40/6
в данной работе рассматривается Тепловой расчет утилизационного котла
Расчет теплоизоляции коллектора утилизационного котла
Технические требования к монтажу утилизационного котла на судне
Технологический процесс монтажа утилизационного котла на судовой фундамент

Содержание
Глава 1 Общая часть
1.1 Краткая характеристика судна-прототипа и его энергетических установок
1.2 Описание конструкции утилизационного котла……………………………..
1.3 Тепловая схема котла, и системы его обслуживание……………………….
Глава2 Специальная часть
2.1 Тепловой расчет утилизационного котла……………....................................
2.2 Расчет теплоизоляции коллектора утилизационного котла………………...
2.3Технические требования к монтажу утилизационного котла на судне……
2.4Технологический процесс монтажа утилизационного котла на судовой фундамент…………………………………………………………………………
2.5Техническое обслуживание котла во время стоянки судна………………...
Глава 3 Экономика и организация производства
3.1 Понятие прибыли и ее экономическая сущность…………………………..
3.2 Расчет трудоемкости монтажа утилизационного котла.……………………
3.3 Расчет средней заработной платы на монтаж утилизационного котла……
Глава 4 Техника безопасности и противопожарная техника
4.1 Техника безопасности при монтаже и испытаниях котла………………….
Глава 5 Охрана окружающей среды……………………………………………..
5.1 Сепаратор льяльных вод………………………………………………………
Заключение………………………………………………………………………..
Перечень использованной Литературы………………………………………….


Сообщить о проблеме
Дата
30.10.2016
Язык
Русский
Состав
Поперечный разрез котла КУП 40/6, Монтажный чертеж котла на судовой фундамент, Принципиальная схема работы котла
Софт
КОМПАС-3D 16.0.10 Как открыть?
Отзывов пока нет
Задать вопрос
Содержимое архива
  • icon-doc Введение.docx
  • icon-doc Заключение.docx
  • icon-doc Литература.doc
  • icon-cdw Монтажный чертеж.cdw
  • icon-cdw Поперечный разрез.cdw
  • icon-doc Пояснительная записка.docx
  • icon-cdw Принципиальная схема.cdw
  • icon-doc Реферат.docx
  • icon-doc Спецификация монтажа непр.doc
  • icon-doc Спецификация поперечника.doc
  • icon-doc Спецификация схемы.docx
Чтобы скачать чертеж, 3D модель или проект, Вы должны зарегистрироваться и принять участие в жизни сайта. Посмотрите, как тут скачивать файлы
Отзывов пока нет
Чтобы оставить отзыв, необходимо войти
Войти с помощью:

Используя функцию входа через сторонние сервисы, Вы соглашаетесь на обработку персональных данных в соответствии с Политикой конфиденциальности