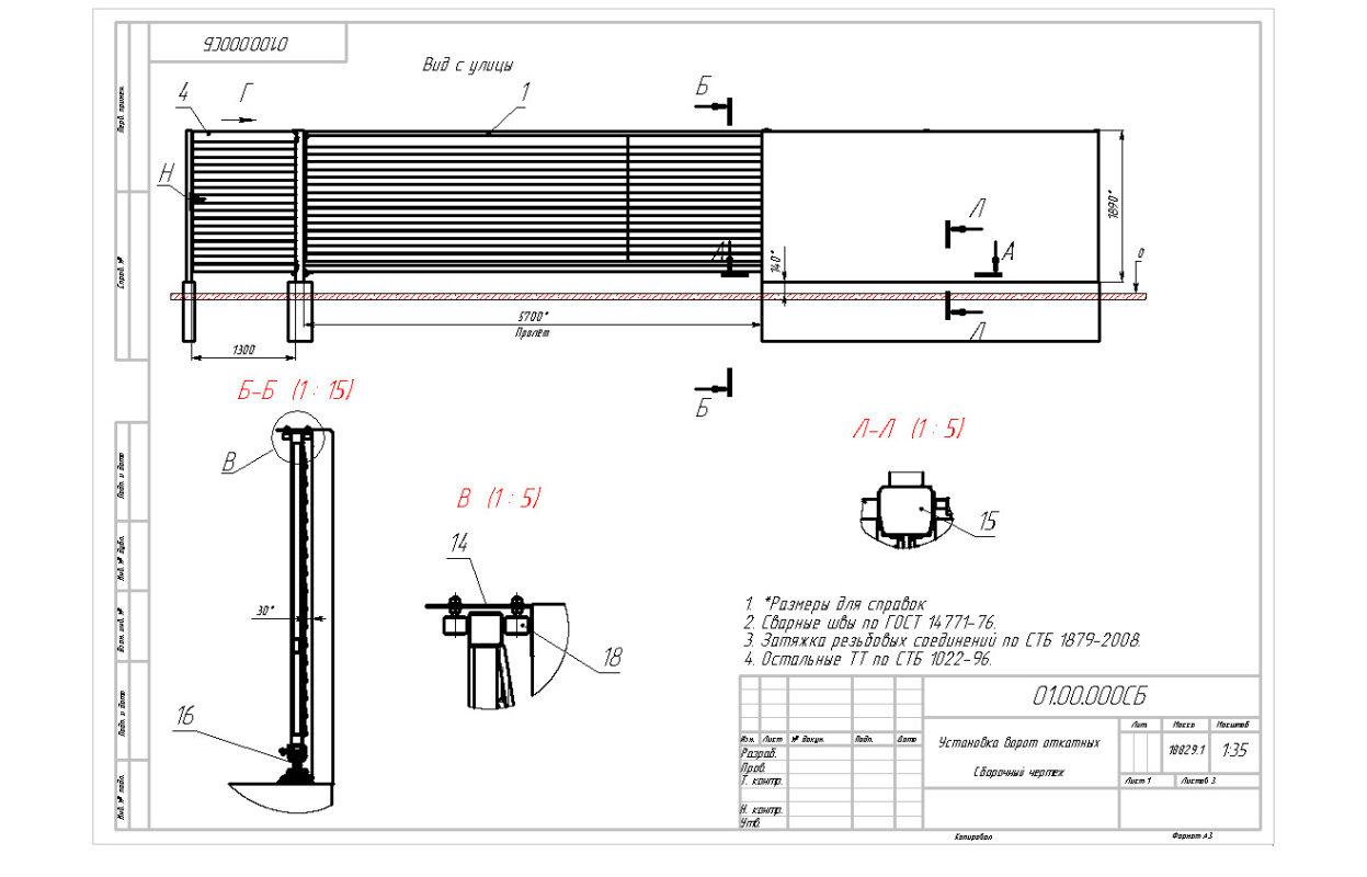
Длина ворот, мм - 8000. Высота ворот, мм - 1775. Проем закрытия длина, мм - 5700. Боковая калитка шириной, мм - 1300. Имеет направляющую под ролики, ролики, зубчатую рейку для двигателя, улавливатели, ролики поддерживающие. Электродвигатель в сборке отсутствует.
- Главная -
- Чертежи -
- Моделизм, хобби, своими руками -
- Ворота откатные 8 х 1,75 метров
Ворота откатные 8 х 1,75 метров
0
0
35
0
0
100


Сообщить о проблеме
Автор

Дата
20.09.2025
Язык
Русский
Состав
3D Сборка с чертежами и спецификациями.
Софт
SolidWorks 2019 SP5
Как открыть?
Отзывов пока нет
Содержимое архива
Чтобы скачать чертеж, 3D модель или проект, Вы должны зарегистрироваться
и принять участие в жизни сайта. Посмотрите, как тут скачивать
файлы
Отзывов пока нет
Чтобы задать вопрос, необходимо войти
Войти с помощью:
Ссылка на логин через google
Ссылка на логин через vk
Ссылка на логин через yandex