Перейти к содержимому
Войти

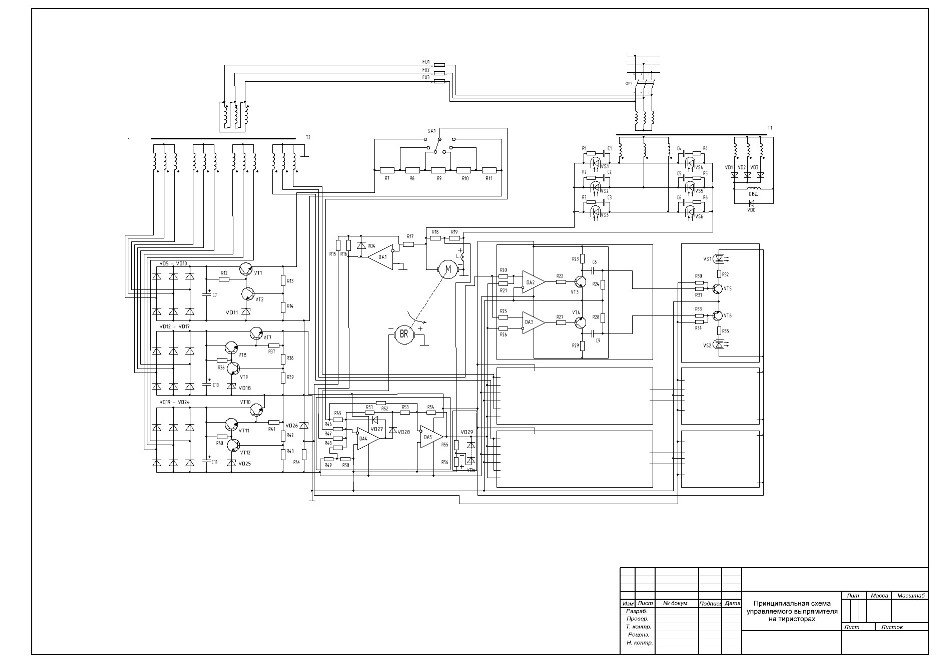
Разработка управляемого выпрямителя на тиристорах

0
0
26
0
0
100

МИНИСТЕРСТВО ОБРАЗОВАНИЯ РОССИЙСКОЙ ФЕДЕРАЦИИ
УЛЬЯНОВСКИЙ ГОСУДАРСТВЕННЫЙ ТЕХНИЧЕСКИЙ УНИВЕРСИТЕТ

Кафедра: Электропривод и автоматизация промышленных установок и технологических комплексов

Курсовая работа по промышленной электронике.
В процессе работы необходимо разработать и начертить полную принципиальную схему тиристорного устройства управления электроприводом.

Исходные данные:
- Номинальная мощность двигателя 5,2 кВт.
- Номинальное напряжение на якоре 110 В.
- Частота вращения вала 800 об/мин.
- Коэффициент полезного действия 80,9 %.
- Активное сопротивление якорной цепи 0,109 Ом.
- Коэффициент допустимой перегрузки по току 2,5.
- Индуктивность якорной цепи 2,6 мГн.
- Тип силовой схемы 3-х фазный мост полууправляемый.
- Тип тиристоров оптронные.
- Тип СИФУ arccos.

Содержание
1. Задание на курсовую заботу
2. Краткое описание тиристорного устройства управления и принцип действия его основных узлов
2.1. Управляемый выпрямитель
2.2. Система импульсно-фазового управления
2.3. Нелинейный регулятор
3. Расчет и выбор элементов силовой части
3.1. Расчет силового согласующего трансформатора
3.2. Выбор силовых тиристоров
3.3. Выбор сглаживающего реактора в якорной цепи двигателя
3.4. Выбор защитных «RC» цепочек
4. Расчет и построение статических характеристик тиристорного выпрямителя
4.1. Построение регулировочной характеристики тиристорного выпрямителя в режиме условного холостого хода
4.2 Построение регулировочной характеристики системы «нелинейный регулятор - тиристорный выпрямитель»
4.3. Определение коэффициента усиления тиристорного выпрямителя
4.4. Расчет и построение внешних характеристик управляемого выпрямителя
5. Анализ энергетических показателей тиристорного преобразователя
6. Вывод
Список литературы


Сообщить о проблеме
Автор
user-avatar Андрей
Дата
28.01.2026
Язык
Русский
Состав
Пояснительная записка, Чертеж
Софт
Другая sPlan 7
Отзывов пока нет
Задать вопрос
Содержимое архива
  • icon-doc Пояснительная записка.doc
  • icon-spl Чертеж.spl7
Чтобы скачать чертеж, 3D модель или проект, Вы должны зарегистрироваться и принять участие в жизни сайта. Посмотрите, как тут скачивать файлы
Отзывов пока нет
Чтобы оставить отзыв, необходимо войти
Войти с помощью:

Используя функцию входа через сторонние сервисы, Вы соглашаетесь на обработку персональных данных в соответствии с Политикой конфиденциальности