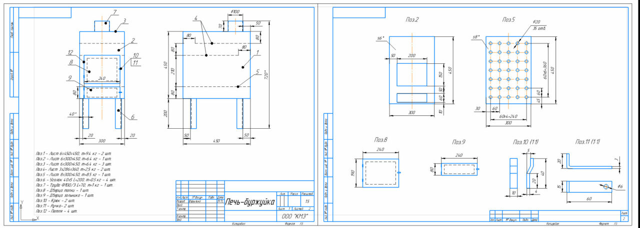
Печка-буржуйка. чертеж печки буржуйки. для бытовки, гаража. из листового материала.
- Главная -
- Чертежи -
- Теплотехника -
- Печи -
- Печь-буржуйка для бытовки
Печь-буржуйка для бытовки
0
7
3578
16
2
20

Сообщить о проблеме
Автор
Дата
24.04.2019
Язык
Русский
Состав
СБ
Софт
КОМПАС-3D 14
Как открыть?
Отзывов пока нет
Содержимое архива
Чтобы скачать чертеж, 3D модель или проект, Вы должны зарегистрироваться
и принять участие в жизни сайта. Посмотрите, как тут скачивать
файлы
Отзывов пока нет
Чтобы задать вопрос, необходимо войти
Войти с помощью:
Ссылка на логин через google
Ссылка на логин через vk
Ссылка на логин через yandex