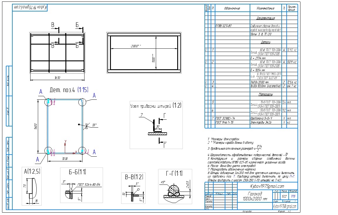
3Д параметрическая сборка прямоугольного газовоздухопровода с оребрением.
В модели можно изменять следующие параметры:
Высоту газохода - В
Длину газохода - L
Толщину листа стенок газохода - S
Величину выступа верхнего листа над боковым - а
Тип присоединения к газоходу - Flanez (1- без фланца, 0- фланец)
Выбирать тип ребер жесткости - TipRebra (1-полоса 50х5, 2- резерв , 3 - резерв)
Включать или отключать ребра на стенках газовоздухопровода
Изменять шаги оребрения по вертикальным м горизонтальным стенкам газовоздухопровода
3Д сборка выполнена с деталировкой стенок и фланцев.
Оребрение дано в спецификации как материал (требуется ручная корректировка см. примечания на закладке переменные)
- Главная -
- Чертежи -
- Теплотехника -
- Котлы -
- Параметрическая модель прямоугольного прямого газохода
Параметрическая модель прямоугольного прямого газохода
0
0
99
2
0
30

Сообщить о проблеме
Автор
Дата
07.02.2023
Язык
Русский
Состав
3D параметрическая сборка с деталировкой стенок и автоматическим созданием спецификации
Софт
КОМПАС-3D 19.1
Как открыть?
Отзывов пока нет
Содержимое архива
Чтобы скачать чертеж, 3D модель или проект, Вы должны зарегистрироваться
и принять участие в жизни сайта. Посмотрите, как тут скачивать
файлы
Отзывов пока нет
Чтобы задать вопрос, необходимо войти
Войти с помощью:
Ссылка на логин через google
Ссылка на логин через vk
Ссылка на логин через yandex