Перейти к содержимому
Войти

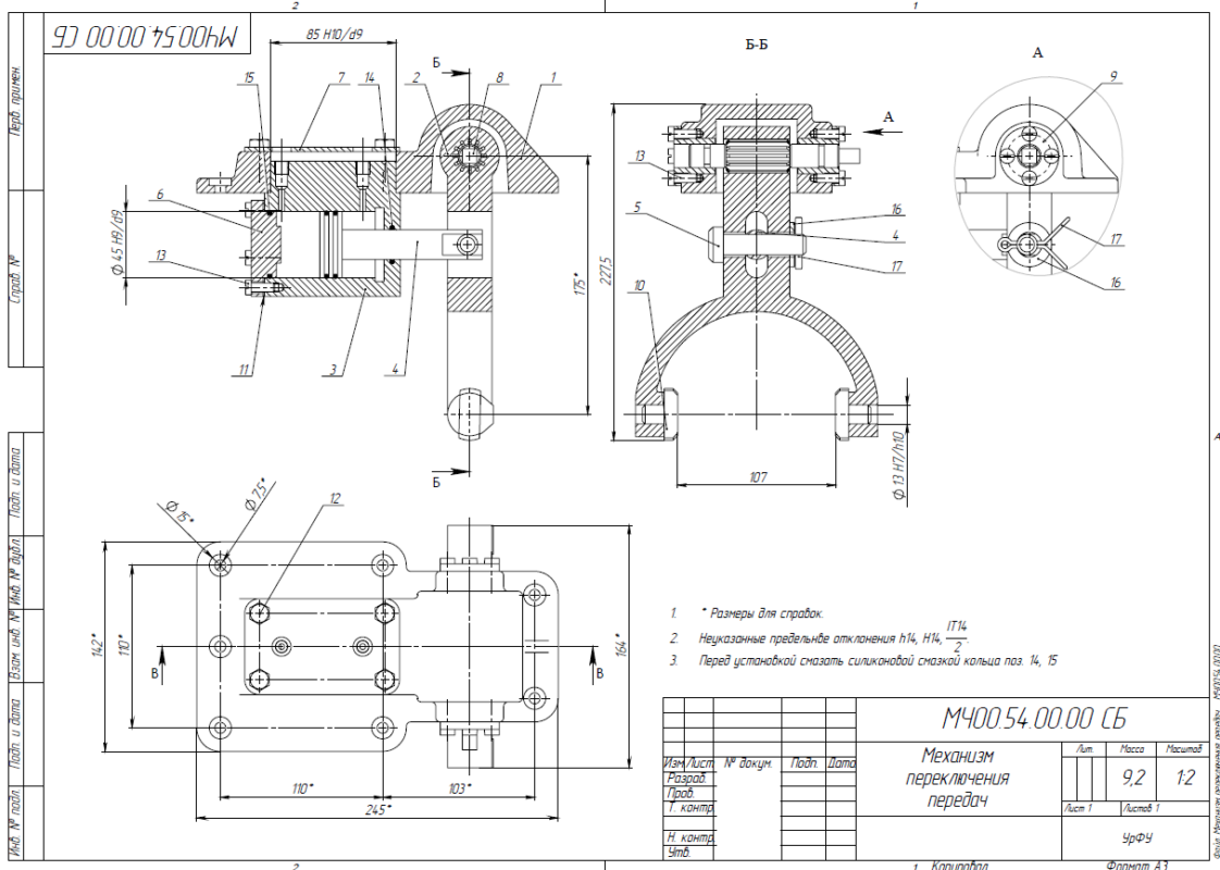
Механизм переключения передач МЧ00.54.00.00

0
1
148
0
0
50

УрФУ Кафедра Технологии машиностроения, станки и инструменты, Компьютерное моделирование ПиОМ, Моделирование механизма переключения передач в САПР SOLIDWORKS 2020, 3 курс

Моделирование механизма переключения передач в САПР SOLIDWORKS 2020. РГР,основана на задании:
С.К. Боголюбов "Чтение и деталирование сборочных чертежей" Альбом Издательство "Машиностроение" Москва 1986 г. МЧ00.54.00.00.СБ.
Выполнена сборка с деталировкой, в масштабе 1:1, основанная на работе "3D сборка "Механизм переключения передач" МЧ00.54.00.00.СБ", выполненной в SW2013. Относительно нее изменены все размеры, под масштаб, соответствующий заданию, все эскизы определены(+), размеры соответственно изменены, как и некоторые операции. Также оформлен чертеж (не идеально соответствует ЕСКД), не оформлена спецификация (не требовалось по заданию преподавателя). Стандартные изделия параметрические, с таблицей исполнений

Оглавление
ВВЕДЕНИЕ 3
1. Моделирование деталей 4
1.1. Крышка_МЧ00.54.00.01 5
1.2. Вилка_МЧ00.54.00.02 5
1.3. Корпус_МЧ00.54.00.03 6
1.4. Поршень_МЧ00.54.00.04 6
1.5. Ось_МЧ00.54.00.05 7
1.6. Крышка_МЧ00.54.00.06 7
1.7. Пластинка_МЧ00.54.00.07 8
1.8. Валик_МЧ00.54.00.08 8
1.9. Втулка_МЧ00.54.00.09 9
1.10. Сухарь_МЧ00.54.00.10 9
1.11. Прокладка_МЧ00.54.00.11 10
1.12. Стандартные изделия 11
Список литературы 12


Сообщить о проблеме
Дата
20.03.2026
Язык
Русский
Состав
ПЗ(отчет), 3D Сборка
Софт
SolidWorks 20 Как открыть?
Отзывов пока нет
Задать вопрос
Содержимое архива
  • icon-sldprt Болт_В_7798-70.SLDPRT
  • icon-sldprt Валик _ МЧ00.54.00.08.SLDPRT
  • icon-sldprt Вилка _ МЧ00.54.00.02.SLDPRT
  • icon-sldprt Винт ГОСТ 1491-80.sldprt
  • icon-sldprt Втулка _ МЧ00.54.00.09.SLDPRT
  • icon-sldprt Кольца ГОСТ 9833-73.SLDPRT
  • icon-sldprt Корпус _ МЧ00.54.00.03.SLDPRT
  • icon-sldprt Корпус _ МЧ00.54.00.05.SLDPRT
  • icon-sldprt Крышка _ МЧ00.54.00.01.SLDPRT
  • icon-sldprt Крышка _ МЧ00.54.00.06.SLDPRT
  • icon-slddrw Механизм переключения передач _ МЧ00.54.00.00-1.SLDDRW
  • icon-pdf Механизм переключения передач _ МЧ00.54.00.00.pdf
  • icon-sldasm Механизм переключения передач _ МЧ00.54.00.00.SLDASM
  • icon-slddrw Механизм переключения передач _ МЧ00.54.00.00.SLDDRW
  • icon-sldasm Механизм переключения передач _ МЧ00.54.00.SLDASM
  • icon-step Механизм переключения передач _ МЧ00.54.00.STEP
  • icon-sldprt Ось _ МЧ00.54.00.05.SLDPRT
  • icon-doc Отчет моделирование механизма переключения передач.docx
  • icon-sldprt Пластинка _ МЧ00.54.00.07.SLDPRT
  • icon-sldprt Поршень _ МЧ00.54.00.04.SLDPRT
  • icon-sldprt Прокладка _ МЧ00.54.00.11.SLDPRT
  • icon-sldprt Сухарь _ МЧ00.54.00.10.SLDPRT
  • icon-sldprt Шайба_11371-78.SLDPRT
  • icon-sldprt Шплинт ГОСТ397-79.sldprt
Чтобы скачать чертеж, 3D модель или проект, Вы должны зарегистрироваться и принять участие в жизни сайта. Посмотрите, как тут скачивать файлы
Отзывов пока нет
Чтобы оставить отзыв, необходимо войти
Войти с помощью:

Используя функцию входа через сторонние сервисы, Вы соглашаетесь на обработку персональных данных в соответствии с Политикой конфиденциальности