Перейти к содержимому
Войти

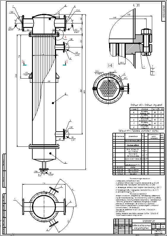
Выполнение чертежа общего вида вертикального кожухотрубного конденсатора.

0
1
81
3
0
50

МИНОБРНАУКИ РОССИИ
федеральное государственное бюджетное образовательное учреждение высшего образования
«Санкт-Петербургский государственный технологический институт (технический университет)»
Направление подготовки 15.05.01 (Проектирование технологических машин
Факультет Инженерно–технологический
Кафедра Инженерного проектирования
Учебная дисциплина Инженерная графика
КУРСОВАЯ РАБОТА
Тема: Выполнение чертежа общего вида вертикального
, 2022г.

1 Задание
Спроектировать вертикальный кожухотрубный, предназначенный для конденсации водяного пара путем охлаждения его водой.
Выполнить:
1. Чертеж общего вида аппарата на стадии технического проекта.
2. Определить размеры составных частей аппарата.
3. Рассчитать массу аппарата.
4. Рассчитать номинальный объем аппарата.
Технические характеристики.
1. Поверхность теплообмена F=18 м2.
2. Давление водяного пара в трубном пространстве pт = 1,0 МПа
3. Давление воды в межтрубном пространстве pм = 0,3 МПа
4. Температура водяного пара в трубном пространстве tт = 200°С
5. Температура воды в межтрубном пространстве tм = 20°С+70°С
6. Внутренний диаметр кожуха Dв = 400 мм
7. Наружный диаметр труб dн = 25 мм
8. Длина труб l = 2000 мм
9. Количество труб n = 91
10. Размещение труб по вершинам равносторонних треугольников
11. Условный проход штуцеров для водяного пара dy1 = 150 мм
12. Условный проход штуцеров для воды dy2 = 80 мм
13. Условный проход штуцеров для конденсата dy3 = 50 мм

Оглавление
Введение 6
1 Техническое задание 7
1.1 Задание 7
1.2 Устройство аппарата. 7
1.3 Принцип действия аппарата. 8
1.4 Технические характеристики. 8
1.5 Дополнительные указания. 8
2 Теоретические основы процесса 9
3 Основная часть 10
3.1 Методы исследования 10
3.2 Объекты исследования 10
3.3 Определение размеров составных частей аппарата 10
3.3.1 Выбор толщины стенок обечайки 10
3.3.2 Выбор днища аппарата 11
3.3.3 Выбор фланцев 11
3.3.4 Выбор прокладок 12
3.3.5 Выбор труб 12
3.3.6 Выбор фланцев 13
3.3.7 Выбор прокладки 14
3.3.8 Расположение штуцеров на корпусе и днище 14
3.3.9 Вылет штуцера 14
3.3.10 Выбор люков. 15
3.3.11 Размер трубной решётки 15
3.3.12 Выбор опоры 16
3.3.13 Размер болтов аппарата 17
3.3.14 Выбор размеров внутренних устройств аппарата. 17
3.3.15 Выбор конструкционных материалов аппарата 18
3.4 Расчет массы вертикального кожухотрубного конденсатора 18
3.4.1 Расчет массы болтов (позиция 1 рисунок 12) 19
3.4.2 Расчет массы гаек (позиция 2 рисунок 12) 19
3.4.3 Расчет массы шайб (позиция 3 рисунок 12) 19
3.4.4 Расчет массы корпуса (позиция 4 рисунок 12) 19
3.4.5 Расчет массы крышек 21
3.4.6 Расчет массы прокладок 23
3.4.7 Расчет общей массы аппарата 24
3.5 Расчет номинального объема аппарата 24
3.5.1 Расчет объема трубного пространства теплообменного аппарата 24
3.5.2 Расчет объема межтрубного пространства теплообменного аппарата 24
3.5.3 Объем аппарата 24
Заключение 25
Список литературы 26


Сообщить о проблеме
Автор
user-avatar Нина
Дата
02.04.2026
Язык
Русский
Состав
ПЗ, чертёж
Софт
КОМПАС-3D 22 учебная Как открыть?
Отзывов пока нет
Задать вопрос
Содержимое архива
    • icon-doc КР_ПЗ_ИГ_519Б_Лекомцева Н.Г..docx
    • icon-cdw КР_Чертеж_ИП_519Б_Лекомцева Н.Г..cdw
Чтобы скачать чертеж, 3D модель или проект, Вы должны зарегистрироваться и принять участие в жизни сайта. Посмотрите, как тут скачивать файлы
Отзывов пока нет
Чтобы оставить отзыв, необходимо войти
Войти с помощью:

Используя функцию входа через сторонние сервисы, Вы соглашаетесь на обработку персональных данных в соответствии с Политикой конфиденциальности