Перейти к содержимому
Войти

Электроснабжение электрооборудования ремонтно-механического участка ООО «Дубровки» Спасского района Пензенской области с расчетом освещения

0
0
38
1
0
50

Спасский колледж профессиональных технологий и бизнеса
ВЫПУСКНАЯ КВАЛИФИКАЦИОННАЯ РАБОТА
на тему:
Электроснабжение электрооборудования ремонтно-механического участка ООО «Дубровки» Спасского района Пензенской области с расчетом освещения
Спасск, 2024

Электрооборудование ремонтно-механического цеха относится ко 2 и 3 категориям и могут питаться от одного источника, при условии, что перерывы электроснабжения не превышает одних суток. [3,с.28]
В данной работе е=направлена на электроснабжения цеха, с выполнением соответсвующих расчетов и проверок, а так же выбор светотехнического оборудования для ремонтно-механического участка согластно нормам.
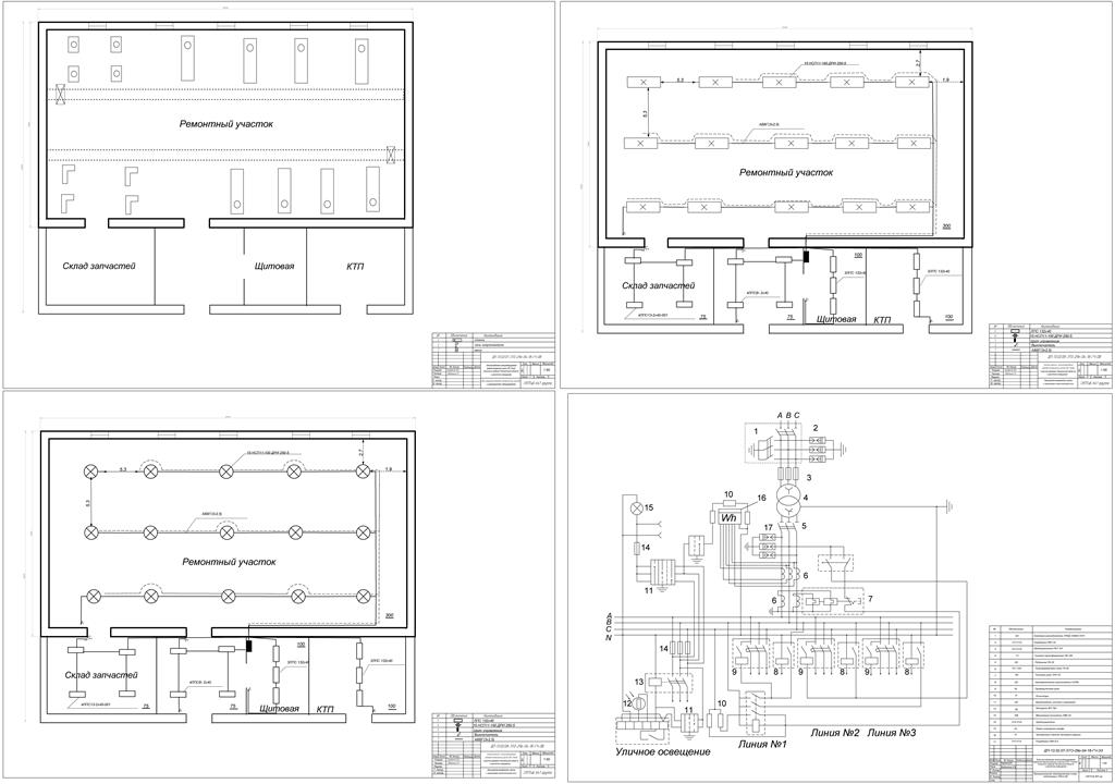
Выбор автоматического выключателя
Выбор группового автоматического выключателя
Выбор сечения силового кабеля питающего РП3

СОДЕРЖАНИЕ

ВВЕДЕНИЕ …………………………………………………………………………………...4
1. ОСНОВНАЯ ЧАСТЬ ……………………………………………………………………… 5
1.1 Характеристики потребителей электроэнергии и определение категории электроснабжения ……………………………………………………5
1.2 Внутрицеховая силовая часть …………………………………………………………... 6
1.2.1 Выбор рода тока, напряжения и схемы внутрицехового электроснабжения ……… 6
1.2.2 Распределение электроприёмников по распределительным пунктам ……………... 7
1.3 Расчёт электрической нагрузки РП1 …………………………………………………… 7
1.3.1 Выбор автоматического выключателя ………………………………………………. 7
1.3.2 Выбор сечения кабеля питающего электродвигатель насосной установки ……….. 10
1.3.3 Выбор группового автоматического выключателя ………………………………….. 11
1.3.4 Выбор сечения силового кабеля питающего РП1 …………………………………… 12
1.3.5 Выбор распределительного пункта ………………………………………………….. 12
1.4 Расчёт электрической нагрузки РП2 …………………………………………………... 13
1.4.1 Выбор автоматического выключателя ………………………………………………. 13
1.4.2 Выбор сечения кабеля питающего станки …………………………………………… 14
1.4.3 Выбор группового автоматического выключателя …………………………………. 15
1.4.4 Выбор сечения силового кабеля питающего РП2 …………………………………... 16
1.4.5 Выбор распределительного пункта ………………………………………………….. 16
1.5 Расчёт электрической нагрузки РП3 …………………………………………………... 16
1.5.1 Выбор автоматического выключателя ………………………………………………. 16
1.5.2 Выбор сечения кабеля питающего печь сопротивления …………………………… 18
1.5.3 Выбор группового автоматического выключателя …………………………………. 19
1.5.4 Выбор сечения силового кабеля питающего РП3 ………………………………….. 19
1.6 Расчёт электрической нагрузки РП4 …………………………………………………... 20
1.6.1 Выбор автоматического выключателя ………………………………………………. 20
1.6.2 Выбор сечения кабеля питающего ленточный конвейер …………………………... 22
1.6.3 Выбор группового автоматического выключателя ………………………………… 22
1.6.4 Выбор сечения силового кабеля питающего РП4 …………………………………... 23
1.6.5 Выбор распределительного пункта ………………………………………………….. 23
2. РАСЧЁТ ОСВЕЩЕНИЯ ………………………………………………………………….. 25
2.1 Размещение световых приборов ………………………………………………………... 25
2.2 Определение мощности лампы ………………………………………………………… 28
2.3 Выбор осветительного щита и защитной аппаратуры ………………………………… 29
2.4 Выбор трансформатора ………………………………………………………………….. 33
2.4.1 Выбор аппарата защиты на низкой стороне КТП …………………………………… 33
2.4.2 Определение расчётной мощности трансформатора с учётом потерь …………….. 34
3.БЕЗОПАСНОСТЬ И ЭКОЛОГИЧНОСТЬ ПРОЕКТА …………………………………. 36
3.1 Охрана труда ……………………………………………………………………………... 36
3.1.1 Анализ состояния охраны труда в хозяйстве ………………………………………... 36
3.1.2 Разработка организационно-технических мероприятий по улучшению условий и охраны труда ………………………………………………………………………………….36
3.2 Организация пожарной безопасности в ремонтной мастерской ……………………... 39
3.3 Экологичность проекта …………………………………………………………………. 40
3.4 Расчёт заземления ……………………………………………………………………….. 41
3.5 Молниезащита …………………………………………………………………………... 43
ЗАКЛЮЧЕНИЕ ……………………………………………………………………………… 44
СПИСОК ИСПОЛЬЗУЕМЫХ ИСТОЧНИКОВ ………………………………………….. 45


Сообщить о проблеме
Автор
user-avatar user-0083608
Дата
11.03.2026
Язык
Русский
Состав
чертежи, ПЗ
Софт
sPlan 7.0
Отзывов пока нет
Задать вопрос
Содержимое архива
  • icon-doc Диплом Гангаев.docx
  • icon-spl ПЛАН1~~1.spl7
  • icon-spl ПЛАН2~1.spl7
  • icon-spl ПЛАН2~~1.spl7
  • icon-spl ТПЧЕРВ~1.spl7
Чтобы скачать чертеж, 3D модель или проект, Вы должны зарегистрироваться и принять участие в жизни сайта. Посмотрите, как тут скачивать файлы
Отзывов пока нет
Чтобы оставить отзыв, необходимо войти
Войти с помощью:

Используя функцию входа через сторонние сервисы, Вы соглашаетесь на обработку персональных данных в соответствии с Политикой конфиденциальности