Перейти к содержимому
Войти

Энергоснабжение цеха по производству оконных блоков

0
310
3336
6
1
300

ГОУВПО «МОРДОВСКИЙ ГОСУДАРСТВЕННЫЙ УНИВЕРСИТЕТ им. Н.П. ОГАРЕВА»
ИНСТИТУТ МЕХАНИКИ И ЭНЕРГЕТИКИ
Кафедра безопасности жизнедеятельности
Дипломный проект на тему: «Энергоснабжение цеха по производству оконных блоков ООО «Мирта-Строй» с разработкой мероприятий по улучшению условий труда»
Саранск 2009

Цель работы - проектирование энергоснабжения цеха по производству оконных блоков, разработка мероприятии по повышению эффективности и безопасности труда в ООО «Мирта-Строй».
В результате было спроектировано: электроснабжение и отопление производственных площадей, разработаны схемы вентиляции, освещения, заземление проектируемого цеха по производству оконных блоков, а также другие мероприятия по повышению безопасности труда.
В дипломном проекте была предложена реконструкция схемы электро-снабжения, проектирование систем отопления, вентиляции, освещения, электробезопасности, предложены мероприятия по повышению пожарной безопасности, организации работ по охране труда в ООО «Мирта-Строй».
Предложенные в дипломном проекте мероприятия позволят значительно повысить эффективность и надежность работы оборудования цеха по производству оконных блоков из ПВХ, улучшить условия труда и снизить производственный травматизм и профессиональную заболеваемость.
Дипломная работа содержит 80 страниц пояснительной записки формата А4, 8 листов графического материала формата А1.Содержание С.
Введение……………………………………………………………………… 7
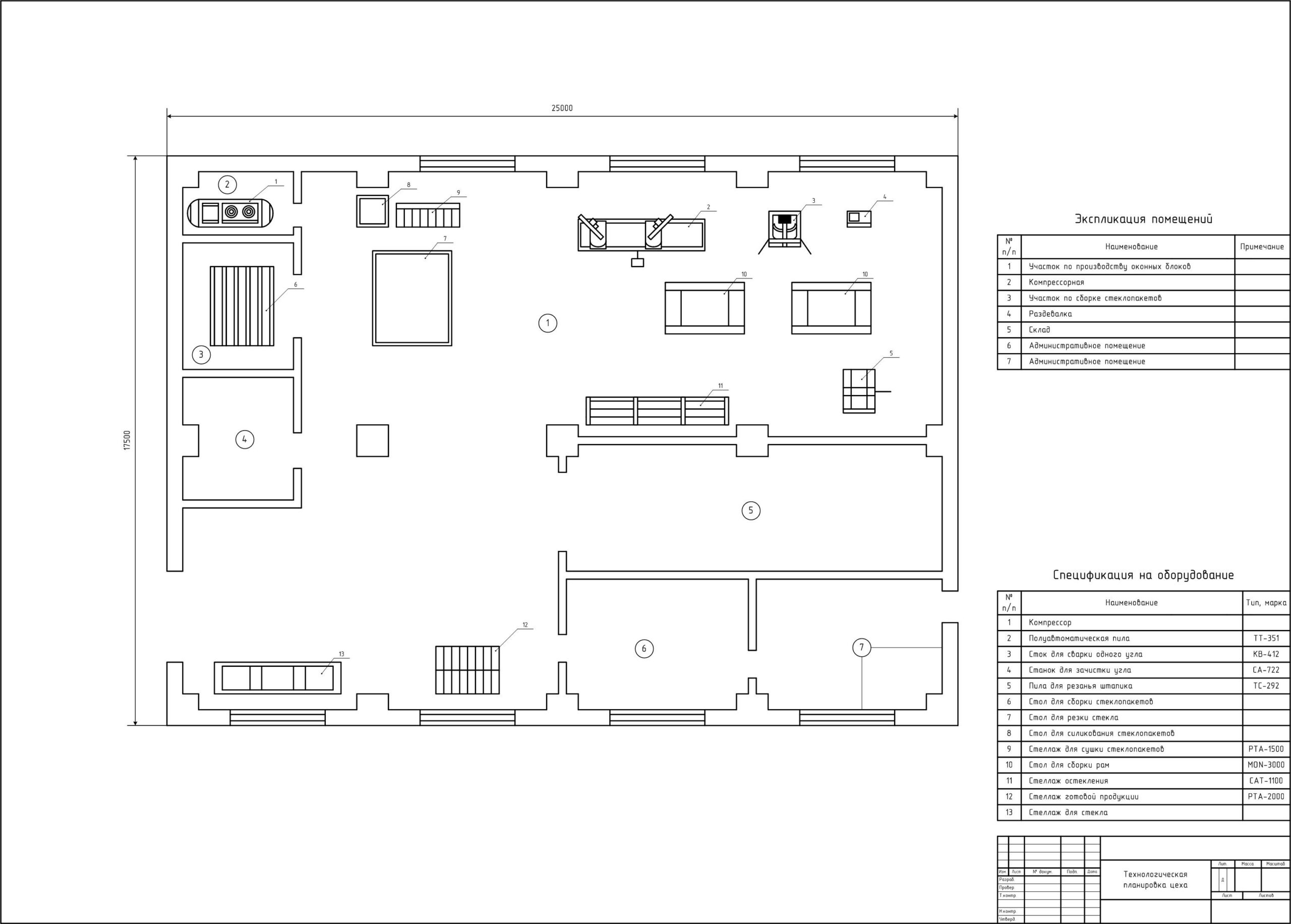
1 Структура предприятия и характеристика оборудования и техноло¬гического процесса. Анализ работы цеха………………………………… 9
1.1 Характеристика предприятия………………………………………. 9
1.2 Характеристика оборудования…………………………………….. 10
1.3 Технология производства…………………………………………... 12
1.4 Анализ работы цеха…………………………………………………. 14
2 Проектирование системы вентиляции…………………………………... 16
2.1 Расчет вытяжной вентиляции от промышленного оборудования 17
2.2 Расчет приточной системы вентиляции………………………….. 20
3 Проектирование электрического освещения цеха…………………….. 22
3.1 Светотехнический расчет………………………………………….. 23
3.2 Электротехнический расчет………………………………………. 28
4 Проектирование системы электроснабжения цеха……………………. 33
4.1 Общая характеристика электроприемников……………………… 33
4.2 Расчет электрических нагрузок……………………………………. 34
4.3 Выбор схемы электроснабжения и конструктивного исполнения электрической сети………………………………………………………….. 36
4.4 Выбор сечения проводов и кабелей………………………………. 38
4.5 Расчет токов КЗ……………………………………………………… 41
4.6 Выбор защиты………………………………………………………. 46
4.7 Выбор коммутационной аппаратуры и распределительного шкафа…………………………………………………………………………. 49
5 Проектирование системы электробезопасности………………………. 51
5.1 Расчет зануления……………………………………………………. 51
5.2 Расчет заземления трансформаторной подстанции……………… 53
5.3 Проверочный расчет системы электробезопасности…………….. 56
6 Проектирование системы отопления……………………………………...... 58
6.1 Расчет системы отопления…………………………………………. 59
7 Разработка мероприятий по пожарной безопасности…………………. 62
8 Мероприятия по защите окружающей среды…………………………… 65
9 Технико-экономическое обоснование проекта…………………………. 66
Заключение…………………………………………………………………… 76
Список используемых источники…………………………………………... 77


Сообщить о проблеме
Автор
user-avatar Алексей
Дата
02.03.2015
Язык
Русский
Состав
Пояснительная записка А4, Схема электроснабжения цеха А1, Схема заземления мастерской А1, Отопление цеха А1, Технологическая планировка цеха А1, План освещения цеха А1, Вентиляция цеха А1, Расчетная схема электроснабжения А1, Технико-экономические показатели А4.
Софт
Microsoft Visio 2003
Отзывов пока нет
Задать вопрос
Содержимое архива
  • icon-visio
    Вентиляция Цеха.vsd
  • icon-doc
    Глава-3.doc
  • icon-doc
    Глава-4.doc
  • icon-doc
    Глава-5.doc
  • icon-doc
    Глава-6.doc
  • icon-doc
    Глава-7,8.doc
  • icon-doc
    Глава-9.doc
  • icon-doc
    Заключение, литература.doc
  • icon-doc
    Начало, главы 1-2.doc
  • icon-visio
    Отопление.vsd
  • icon-visio
    Разчетная схема электроснабжения.vsd
  • icon-doc
    Содержание.doc
  • icon-doc
    Технико-экономические показатели.doc
  • icon-visio
    Технологическая плонировка.vsd
  • icon-visio
    Электроснабжение.vsd
  • icon-visio
    заземление.vsd
  • icon-visio
    освещение.vsd
Чтобы скачать чертеж, 3D модель или проект, Вы должны зарегистрироваться и принять участие в жизни сайта. Посмотрите, как тут скачивать файлы
Отзывов пока нет
Чтобы оставить отзыв, необходимо войти
Войти с помощью:

Используя функцию входа через сторонние сервисы, Вы соглашаетесь на обработку персональных данных в соответствии с Политикой конфиденциальности