Перейти к содержимому
Войти

Разработка проекта осветительной установки гаража с мастерской и вспомогательных помещений

0
0
55
3
0
50

ВГТУ, Электрическое освещение,

КР на тему: Разработка проекта осветительной установки гаража с мастерской и вспомогательных помещений , 2025

Исходные данные:
Номер по плану Вариант 15D
Наименование помещений Высота, Н, м
1 Гараж с мастерской 7,2
2 Кабинет мастера 3,0
3 Венткамера 4,2
4 Ремонт двигателей 4,5
5 Кладовая 4,2
6 КТП 4,2
Исходные данные о трансформаторной подстанции:
Вариант n×Sнт, кВ⋅А βт cos φт
15D 2×1000 0,82 0,88
Другие щитки предприятия, их суммарный приведённый момент, расчетная нагрузка и коэффициент мощности:
Мпр1 = 6350 кВт⋅м
Pр01=30,5 кВт
cos φ1=0,6

ОГЛАВЛЕНИЕ
ВВЕДЕНИЕ…………………………………………………………………..2
1. Выбор системы и вида освещения……………………………………….4
2. Выбор нормируемой освещенности помещений и коэффициента запаса………………………………………………………………………………6
3. Выбор источников света для системы общего равномерного освещения цеха и вспомогательных помещений ……………………………………………7
4. Выбор типа светильников, высоты их подвеса и размещения………..10
4.1 Выбор типа светильников……………………………………………...10
4.2 Высота подвеса светильников…………………………………………11
4.3 Схемы размещения светильников……………………………………..12
5. Светотехнический расчет системы общего равномерного освещения цеха и вспомогательных помещений…………………………………………...17
5.1 Светотехнический расчет гаража с мастерской………………………17
5.2 Светотехнический расчет кабинета мастера методом коэффициента использования……………………………………………………………………18
5.3 Светотехнический расчет ремонта двигателей методом коэффициента использования……………………………………………………………………19
5.4 Светотехнический расчет венткамеры методом удельной мощности.22
5.5 Светотехнический расчет кладовой методом удельной мощности …22
5.6 Светотехнический расчет КТП методом удельной мощности……....23
6. Выбор источников света, типа светильников и их размещения, светотехнический расчет эвакуационного освещения цеха…………………..26
7. Разработка схемы питания осветительной установки………………...30
8. Определение мест расположения щитков освещения и трассы электрической сети………………………………………………………………32
9. Выбор типа щитков освещения, марки проводов и кабелей и способов их прокладки……………………………………………………………………..34
10. Определение расчетной осветительной нагрузки цеха и вспомогательных помещений……………………………………………….…..36
11. Выбор сечения проводов и кабелей и расчет защиты осветительной сети………………………………………………………………………………..40
11.1 Выбор сечения проводников линии, питающей МЩО……………..40
11.2 Выбор сечений проводников линии, питающей ЩО1………………43
11.3 Выбор сечений проводников линии, питающей ЩО2………………44
11.4 Выбор сечений проводников групповых линий……….……………45
11.5 Расчет защиты осветительной сети…………………………….…….49
ЗАКЛЮЧЕНИЕ…………………………………………………………….55
СПИСОК ИСПОЛЬЗОВАННЫХ ИСТОЧНИКОВ………………………56


Сообщить о проблеме
Автор
user-avatar user-3409023
Дата
24.12.2025
Язык
Русский
Состав
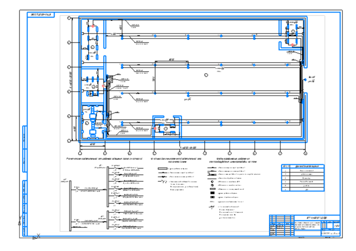
ПЗ, План осветительной установки, расчетная схема электрической осветительной сети рабочего освещения
Софт
КОМПАС-3D 21 Как открыть?
Отзывов пока нет
Задать вопрос
Содержимое архива
    • icon-doc 15D.docx
    • icon-cdw Чертеж 15D.cdw
Чтобы скачать чертеж, 3D модель или проект, Вы должны зарегистрироваться и принять участие в жизни сайта. Посмотрите, как тут скачивать файлы
Отзывов пока нет
Чтобы оставить отзыв, необходимо войти
Войти с помощью:

Используя функцию входа через сторонние сервисы, Вы соглашаетесь на обработку персональных данных в соответствии с Политикой конфиденциальности