Перейти к содержимому
Войти

Разработка проекта осветительной установки цеха и вспомогательных помещений

0
2
122
2
0
70

Министерство образования Республики Беларусь
Учреждение образования
«Витебский государственный технологический университет»

Кафедра «Теплоэнергетика»

КУРСОВОЙ ПРОЕКТ
по дисциплине: «Электрическое освещение»
на тему: «Разработка проекта осветительной установки цеха и вспомогательных помещений»

Витебск 2023

Содержание
Введение
1. Исходные данные
2. Выбор системы и вида освещения
3. Выбор нормируемой освещённости помещений и коэффициентов запаса
4. Выбор источников света для системы общего равномерного освещения цеха и вспомогательных помещений
5. Выбор типа светильников, высоты их подвеса и размещения
6. Светотехнический расчёт системы общего равномерного освещения цеха и вспомогательных помещений
7. Выбор источника света, типа светильников и их размещения, светотехнический расчёт эвакуационного освещения цеха
8. Разработка схемы питания осветительной установки
9. Определение мест расположения щитков освещения и трассы электрической сети
10. Выбор типа щитков освещения, марки проводов и кабелей и способов их прокладки
11. Определение расчётной осветительной нагрузки цеха и вспомогательных помещений
12. Выбор сечения кабелей и расчёт защиты осветительной сети
Заключение
Список использованных источников

Исходные данные:
Номер по плану Наименование помещений Высота, Н, м
1 Заготовительный цех 8,5
2 Санузел 4,0
3 КТП 4,5
4 Кладовая инструментов 4,5
5 Кабинет ОТК 4,5
6 Комната мастеров 4,0

n×Sнт, кВ⋅А βт cos φт
2×1000 0,81 0,86


Сообщить о проблеме
Автор
user-avatar alex0206
Дата
10.12.2023
Язык
Русский
Состав
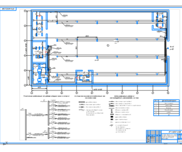
Чертеж: План цеха и вспомогательных помещений с расположением светильников и осветительной сети
Софт
КОМПАС-3D 19,0 Как открыть?
Отзывов пока нет
Задать вопрос
Содержимое архива
  • icon-doc
    1 ТИТУЛЬНИК.docx
  • icon-doc
    2 Содержание.doc
  • icon-doc
    3 введение.docx
  • icon-doc
    4 расчет.docx
  • icon-doc
    5 заключение.docx
  • icon-doc
    6 литература.docx
  • icon-cdw
    Чертеж.cdw
Чтобы скачать чертеж, 3D модель или проект, Вы должны зарегистрироваться и принять участие в жизни сайта. Посмотрите, как тут скачивать файлы
Отзывов пока нет
Чтобы оставить отзыв, необходимо войти
Войти с помощью:

Используя функцию входа через сторонние сервисы, Вы соглашаетесь на обработку персональных данных в соответствии с Политикой конфиденциальности