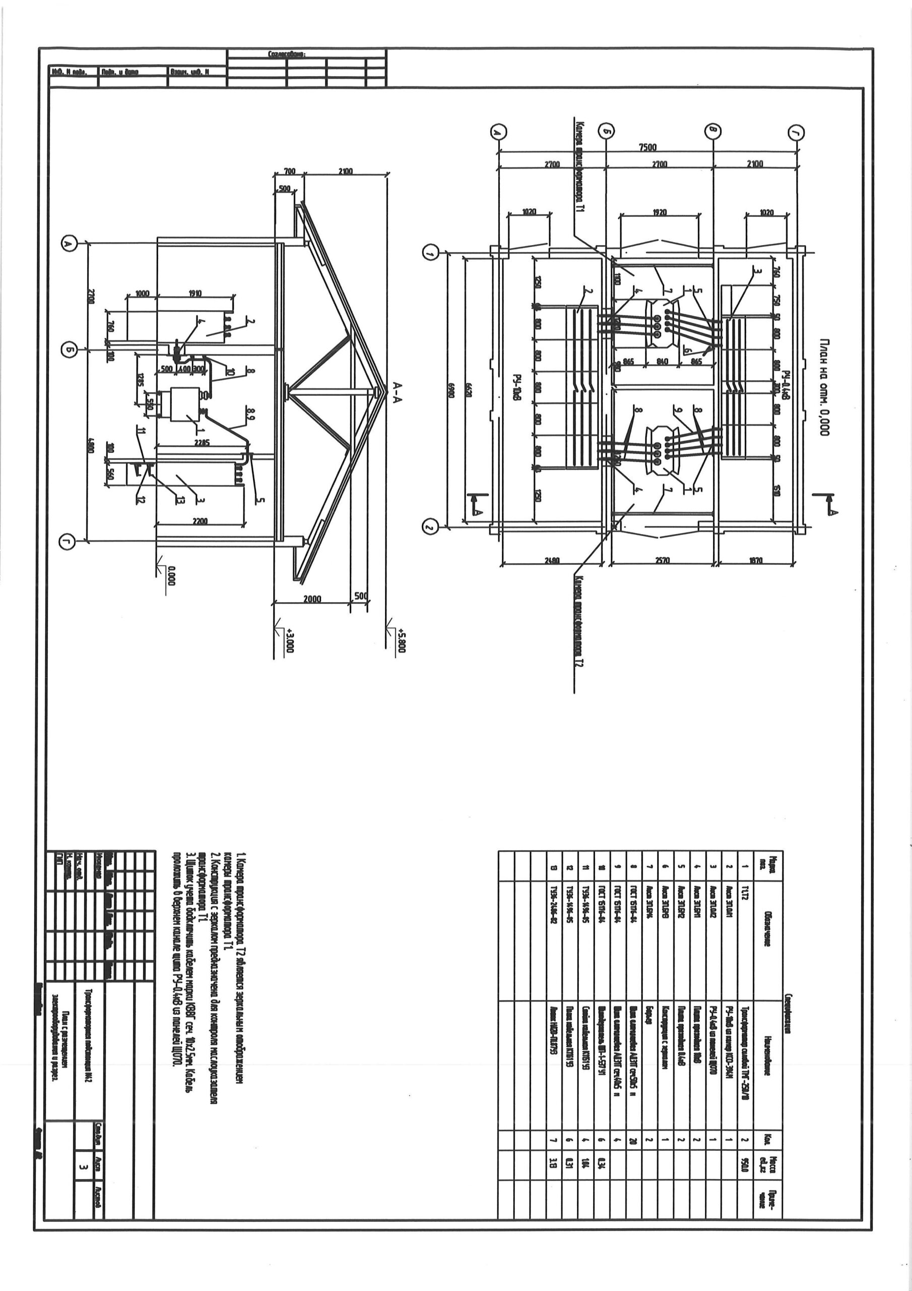
В данном комплекте запроектирована замена двух трансформаторов S=25кВА с установкой во вновь строящуюся трансформаторную подстанцию на месте существующей.
- Главная -
- Чертежи -
- Инженерные системы -
- Электроснабжение и освещение -
- Замена двух трансформатоhов S=250кВА
Замена двух трансформатоhов S=250кВА
0
82
556
1
0
100

Сообщить о проблеме
Автор
Дата
01.09.2016
Язык
Русский
Состав
рабочая документация
Софт
AutoCAD 10
Как открыть?
Отзывов пока нет
Содержимое архива
Чтобы скачать чертеж, 3D модель или проект, Вы должны зарегистрироваться
и принять участие в жизни сайта. Посмотрите, как тут скачивать
файлы
Отзывов пока нет
Чтобы задать вопрос, необходимо войти
Войти с помощью:
Ссылка на логин через google
Ссылка на логин через vk
Ссылка на логин через yandex